Palmerston Avenue, Walmer, CT14
By Jenkinson Estates
£ 245,000
Reviews
3 out of 5 stars
Jenkinson Estates says ..
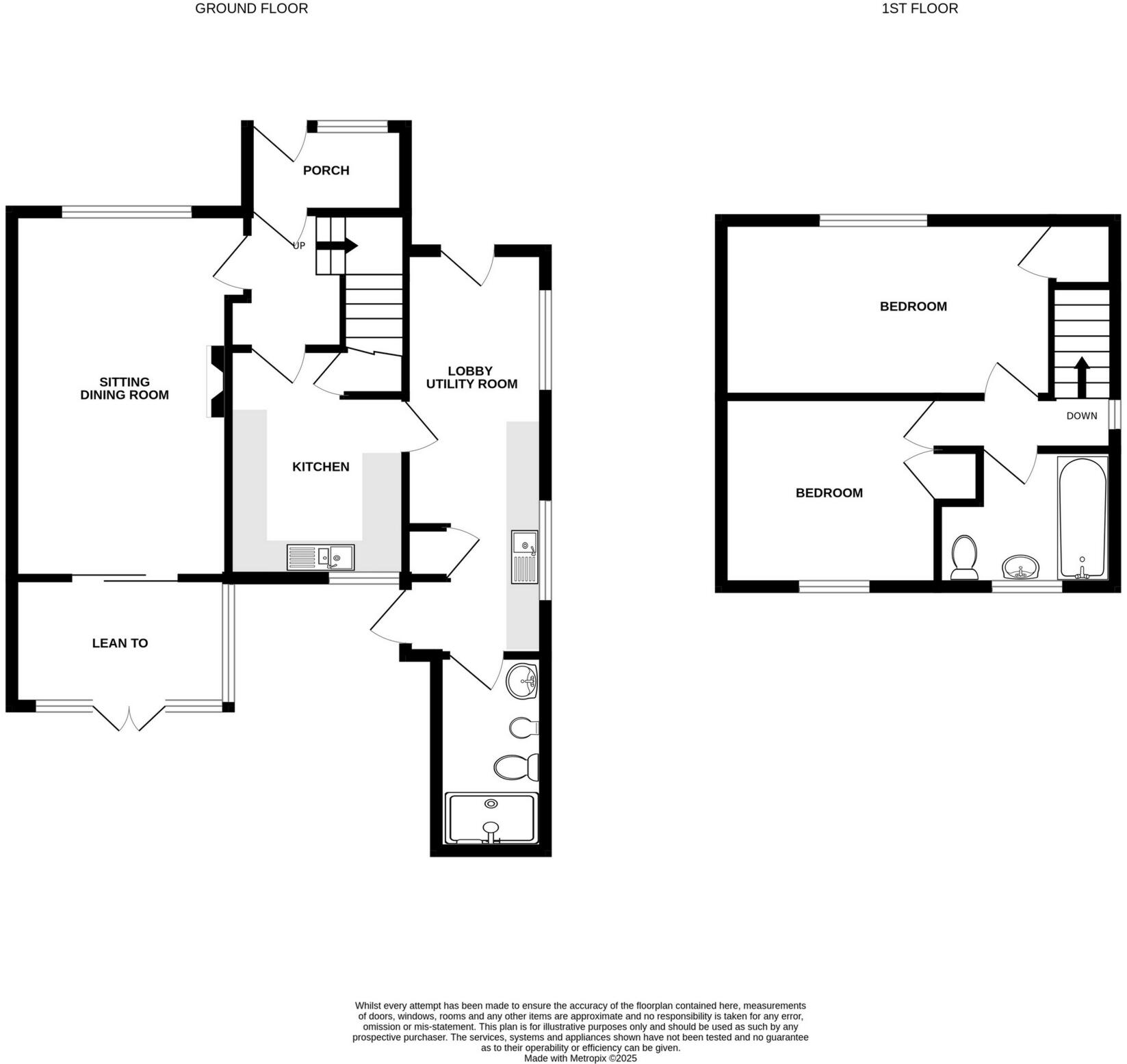
Jenkinson Estates are pleased to bring to the market this end of terrace home situated in the ever popular residential location of Palmerston Avenue, Walmer. This particular property comes to the market with no onward chain complications and really must be viewed to be appreciated. The property i...
Property Oracle says ..
This property is a 2 bedroom, 2 bathroom house located in Walmer, Dover. The property is in need of modernisation, as seen in the dated interior and kitchen. However, it benefits from a good sized garden and garage. While the list price is below the average price for the area, it is important to factor in the required renovation costs when considering the overall value. The location is convenient, with nearby schools and transportation links. The average house price in the area is significantly higher, suggesting potential for future appreciation once updated.
Therefore, we give this property 6 / 10. *Disclaimer: This is our option and does constitute a recommendation or financial advice. Do your own research. *
- Price
- 6
- Condition
- 4
- Location
- 7
- Land
- 7
- Bedrooms
- 2
- Bathrooms
- 2
- Sqft (est)
- 700.00
The heatmap indicates the level of crime in the area. The color of the heatmap indicates the crime severity and recency.
Metrics Year-on-Year
- Average area value
- 438,880.00 £Increased by 10.49 %
- Est sale value
- 314,300.00 £Increased by 19.10 %
- Average area rental value
- 1,343.00 £/moIncreased by 11.73 %
- Est letting value
- 700.00 £/moUnchanged by 0.00 %
- Est rental Yield
- 3.67 %Increased by 1.10 %
- Crime Rate
- 7.00 %Unchanged by 0.00 %
Agent Activity
Jenkinson Estates created the listing.
Nearby Schools
| Name | Type | Ofsted | Distance |
|---|---|---|---|
| The Downs Church Of England Primary School | Academy Converter | 0.43 KM | |
| Blossom Children'S Centre | Children's Centre | 0.46 KM | |
| Deal Parochial Church Of England Primary School | Academy Converter | 0.53 KM | |
| Goodwin Academy | Academy Sponsor Led | 0.74 KM | |
| Brewood Secondary School | Other Independent Special School | Good | 1.38 KM |
Images
Nearby Streets
| Name | Average Price | Average Sqft | Distance |
|---|---|---|---|
| Dorset Gardens | £ 0 | 0 | 0.00 KM |
| Gladstone Road | £ 0 | 0 | 0.00 KM |
| Gladstone Road | £ 0 | 0 | 0.00 KM |
| St. Mildreds Court | £ 350,000 | 0 | 0.00 KM |
| Clarence Road | £ 0 | 0 | 0.00 KM |
Nearby Transport
| Name | NLC | TLC | Distance |
|---|---|---|---|
| Walmer | 5041 | WAM | 1.43 KM |
| Deal | 5011 | DEA | 1.67 KM |
| Martin Mill | 5040 | MTM | 6.64 KM |
| Sandwich | 5026 | SDW | 8.93 KM |
Nearby Listings
| Address | Price | Type | Score | Distance |
|---|---|---|---|---|
| Palmerston Avenue, Walmer, CT14 | £ 245,000 | BUY | 6 / 10 | 0.00 KM |
| Downs Road, Walmer, CT14 | £ 269,950 | BUY | 6 / 10 | 0.15 KM |
| Downs Road, Walmer, Deal, Kent, CT14 | £ 250,000 | BUY | 5 / 10 | 0.16 KM |
| Downs Road, Walmer, Deal, Kent, CT14 | £ 300,000 | BUY | 7 / 10 | 0.17 KM |
| Downs Road, East Studdal, CT15 | £ 750,000 | BUY | 5 / 10 | 0.18 KM |
Nearby Properties
| Address | Price | Distance |
|---|---|---|
| 21 Wellesley Avenue | £ 159,000 | 0.11 KM |
| 17 Wellesley Avenue | £ 247,500 | 0.13 KM |
| 19 Wellesley Avenue | £ 248,000 | 0.13 KM |
| 52 Balfour Road | £ 240,000 | 0.14 KM |
| 41 Balfour Road | £ 350,000 | 0.14 KM |