High Street, Cam, Dursley, Gloucestershire, GL11
By DJ&P Newland Rennie
£ 285,000
Reviews
3 out of 5 stars
DJ&P Newland Rennie says ..
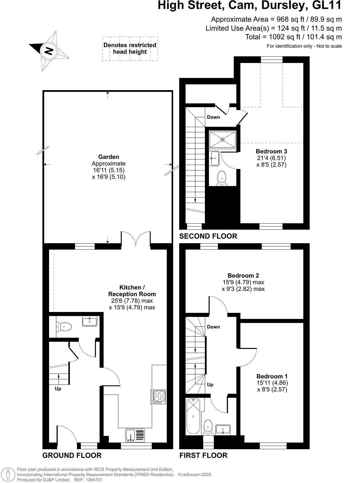
Three bedroom Town House with garden and parking, located on a small development of just 10 properties.
Property Oracle says ..
This property is a modern three-bedroom terraced house located on the High Street in Cam, Gloucestershire. The property benefits from a modern interior and a small rear garden. While the square footage is not provided, the list price of £285,000 is slightly higher than the average price for the area (£245,826), but comparable to other similar properties on the High Street. The location is convenient, with nearby schools and a train station. The condition of the property appears to be excellent, with a modern kitchen and bathrooms. The lack of plot size information prevents a definitive assessment of the land score.
Therefore, we give this property 6 / 10. *Disclaimer: This is our option and does constitute a recommendation or financial advice. Do your own research. *
- Price
- 7
- Condition
- 10
- Location
- 7
- Land
- 3
- Bedrooms
- 3
- Bathrooms
- 2
The heatmap indicates the level of crime in the area. The color of the heatmap indicates the crime severity and recency.
Metrics Year-on-Year
- Average area value
- 251,538.00 £Increased by 21.55 %
- Average area rental value
- 754.00 £/moDecreased by 18.22 %
- Est rental Yield
- 3.60 %Decreased by 32.71 %
- Crime Rate
- 9.00 %Unchanged by 0.00 %
Agent Activity
DJ&P Newland Rennie created the listing.
Nearby Schools
| Name | Type | Ofsted | Distance |
|---|---|---|---|
| Cam Everlands Primary School | Community School | Good | 1.35 KM |
| Cam Woodfield Junior School | Academy Sponsor Led | 1.36 KM | |
| Cam Woodfield Infant School | Community School | Good | 1.36 KM |
| Cam Hopton Church Of England Primary School | Voluntary Aided School | Good | 1.41 KM |
| Rednock School | Foundation School | Good | 2.24 KM |
Images
Nearby Streets
| Name | Average Price | Average Sqft | Distance |
|---|---|---|---|
| A4135 | £ 293,750 | 0 | 0.00 KM |
| Old Barn Court | £ 0 | 0 | 0.00 KM |
| Cam Pitch | £ 215,000 | 0 | 0.00 KM |
| Orchard Close | £ 0 | 0 | 0.00 KM |
| Saint Bartholomew's Close | £ 390,000 | 0 | 0.00 KM |
Nearby Transport
| Name | NLC | TLC | Distance |
|---|---|---|---|
| Cam And Dursley | 3238 | CDU | 1.63 KM |
Nearby Listings
| Address | Price | Type | Score | Distance |
|---|---|---|---|---|
| High Street, Cam, Dursley, Gloucestershire, GL11 | £ 285,000 | BUY | 6 / 10 | 0.00 KM |
| High Street, Cam | £ 325,000 | BUY | Unknown | 0.04 KM |
| High Street, Cam | £ 260,000 | BUY | 6 / 10 | 0.04 KM |
| High Street, Cam | £ 260,000 | BUY | 6 / 10 | 0.04 KM |
| High Street, Cam, Dursley, Gloucestershire, GL11 | £ 270,000 | BUY | 7 / 10 | 0.05 KM |
Nearby Properties
| Address | Price | Distance |
|---|---|---|
| 90 High Street | £ 210,000 | 0.01 KM |
| 84 High Street | £ 345,000 | 0.01 KM |
| 72 High Street | £ 300,000 | 0.01 KM |
| 76 High Street | £ 108,000 | 0.01 KM |
| 80 High Street | £ 125,000 | 0.01 KM |