High Street, Aldershot, Hampshire, GU12
By Mackenzie Smith
£ 325,000
Reviews
3 out of 5 stars
Mackenzie Smith says ..
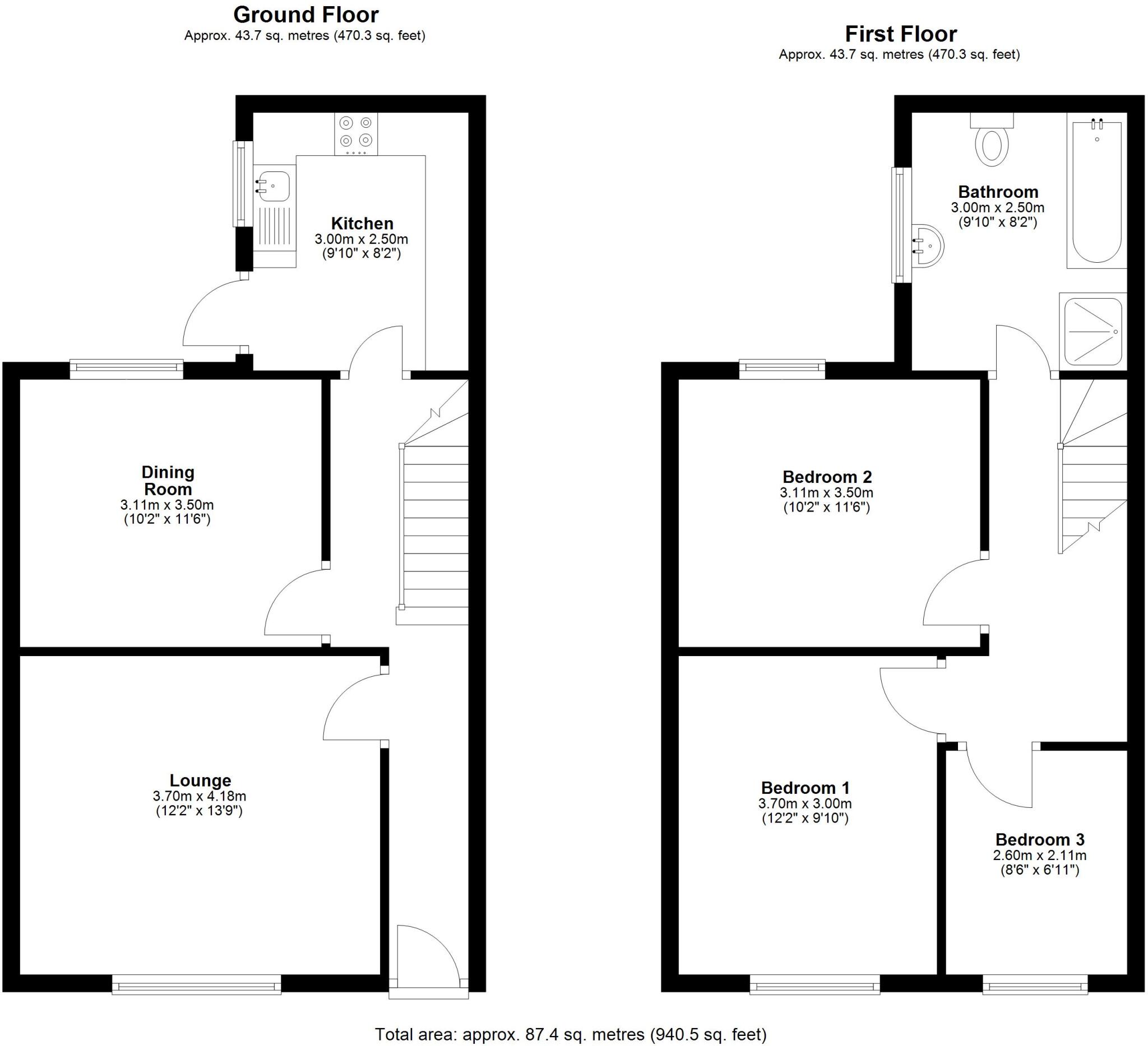
Featuring views over Manor Park, this three-bedroom terraced house offers a modern kitchen, a low-maintenance paved garden and private allocated parking.
Property Oracle says ..
This three-bedroom terraced house is located on the High Street in Aldershot, Hampshire. The property benefits from a relatively central location, with nearby transportation links including Aldershot train station (0.94km) providing access to South Western Railway services. Several primary schools are within a reasonable distance, including St Michael’s Church of England Controlled Infant School (rated Outstanding by Ofsted) and Park Primary School (rated Good).
The property itself appears to be in reasonable condition, though some minor cosmetic updates might enhance its overall appeal. The kitchen shows signs of recent modernisation, while the bathrooms, though functional, could benefit from some refurbishment. The property includes a small, paved rear garden and a shed, offering some outdoor space.
Considering the average house price in the area is £330,561 and the average price per square foot is £358, the asking price of £325,000 appears to be in line with the local market, especially given the lack of available square footage data for this particular property and comparable properties. However, the absence of square footage data for the subject property and its nearby comparables makes a precise price-per-square-foot comparison difficult. More information would be needed to definitively assess the value.
Therefore, we give this property 6 / 10. *Disclaimer: This is our option and does constitute a recommendation or financial advice. Do your own research. *
- Price
- 7
- Condition
- 6
- Location
- 7
- Land
- 4
- Bedrooms
- 3
- Bathrooms
- 1
- Lot (est)
- 940.50
The heatmap indicates the level of crime in the area. The color of the heatmap indicates the crime severity and recency.
Metrics Year-on-Year
- Average area value
- 383,000.00 £Increased by 11.30 %
- Average area rental value
- 1,425.00 £/moDecreased by 0.90 %
- Est rental Yield
- 4.46 %Decreased by 10.98 %
- Crime Rate
- 13.00 %Unchanged by 0.00 %
Agent Activity
Mackenzie Smith created the listing.
Nearby Schools
| Name | Type | Ofsted | Distance |
|---|---|---|---|
| St Michael'S Church Of England Controlled Junior School | Voluntary Controlled School | Requires improvement | 0.45 KM |
| St Michael'S Church Of England Controlled Infant School | Voluntary Controlled School | Outstanding | 0.69 KM |
| Park Primary School | Community School | Good | 0.81 KM |
| Sunflowers Children'S Centre | Children's Centre Linked Site | 0.89 KM | |
| Alderwood School | Community School | Good | 1.04 KM |
Images
Nearby Streets
| Name | Average Price | Average Sqft | Distance |
|---|---|---|---|
| Newport Road | £ 307,778 | 0 | 0.00 KM |
| Churchill Avenue | £ 566,667 | 0 | 0.00 KM |
| Church Hill | £ 90,000 | 0 | 0.00 KM |
| Hop Kiln Villas | £ 0 | 0 | 0.00 KM |
| Mount Pleasant Road | £ 315,000 | 0 | 0.00 KM |
Nearby Transport
| Name | NLC | TLC | Distance |
|---|---|---|---|
| Aldershot | 5623 | AHT | 0.94 KM |
| North Camp | 5636 | NCM | 4.28 KM |
| Ash | 5641 | ASH | 4.38 KM |
| Ash Vale | 5547 | AHV | 4.65 KM |
| Farnham | 5545 | FNH | 5.68 KM |
Nearby Listings
| Address | Price | Type | Score | Distance |
|---|---|---|---|---|
| High Street, Aldershot, Hampshire, GU12 | £ 325,000 | BUY | 6 / 10 | 0.00 KM |
| Crossways, Aldershot, Hampshire, GU12 | £ 375,000 | BUY | 5 / 10 | 0.09 KM |
| High Street, Aldershot, Hampshire, GU12 | £ 130,000 | BUY | 6 / 10 | 0.12 KM |
| Church Hill, Aldershot, Hampshire | £ 475,000 | BUY | 7 / 10 | 0.12 KM |
| High Street, Aldershot, Hampshire, GU12 | £ 280,000 | BUY | 4 / 10 | 0.13 KM |
Nearby Properties
| Address | Price | Distance |
|---|---|---|
| 368 High Street | £ 100,000 | 0.02 KM |
| 372 High Street | £ 235,000 | 0.02 KM |
| 378 High Street | £ 265,000 | 0.02 KM |
| 368a High Street | £ 65,000 | 0.02 KM |
| 380 High Street | £ 129,000 | 0.02 KM |