Bryn Derwen, Abergele, Conwy, LL22
PR

Bryn Derwen, Abergele, Conwy, LL22

By Prys Jones & Booth

£ 300,000

Reviews

3 out of 5 stars

Prys Jones & Booth says ..

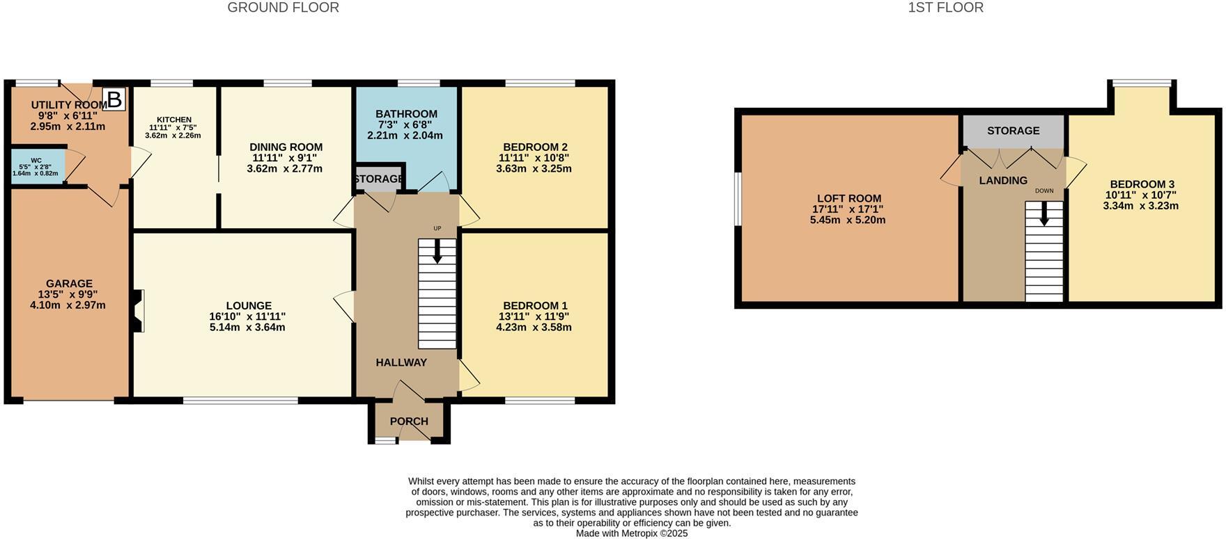
Welcome to this spacious three-bedroom detached dormer bungalow, nestled within a sought-after residential development on the outskirts of Abergele town centre. Bursting with potential, this charming home offers a fantastic opportunity to be transformed into your dream residence.

Property Oracle says ..

This property is a 3-bedroom, 2-bathroom detached bungalow located in Abergele, Conwy, with a list price of £300,000. The property has a total area of 1,616.52 sqft and is situated in a residential area with nearby schools and transportation. While the property shows its age, it is in a reasonable condition and benefits from having a garden. The average house price in the area is £231,873, with an average price per sqft of £215. Considering this, and the fact that the property needs some modernisation, the list price seems slightly high. However, the location and the availability of a garden may justify this higher price point to some buyers.

Therefore, we give this property 6 / 10. *Disclaimer: This is our option and does constitute a recommendation or financial advice. Do your own research. *

Price
6
Condition
6
Location
7
Land
7
Bedrooms
3
Bathrooms
2
Sqft (est)
1,616.52

The heatmap indicates the level of crime in the area. The color of the heatmap indicates the crime severity and recency.

Metrics Year-on-Year

Average area value
391,990.00 £
Increased by 15.65 %
from 338,931.00 £
Est sale value
573,864.60 £
Increased by 51.06 %
from 379,882.20 £
Average area rental value
895.00 £/mo
Increased by 23.45 %
from 725.00 £/mo
Est letting value
0.00 £/mo
from 0.00 £/mo
Est rental Yield
2.74 %
Increased by 6.61 %
from 2.57 %
Crime Rate
7.00 %
Unchanged by 0.00 %
from 7.00 %

Agent Activity

  • Prys Jones & Booth created the listing.

Nearby Schools

NameTypeOfstedDistance
Ysgol Emrys Ap IwanWelsh Establishment0.96 KM
St Elfod Junior SchoolWelsh Establishment1.27 KM
Ysgol Glan MorfaWelsh Establishment1.27 KM
Ysgol Glan GeleWelsh Establishment1.27 KM
Canolfan Addysg Nant-Y-Bryniau Education CentreWelsh Establishment1.41 KM

Images

Front Aspect.JPG Garden.JPG Hallway.JPG Lounge.JPG Lounge V2.JPG Lounge V3.JPG Dining Room.JPG Dining Room V2.JPG Kitchen.JPG Kitchen V2.JPG Utility.JPG Bedroom 1.JPG Bedroom 1 V2.JPG Bedroom 1 V3.JPG Bedroom 2.JPG Bedroom 2 V2.JPG Bedroom 3.JPG Bedroom 3 V2.JPG Bathroom.JPG Loft Room.JPG Loft Room V2.JPG Garden V2.JPG Garden V3.JPG Views at rear.JPG Rear Aspect.JPG Front Aspect 2.JPG

Nearby Streets

NameAverage PriceAverage SqftDistance
Bryn Tŵr £ 283,00000.00 KM
Rhodfa Bryn Mair £ 223,71300.00 KM
Compton Way £ 293,79000.00 KM
Ffordd Llanfair £ 000.00 KM
Highfield Park £ 000.00 KM

Nearby Transport

NameNLCTLCDistance
Abergele And Pensarn2448AGL1.79 KM

Nearby Listings

AddressPriceTypeScoreDistance
Bryn Derwen, Abergele, Conwy, LL22 £ 300,000BUY6 / 100.00 KM
Bryn Helyg, Abergele, Conwy, LL22 £ 280,000BUY6 / 100.10 KM
Bryn Onnen, Abergele, Conwy, LL22 8DF £ 249,950BUY6 / 100.13 KM
Bryn Twr, Abergele £ 270,000BUYUnknown0.14 KM
Bryn Twr, Abergele, Conwy, LL22 8DD £ 425,000BUY8 / 100.14 KM

Nearby Properties

AddressPriceDistance
9 Bryn Derwen £ 140,0000.06 KM
15 Bryn Derwen £ 190,0000.06 KM
7 Bryn Derwen £ 170,0000.06 KM
33 Bryn Derwen £ 193,0000.06 KM
19 Bryn Derwen £ 169,9500.06 KM