Knight Frank says ..
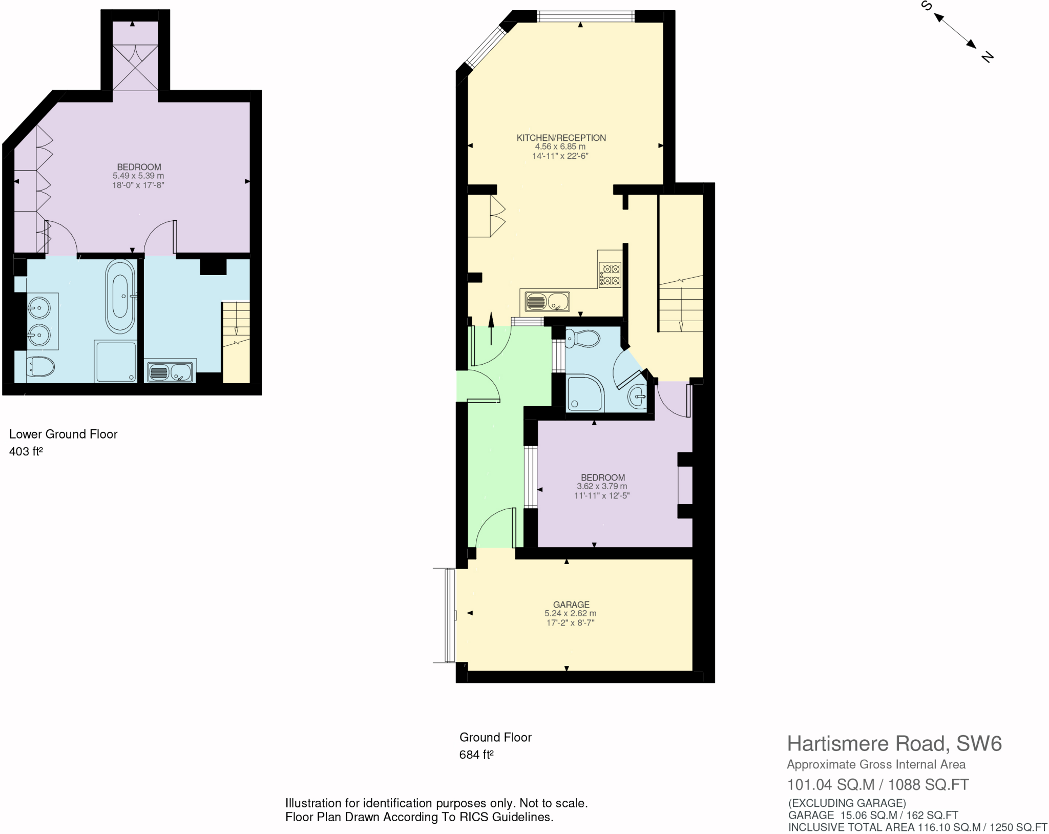
A split-level Maisonette with private garage, located in the heart of Fulham, SW6. A charming split-level maisonette, offering an impressive blend of space and functionality, complete with a private garage. Entering through a private entrance you are greeted by a delightful patio courtyard, whic...
Property Oracle says ..
This property is a charming 2-bedroom, 2-bathroom flat located in the desirable Fulham Broadway area of London. The flat is presented in excellent condition and benefits from a modern kitchen and bathroom. There is also a private rear garden and garage. The location is excellent, with easy access to public transportation and local amenities. The property is listed at £900,000 which is slightly below the average price for the area, making it potentially good value for money.
Therefore, we give this property 8 / 10. *Disclaimer: This is our option and does constitute a recommendation or financial advice. Do your own research. *
- Price
- 8
- Condition
- 9
- Location
- 9
- Land
- 7
- Bedrooms
- 2
- Bathrooms
- 2
- Sqft (est)
- 1,681.00
The heatmap indicates the level of crime in the area. The color of the heatmap indicates the crime severity and recency.
Metrics Year-on-Year
- Average area value
- 778,925.00 £Decreased by 20.14 %
- Est sale value
- 1,739,835.00 £Increased by 17.08 %
- Average area rental value
- 2,952.00 £/moIncreased by 25.08 %
- Est letting value
- 5,043.00 £/moIncreased by 50.00 %
- Est rental Yield
- 4.55 %Increased by 56.90 %
- Crime Rate
- 6.00 %Unchanged by 0.00 %
Agent Activity
Knight Frank created the listing.
Nearby Schools
| Name | Type | Ofsted | Distance |
|---|---|---|---|
| Normand Croft Community School For Early Years And Primary Education | Community School | Good | 0.42 KM |
| Psla Children'S Centre Services At Normand Croft Community School | Children's Centre Linked Site | 0.43 KM | |
| St Thomas Of Canterbury Catholic Primary School | Voluntary Aided School | Good | 0.49 KM |
| Kensington Prep School | Other Independent School | 0.50 KM | |
| Fulham Primary School | Academy Converter | Good | 0.58 KM |
Images
Nearby Streets
| Name | Average Price | Average Sqft | Distance |
|---|---|---|---|
| Epirus Road | £ 0 | 0 | 0.00 KM |
| John Smith Avenue | £ 0 | 0 | 0.00 KM |
| Bishop's Road | £ 475,000 | 0 | 0.00 KM |
| Goaters Alley | £ 850,000 | 0 | 0.00 KM |
| Jervis Road | £ 0 | 0 | 0.00 KM |
Nearby Transport
| Name | NLC | TLC | Distance |
|---|---|---|---|
| West Brompton | 8875 | WBP | 1.00 KM |
| Kensington (Olympia) | 3092 | KPA | 1.97 KM |
| Imperial Wharf | 9586 | IMW | 2.35 KM |
| Putney | 5603 | PUT | 2.73 KM |
| Wandsworth Town | 5576 | WNT | 2.83 KM |
Nearby Listings
| Address | Price | Type | Score | Distance |
|---|---|---|---|---|
| Hartismere Road, London, SW6 | £ 1,750,000 | BUY | Unknown | 0.01 KM |
| Hartismere Road, London | £ 2,100,000 | BUY | 8 / 10 | 0.03 KM |
| Hartismere Road, Fulham, London, SW6 | £ 825,000 | BUY | Unknown | 0.03 KM |
| Hartismere Road, London, SW6 | £ 1,850,000 | BUY | 9 / 10 | 0.04 KM |
| Hartismere Road, London | £ 1,700,000 | BUY | 7 / 10 | 0.05 KM |
Nearby Properties
| Address | Price | Distance |
|---|---|---|
| 51a Hartismere Road | £ 750,000 | 0.04 KM |
| 65 Hartismere Road | £ 1,283,400 | 0.04 KM |
| 57 Hartismere Road | £ 670,000 | 0.04 KM |
| 77 Hartismere Road | £ 370,000 | 0.04 KM |
| 75a Hartismere Road | £ 650,000 | 0.04 KM |