Croydon Road, Beckenham, Kent, BR3
By Robinson Jackson
£ 350,000
Reviews
3 out of 5 stars
Robinson Jackson says ..
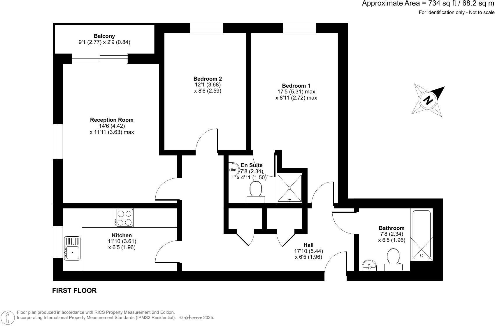
Bright and airy first floor modern purpose built flat offering spacious living accommodation. Benefitting from two double bedrooms, balcony overlooking the communal gardens, allocated parking space, two bathrooms and being sold with no onward chain. Within a short walk of Elmers End sta...
Property Oracle says ..
This two-bedroom flat on Croydon Road in Beckenham offers a modern living space in a convenient location. The property benefits from its proximity to local schools, transportation, and amenities. While the square footage is below the area average, the price reflects this. The flat appears to be in good condition, requiring minimal immediate work, although some cosmetic updates could enhance its appeal. The lack of a private garden may be a drawback for some buyers, but the balcony offers some outdoor space. Overall, this property presents a solid opportunity for first-time buyers or investors seeking a well-connected and modern flat in Beckenham.
Therefore, we give this property 6 / 10. *Disclaimer: This is our option and does constitute a recommendation or financial advice. Do your own research. *
- Price
- 8
- Condition
- 7
- Location
- 7
- Land
- 3
- Bedrooms
- 2
- Bathrooms
- 2
- Sqft (est)
- 321.95
The heatmap indicates the level of crime in the area. The color of the heatmap indicates the crime severity and recency.
Metrics Year-on-Year
- Average area value
- 750,000.00 £Increased by 5.57 %
- Est sale value
- 178,682.25 £Increased by 5.71 %
- Average area rental value
- 1,775.00 £/moDecreased by 23.52 %
- Est letting value
- 321.95 £/moUnchanged by 0.00 %
- Est rental Yield
- 2.84 %Decreased by 27.55 %
- Crime Rate
- 7.00 %Unchanged by 0.00 %
Agent Activity
Robinson Jackson created the listing.
Nearby Schools
| Name | Type | Ofsted | Distance |
|---|---|---|---|
| Marian Vian Primary School | Academy Converter | Good | 0.44 KM |
| Churchfields Primary School | Academy Converter | 0.80 KM | |
| Monks Orchard Primary School | Academy Converter | 0.84 KM | |
| Eden Park High School | Free Schools | 0.93 KM | |
| Balgowan Primary School | Academy Converter | Good | 1.08 KM |
Images
Nearby Streets
| Name | Average Price | Average Sqft | Distance |
|---|---|---|---|
| Priory Close | £ 625,000 | 0 | 0.00 KM |
| Ash Tree Close | £ 725,000 | 0 | 0.00 KM |
| Lavender Way | £ 0 | 0 | 0.00 KM |
| Chaffinch Road | £ 700,000 | 0 | 0.00 KM |
| Garden Road | £ 750,000 | 0 | 0.00 KM |
Nearby Transport
| Name | NLC | TLC | Distance |
|---|---|---|---|
| Elmers End | 5049 | ELE | 0.34 KM |
| Birkbeck | 5401 | BIK | 1.19 KM |
| Clock House | 5048 | CLK | 1.30 KM |
| Kent House | 5080 | KTH | 1.54 KM |
| New Beckenham | 5058 | NBC | 2.39 KM |
Nearby Listings
| Address | Price | Type | Score | Distance |
|---|---|---|---|---|
| Croydon Road, Beckenham, Kent, BR3 | £ 350,000 | BUY | 6 / 10 | 0.00 KM |
| Croydon Road, Beckenham, BR3 | £ 350,000 | BUY | 6 / 10 | 0.00 KM |
| Croydon Road, Beckenham, Kent, BR3 | £ 350,000 | BUY | 6 / 10 | 0.01 KM |
| Croydon Road, Beckenham, Kent | £ 248,000 | BUY | 7 / 10 | 0.02 KM |
| Croydon Road, Beckenham, Kent | £ 375,000 | BUY | 7 / 10 | 0.02 KM |
Nearby Properties
| Address | Price | Distance |
|---|---|---|
| 85a Croydon Road | £ 132,000 | 0.07 KM |
| 85b Croydon Road | £ 212,500 | 0.07 KM |
| 61a Croydon Road | £ 270,000 | 0.07 KM |
| 61 Croydon Road | £ 8,000 | 0.07 KM |
| 67 Croydon Road | £ 319,000 | 0.07 KM |