3a Walnut Tree Farm Benham Lane, Riseley, Reading
EW

3a Walnut Tree Farm Benham Lane, Riseley, Reading

By EweMove

£ 408,000

Reviews

3 out of 5 stars

EweMove says ..

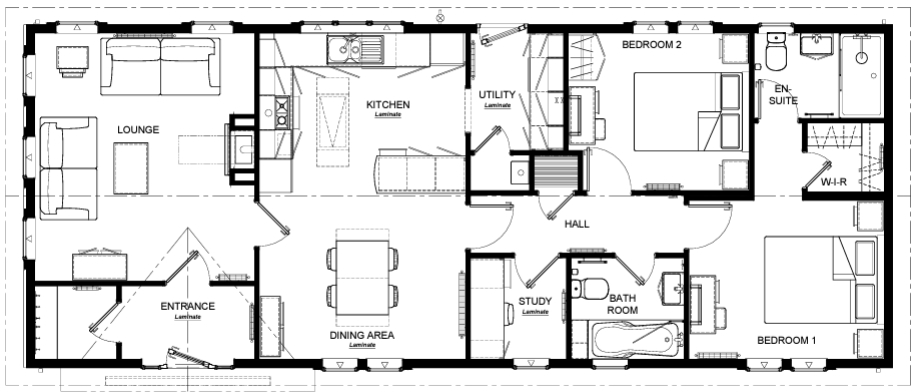
OPEN WEEKEND 17TH & 18TH MAY - 10am - 4pm - CALL TO REGISTER YOUR INTEREST AND RECEIVE YOUR FREE GIFT-BAG AT THE OPEN WEEKEND. 55x22ft OMAR CANFORDWelcome to No. 3A Walnut Tree Farm – A Stunning Two-Bedroom Park Ho...

Property Oracle says ..

This property is a modern park home located in Riseley, Reading. The property benefits from two bedrooms and two bathrooms, and appears to be in excellent condition based on the provided images. It has a small patio area and some outside space. The list price is slightly above the average price per square foot for the area, however, considering the modern condition and desirable park home location, it may represent fair value. More information on plot size would help refine this assessment. The location is convenient with nearby schools and transport links, though more detailed information on proximity to amenities would enhance the analysis.

Therefore, we give this property 6 / 10. *Disclaimer: This is our option and does constitute a recommendation or financial advice. Do your own research. *

Price
7
Condition
10
Location
7
Land
3
Bedrooms
2
Bathrooms
2
Sqft (est)
1,250.00

The heatmap indicates the level of crime in the area. The color of the heatmap indicates the crime severity and recency.

Metrics Year-on-Year

Average area value
200,000.00 £
Decreased by 58.61 %
from 483,250.00 £
Est sale value
663,750.00 £
Increased by 26.73 %
from 523,750.00 £
Average area rental value
2,175.00 £/mo
Increased by 58.18 %
from 1,375.00 £/mo
Est letting value
6,250.00 £/mo
Increased by 400.00 %
from 1,250.00 £/mo
Est rental Yield
13.05 %
Increased by 282.70 %
from 3.41 %
Crime Rate
10.00 %
Unchanged by 0.00 %
from 10.00 %

Agent Activity

  • EweMove created the listing.

Nearby Schools

NameTypeOfstedDistance
Lambs Lane Primary SchoolCommunity SchoolGood3.36 KM
OakbankFree SchoolsRequires improvement4.60 KM
Alder Grove Church Of England Primary SchoolFree Schools4.67 KM
Shinfield St Mary'S Cofe Junior SchoolVoluntary Aided SchoolGood4.68 KM
Shinfield Infant And Nursery SchoolAcademy Converter4.74 KM

Images

13982dbb55db0bf2d7f9bf0fcd105ff8712393c1073504ebbb 93ccf54e34ba29e1bfef986f24e08541e07d552c9efdf636cc faf14c188b82ecfaffd06fe2948713970d0a2e24364374596e a25a69fe3099f748158d2deb48059bd9a8ca3ba637c5e65615 5ff932a5d7db111e5056a72363ffa846ddb71727e1bf8838a3 996f29283492df5b59258b15e998bc2713b55af81b5f0d89d0 aceff8df4d2a1c0cdcae2b6ca12ce7ca6f88c73fa63f3e23aa fa5a2e7fb153a266089ff4f0995a0f9a350f8b884b048757b3 5362a2217d840af0e42b4a71646111b59b54b096c0c74c4cad 27f3faeea42815e50134ab993227f3bcf870a8cb49e2d78b73 a032b95c2f7348ea5d0de46033494820caee549064bf7d2650 923fb55e954f3454c056d20b9e83d0d5cd4fb88748143b03c8

Nearby Streets

NameAverage PriceAverage SqftDistance
Saint Legers Way £ 462,13800.00 KM
School Lane £ 699,95000.00 KM
Sun Lane £ 000.00 KM
Curly's Way £ 000.00 KM

Nearby Transport

NameNLCTLCDistance
Mortimer5501MOR8.67 KM
Hook5523HOK9.20 KM
Earley5694EAR9.78 KM

Nearby Listings

AddressPriceTypeScoreDistance
2A Walnut Tree Farm Benham Lane, Riseley, Reading £ 399,995BUY5 / 100.00 KM
1 Walnut Tree Farm Benham Lane, Riseley, Reading £ 425,000BUY8 / 100.00 KM
3a Walnut Tree Farm Benham Lane, Riseley, Reading £ 408,000BUY6 / 100.00 KM
Benham Lane, Riseley, Reading £ 320,000BUYUnknown0.03 KM
1a Walnut Tree Farm Benham Lane, Riseley, Reading £ 390,995BUY7 / 100.09 KM

Nearby Properties

AddressPriceDistance
Talland £ 475,0000.19 KM
Moorside £ 700,0000.19 KM
Walnut Tree Cottage £ 582,5000.19 KM
Tudor Farm £ 1,575,0000.19 KM
Willow Tree Cottage £ 590,0000.19 KM