Millstone Way, Gloucester, GL1
By Belvoir Gloucester
£ 180,000
Reviews
3 out of 5 stars
Belvoir Gloucester says ..
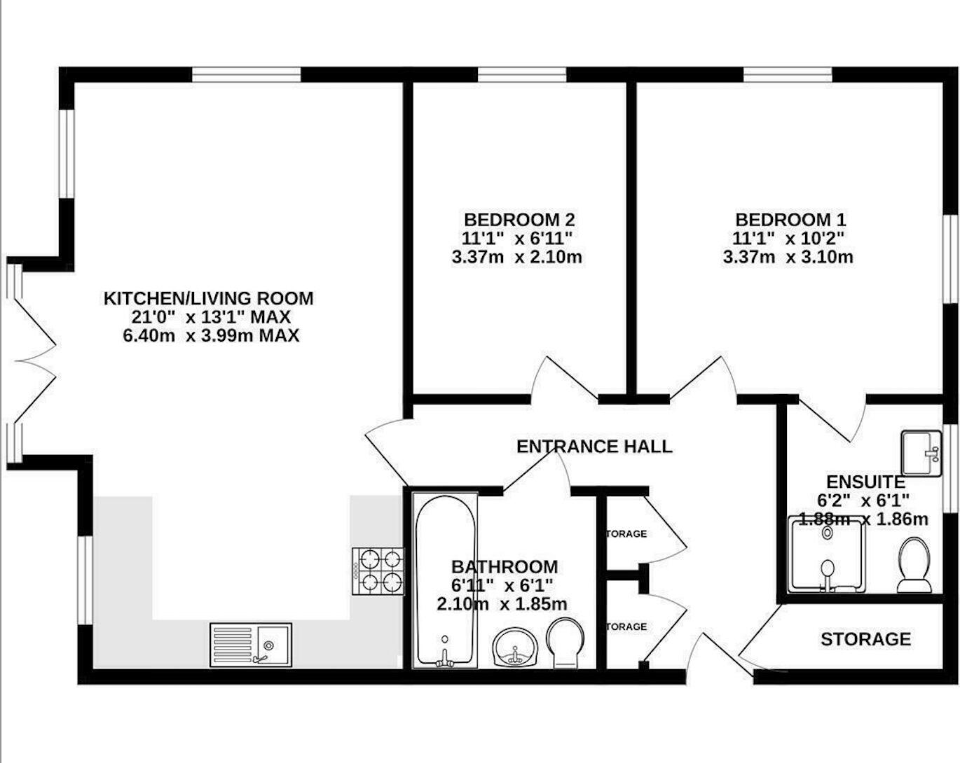
Two Bedroom Ground Floor Apartment. One Allocated Parking Space. No Ground Rent Payment. Open Plan Living Room-Kitchen & Dining Room. Immaculately Decorated Throughout. Modern Kitchen, Bathroom & Ensuite. Remaining NHBC Warranty. Quiet New Build Estate. Fantastic Investment Oppo...
Property Oracle says ..
This two-bedroom, two-bathroom apartment in Podsmead, Gloucester is presented in immaculate condition. The photographs showcase a modern, well-maintained interior with a contemporary kitchen and bathrooms. The open-plan living area provides a spacious feel. While the lack of a garden is a noteworthy point, the property’s location offers easy access to Gloucester city centre and Gloucester Quays, and proximity to well-regarded schools like The Crypt School. The list price of £180,000 appears to be in line with other comparable properties in the immediate area, making it a potentially attractive option for first-time buyers or investors seeking a modern and low-maintenance property in a convenient location. Buyers should carefully consider the absence of outdoor space before making a purchase decision. Further investigation into the specifics of the leasehold agreement, ground rent, and service charges would be prudent prior to purchase.
Therefore, we give this property 6 / 10. *Disclaimer: This is our option and does constitute a recommendation or financial advice. Do your own research. *
- Price
- 7
- Condition
- 9
- Location
- 7
- Land
- 1
- Bedrooms
- 2
- Bathrooms
- 2
- Sqft (est)
- 827.53
The heatmap indicates the level of crime in the area. The color of the heatmap indicates the crime severity and recency.
Metrics Year-on-Year
- Average area value
- 290,495.00 £Decreased by 11.63 %
- Est sale value
- 268,947.25 £Increased by 0.31 %
- Average area rental value
- 1,124.00 £/moIncreased by 4.46 %
- Est letting value
- 827.53 £/moUnchanged by 0.00 %
- Est rental Yield
- 4.64 %Increased by 18.07 %
- Crime Rate
- 4.00 %Unchanged by 0.00 %
Agent Activity
Belvoir Gloucester created the listing.
Nearby Schools
| Name | Type | Ofsted | Distance |
|---|---|---|---|
| The Crypt School | Academy Converter | Outstanding | 1.03 KM |
| The Lighthouse | Children's Centre | 1.11 KM | |
| Linden Primary School | Community School | Good | 1.12 KM |
| The Oaks Children'S Centre | Children's Centre | 1.13 KM | |
| Grange Primary School | Academy Sponsor Led | 1.17 KM |
Images
Nearby Streets
| Name | Average Price | Average Sqft | Distance |
|---|---|---|---|
| Woodpecker Road | £ 0 | 0 | 0.00 KM |
| Ashville Road | £ 315,000 | 0 | 0.00 KM |
| Winget Close | £ 0 | 0 | 0.00 KM |
| Keats Avenue | £ 250,000 | 0 | 0.00 KM |
| Mainsail Lane | £ 135,000 | 0 | 0.00 KM |
Nearby Transport
| Name | NLC | TLC | Distance |
|---|---|---|---|
| Gloucester | 4760 | GCR | 3.11 KM |
Nearby Listings
| Address | Price | Type | Score | Distance |
|---|---|---|---|---|
| Millstone Way, Gloucester, GL1 | £ 180,000 | BUY | 6 / 10 | 0.00 KM |
| Millstone Way, Linden, Gloucester, GL1 | £ 170,000 | BUY | 5 / 10 | 0.00 KM |
| Millstone Way, Gloucester, GL1 5QY | £ 168,000 | BUY | 7 / 10 | 0.01 KM |
| Millstone Way, Gloucester, GL1 | £ 168,000 | BUY | Unknown | 0.01 KM |
| Millstone Way, Gloucester, Gloucestershire, GL1 | £ 175,000 | BUY | 6 / 10 | 0.02 KM |
Nearby Properties
| Address | Price | Distance |
|---|---|---|
| 42 Tuffley Crescent | £ 242,500 | 0.23 KM |
| 69 Tuffley Crescent | £ 89,500 | 0.23 KM |
| 18 Tuffley Crescent | £ 327,000 | 0.23 KM |
| 68 Tuffley Crescent | £ 295,000 | 0.23 KM |
| 32 Tuffley Crescent | £ 260,000 | 0.23 KM |