Lime Delph Road, Wigston, LE18
By Purplebricks
£ 80,000
Reviews
3 out of 5 stars
Purplebricks says ..
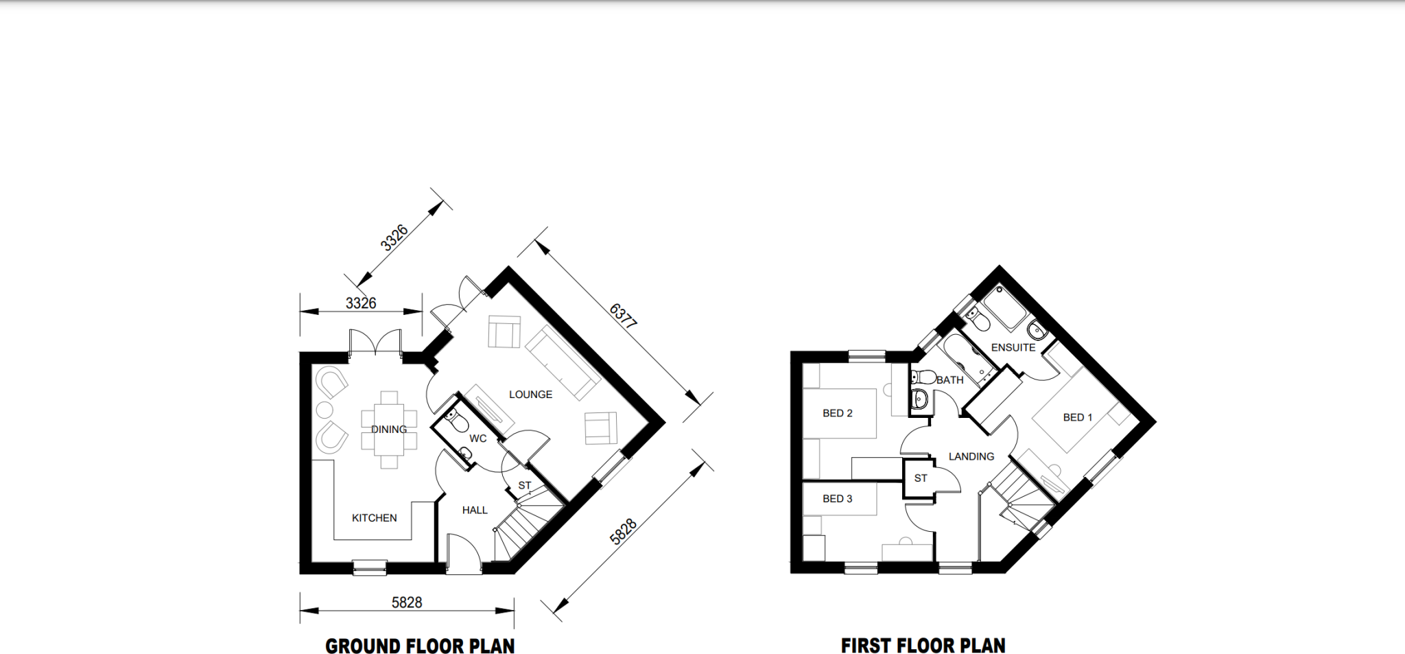
An Exciting opportunity to get onto the property ladder, this Immaculate Three Bedroom, SHARED OWNERSHIP PROPERTY. Located on a quiet residential development, in the popular Wigston area. This Property, was built by David Wilson Homes and still benefits from remaining NHBC Guarantee. The prope...
Property Oracle says ..
This three-bedroom, two-bathroom property in Wigston All Saints, Leicestershire, is listed at £80,000. The property is a modern build, presented in good condition with a contemporary interior design. The photos reveal a clean and well-maintained interior, boasting features such as a modern kitchen and bathroom. The property benefits from being within reasonable distance of amenities and good primary schools. However, the garden is relatively small. The provided data lacks sufficient detail on the specifics of comparable properties to perform a thorough price per square foot analysis; neighboring properties range from £149,950 to £325,000, but lack crucial square footage metrics to ascertain value. The significantly low list price compared to the local market deserves consideration and suggests either a highly advantageous deal or the presence of factors influencing the value that haven’t been disclosed. The lack of plot size information makes a full assessment of value difficult. Further investigation into the specifics of the listing and any potential factors influencing the price is recommended before a final assessment of value can be made.
Therefore, we give this property 6 / 10. *Disclaimer: This is our option and does constitute a recommendation or financial advice. Do your own research. *
- Price
- 6
- Condition
- 8
- Location
- 7
- Land
- 4
- Bedrooms
- 3
- Bathrooms
- 2
- Sqft (est)
- 1,221.38
The heatmap indicates the level of crime in the area. The color of the heatmap indicates the crime severity and recency.
Metrics Year-on-Year
- Average area value
- 300,781.00 £Increased by 8.72 %
- Est sale value
- 415,269.20 £Increased by 11.48 %
- Average area rental value
- 913.00 £/moDecreased by 11.70 %
- Est letting value
- 1,221.38 £/moUnchanged by 0.00 %
- Est rental Yield
- 3.64 %Decreased by 18.93 %
- Crime Rate
- 8.00 %Unchanged by 0.00 %
Agent Activity
Purplebricks created the listing.
Nearby Schools
| Name | Type | Ofsted | Distance |
|---|---|---|---|
| Thythorn Field Community Primary School | Community School | Good | 0.51 KM |
| Wigston Menphys Nursery School | Local Authority Nursery School | Good | 1.78 KM |
| The Meadow Community Primary School | Academy Converter | Good | 1.80 KM |
| Wigston Magna Sure Start Children'S Centre | Children's Centre | 1.84 KM | |
| Little Hill Primary | Academy Converter | 1.89 KM |
Images
Nearby Streets
| Name | Average Price | Average Sqft | Distance |
|---|---|---|---|
| Lime Delph Road | £ 259,333 | 0 | 0.00 KM |
| Black Swan Road | £ 86,250 | 0 | 0.00 KM |
| Gravel Pen | £ 270,000 | 0 | 0.00 KM |
| Preston Close | £ 0 | 0 | 0.00 KM |
| Welford Road | £ 342,500 | 0 | 0.00 KM |
Nearby Transport
| Name | NLC | TLC | Distance |
|---|---|---|---|
| South Wigston | 1949 | SWS | 4.06 KM |
| Leicester | 1947 | LEI | 7.39 KM |
Nearby Listings
| Address | Price | Type | Score | Distance |
|---|---|---|---|---|
| Lime Delph Road, Wigston, LE18 | £ 80,000 | BUY | 6 / 10 | 0.00 KM |
| Limedelph Road, Wigston, Leicester | £ 76,250 | BUY | 8 / 10 | 0.02 KM |
| Lime delph Road, Wigston | £ 195,000 | BUY | 7 / 10 | 0.06 KM |
| Black Swan Road, Wigston | £ 90,000 | BUY | 7 / 10 | 0.07 KM |
| Black Swan Road, Wigston | £ 110,000 | BUY | 6 / 10 | 0.07 KM |
Nearby Properties
| Address | Price | Distance |
|---|---|---|
| 12 Ashurst Close | £ 255,000 | 0.32 KM |
| 22 Ashurst Close | £ 300,000 | 0.32 KM |
| 11 Ashurst Close | £ 168,000 | 0.32 KM |
| 20 Ashurst Close | £ 149,950 | 0.32 KM |
| 7 Ashurst Close | £ 277,500 | 0.32 KM |