Lawnhurst Close, Cheadle, Greater Manchester, SK8
By OFF AGENT
£ 365,000
Reviews
3 out of 5 stars
OFF AGENT says ..
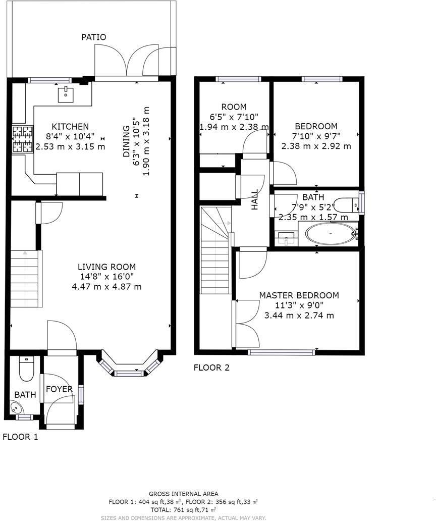
A stylishly presented three-bedroom, two-bathroom end terrace house situated on a corner plot which forms part of the popular development built by Jones Homes.
Property Oracle says ..
This property is a 3 bedroom, 2 bathroom semi-detached house located in Cheadle, Greater Manchester. The property is well presented and appears to be in good condition, with a modern kitchen and updated bathrooms. The location is convenient, with nearby schools and transportation links. The list price of £365,000 seems reasonable considering the average price per sqft in the area, but is below the average price for similar properties. The property benefits from a small rear garden.
Therefore, we give this property 7 / 10. *Disclaimer: This is our option and does constitute a recommendation or financial advice. Do your own research. *
- Price
- 7
- Condition
- 9
- Location
- 8
- Land
- 4
- Bedrooms
- 3
- Bathrooms
- 2
- Sqft (est)
- 764.24
The heatmap indicates the level of crime in the area. The color of the heatmap indicates the crime severity and recency.
Metrics Year-on-Year
- Average area value
- 477,778.00 £Increased by 2.41 %
- Est sale value
- 345,436.48 £Increased by 21.51 %
- Average area rental value
- 1,198.00 £/moDecreased by 27.92 %
- Est letting value
- 764.24 £/moUnchanged by 0.00 %
- Est rental Yield
- 3.01 %Decreased by 29.51 %
- Crime Rate
- 0.00 %
Agent Activity
OFF AGENT created the listing.
Nearby Schools
| Name | Type | Ofsted | Distance |
|---|---|---|---|
| Bradshaw Hall Primary School | Community School | Good | 0.81 KM |
| St James' Catholic High School | Voluntary Aided School | Good | 0.82 KM |
| Cheadle Hulme School | Other Independent School | 1.13 KM | |
| Greenbank Preparatory School | Other Independent School | 1.14 KM | |
| Royal School, Manchester | Non-maintained Special School | Outstanding | 1.25 KM |
Images
Nearby Streets
| Name | Average Price | Average Sqft | Distance |
|---|---|---|---|
| Dawlish Avenue | £ 674,950 | 0 | 0.00 KM |
| Westfield Road | £ 0 | 0 | 0.00 KM |
| Hay Croft | £ 0 | 0 | 0.00 KM |
| Cherwell Close | £ 415,000 | 0 | 0.00 KM |
| Turnpike Crescent | £ 0 | 0 | 0.00 KM |
Nearby Transport
| Name | NLC | TLC | Distance |
|---|---|---|---|
| Cheadle Hulme | 2870 | CHU | 2.05 KM |
| Handforth | 2767 | HTH | 2.37 KM |
| Heald Green | 2860 | HDG | 3.71 KM |
| Gatley | 2953 | GTY | 4.35 KM |
| Bramhall | 2944 | BML | 4.43 KM |
Nearby Listings
| Address | Price | Type | Score | Distance |
|---|---|---|---|---|
| Lawnhurst Close, Cheadle, Greater Manchester, SK8 | £ 365,000 | BUY | 7 / 10 | 0.00 KM |
| Lawnhurst Close, Cheadle Hulme | £ 425,000 | BUY | 8 / 10 | 0.02 KM |
| Lawnhurst Close, Cheadle Hulme | £ 465,000 | BUY | 6 / 10 | 0.07 KM |
| Three Acres Lane, Cheadle Hulme | £ 575,000 | BUY | 7 / 10 | 0.13 KM |
| Glenville Close, Cheadle Hulme, SK8 | £ 545,000 | BUY | 7 / 10 | 0.13 KM |
Nearby Properties
| Address | Price | Distance |
|---|---|---|
| 21 Lawnhurst Close | £ 355,000 | 0.00 KM |
| 2 Lawnhurst Close | £ 325,000 | 0.00 KM |
| 8 Lawnhurst Close | £ 325,000 | 0.00 KM |
| 27 Lawnhurst Close | £ 326,500 | 0.00 KM |
| 6 Lawnhurst Close | £ 445,000 | 0.00 KM |