Lewis King says ..
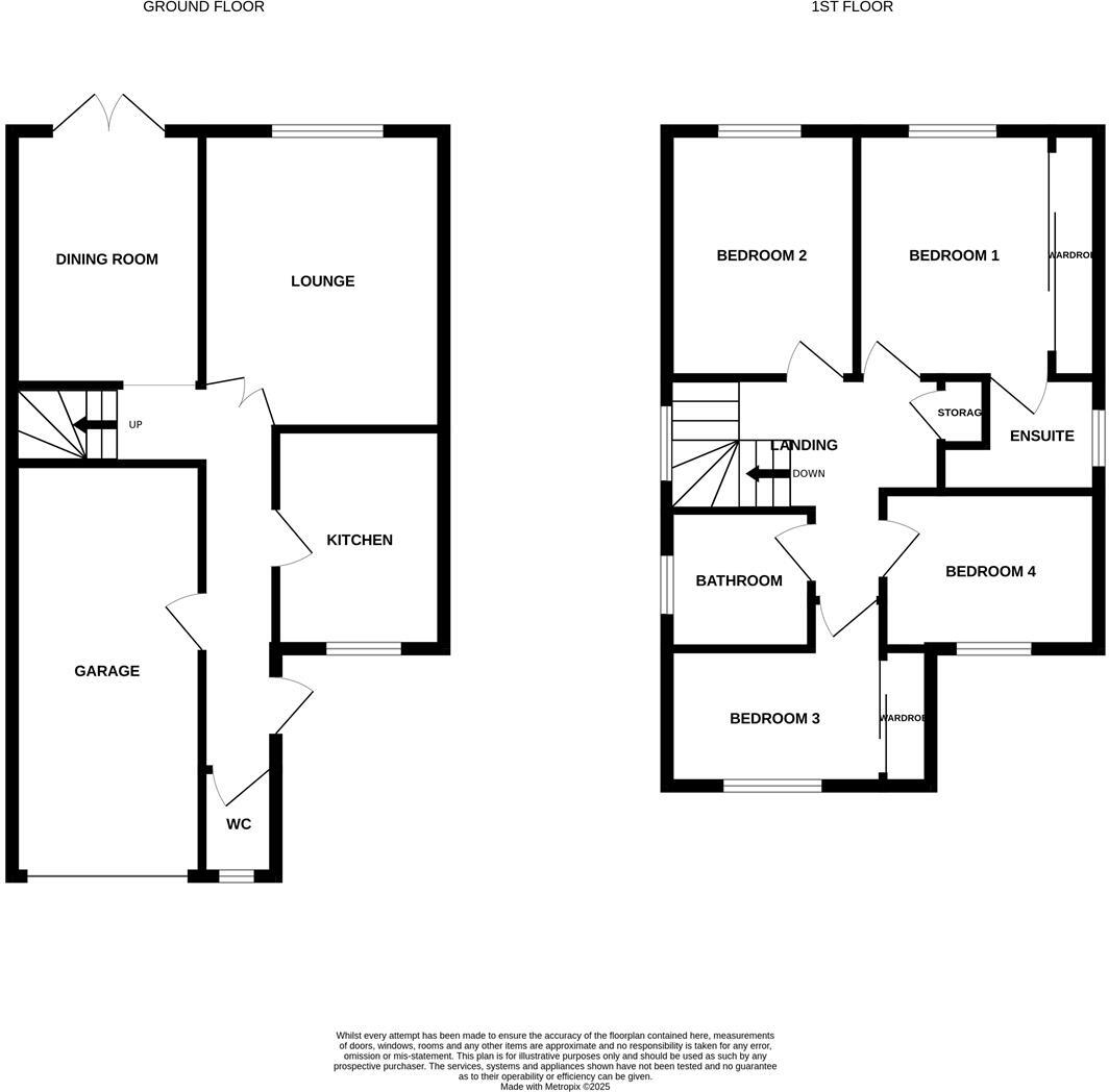
A spacious family home found in a quiet cul-de-sac near the heart of Wistaston, this home has a lot to offer with plentiful accommodation, single integral garage, off-road parking, a large rear garden, plus is only found a short distance from Crewe and Nantwich. Upon entering the home, y...
Property Oracle says ..
Therefore, we give this property 6 / 10. *Disclaimer: This is our option and does constitute a recommendation or financial advice. Do your own research. *
- Price
- 6
- Condition
- 5
- Location
- 7
- Land
- 6
- Bedrooms
- 4
- Bathrooms
- 2
- Sqft (est)
- 795.00
The heatmap indicates the level of crime in the area. The color of the heatmap indicates the crime severity and recency.
Metrics Year-on-Year
- Average area value
- 268,792.00 £Decreased by 11.42 %
- Est sale value
- 229,755.00 £Increased by 36.32 %
- Average area rental value
- 1,600.00 £/moIncreased by 36.17 %
- Est letting value
- 795.00 £/mo
- Est rental Yield
- 7.14 %Increased by 53.55 %
- Crime Rate
- 3.00 %Unchanged by 0.00 %
from 303,434.00 £
from 168,540.00 £
from 1,175.00 £/mo
from 0.00 £/mo
from 4.65 %
from 3.00 %
Agent Activity
Lewis King created the listing.
Nearby Schools
| Name | Type | Ofsted | Distance |
|---|---|---|---|
| The Axis Academy | Free Schools Special | 0.59 KM | |
| Wistaston Church Lane Academy | Academy Converter | Good | 1.38 KM |
| Wistaston Academy | Academy Converter | 1.78 KM | |
| St Mary'S Catholic Primary School, Crewe | Voluntary Aided School | Good | 2.33 KM |
| St Thomas More Catholic High School | Academy Converter | Good | 2.42 KM |
Images
Nearby Streets
| Name | Average Price | Average Sqft | Distance |
|---|---|---|---|
| Black Lane | £ 395,000 | 0 | 0.00 KM |
| Mossdale Close | £ 0 | 0 | 0.00 KM |
| George Gardens | £ 0 | 0 | 0.00 KM |
| Laburnum Avenue | £ 0 | 0 | 0.00 KM |
| Mandarin Place | £ 0 | 0 | 0.00 KM |
Nearby Transport
| Name | NLC | TLC | Distance |
|---|---|---|---|
| Nantwich | 1247 | NAN | 5.18 KM |
| Crewe | 1243 | CRE | 5.43 KM |
Nearby Listings
| Address | Price | Type | Score | Distance |
|---|---|---|---|---|
| Glendale Close, Wistaston, Crewe | £ 250,000 | BUY | 6 / 10 | 0.00 KM |
| Patterdale Close, Wistaston, Crewe | £ 230,000 | BUY | 7 / 10 | 0.08 KM |
| Patterdale Close, Wistaston | £ 325,000 | BUY | 7 / 10 | 0.09 KM |
| Riverside Grove, Wistaston, Crewe | £ 249,950 | BUY | 7 / 10 | 0.14 KM |
| Langdale Road, Wistaston | £ 250,000 | BUY | 7 / 10 | 0.18 KM |
Nearby Properties
| Address | Price | Distance |
|---|---|---|
| 7 Glendale Close | £ 175,000 | 0.02 KM |
| 20 Glendale Close | £ 235,000 | 0.02 KM |
| 12 Glendale Close | £ 173,500 | 0.02 KM |
| 36 Glendale Close | £ 243,000 | 0.02 KM |
| 33 Glendale Close | £ 155,000 | 0.02 KM |