Acobas says ..
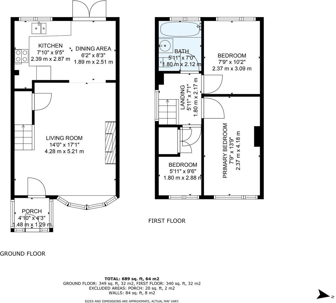
Acobas are delighted to offer an excellent opportunity to acquire a recently refurbished freehold property nestled in the highly sought-after residential area of Sutton Leach. Accommodation: Enter the home through a well maintained entrance porch, leading through into an inviting ope...
Property Oracle says ..
Therefore, we give this property 7 / 10. *Disclaimer: This is our option and does constitute a recommendation or financial advice. Do your own research. *
- Price
- 8
- Condition
- 8
- Location
- 7
- Land
- 7
- Bedrooms
- 3
- Bathrooms
- 1
- Sqft (est)
- 689.00
- Lot (est)
- 689.00
The heatmap indicates the level of crime in the area. The color of the heatmap indicates the crime severity and recency.
Metrics Year-on-Year
- Average area value
- 291,263.00 £Decreased by 1.08 %
- Est sale value
- 240,461.00 £Increased by 25.99 %
- Average area rental value
- 980.00 £/moDecreased by 0.31 %
- Est letting value
- 689.00 £/mo
- Est rental Yield
- 4.04 %Increased by 0.75 %
- Crime Rate
- 10.00 %Unchanged by 0.00 %
from 294,431.00 £
from 190,853.00 £
from 983.00 £/mo
from 0.00 £/mo
from 4.01 %
from 10.00 %
Agent Activity
Acobas created the listing.
Nearby Schools
| Name | Type | Ofsted | Distance |
|---|---|---|---|
| Sherdley Primary School | Community School | Good | 0.48 KM |
| Four Ways Children'S Centre | Children's Centre Linked Site | 0.61 KM | |
| Willow Tree Primary School | Community School | Good | 0.69 KM |
| St Theresa'S Catholic Primary School | Voluntary Aided School | Outstanding | 0.73 KM |
| Eaves Primary School | Community School | Good | 0.78 KM |
Images
Nearby Streets
| Name | Average Price | Average Sqft | Distance |
|---|---|---|---|
| Pasture Close | £ 89,999 | 0 | 0.00 KM |
| Lynton Grove | £ 195,000 | 0 | 0.00 KM |
| Thames Road | £ 105,000 | 0 | 0.00 KM |
| Rye Close | £ 0 | 0 | 0.00 KM |
| Meadowcroft | £ 190,000 | 0 | 0.00 KM |
Nearby Transport
| Name | NLC | TLC | Distance |
|---|---|---|---|
| Lea Green | 2339 | LEG | 0.65 KM |
| St Helens Junction | 2340 | SHJ | 2.50 KM |
| St Helens Central | 2341 | SNH | 3.50 KM |
| Thatto Heath | 2264 | THH | 4.57 KM |
| Rainhill | 2296 | RNH | 5.15 KM |
Nearby Listings
| Address | Price | Type | Score | Distance |
|---|---|---|---|---|
| Woolacombe Avenue, Sutton Leach | £ 200,000 | BUY | 7 / 10 | 0.00 KM |
| Appledore Grove, ST. HELENS, Merseyside, WA9 | £ 185,000 | BUY | 7 / 10 | 0.06 KM |
| Woolacombe Avenue, Sutton Leach, St Helens, WA9 | £ 169,950 | BUY | 7 / 10 | 0.10 KM |
| Westleigh Place, Sutton Leach, WA9 | £ 185,000 | BUY | 7 / 10 | 0.11 KM |
| Clock Face Road, Clock Face, St. Helens, Merseyside, WA9 | £ 200,000 | BUY | 6 / 10 | 0.12 KM |
Nearby Properties
| Address | Price | Distance |
|---|---|---|
| 23 Appledore Grove | £ 210,000 | 0.06 KM |
| 2 Appledore Grove | £ 118,000 | 0.06 KM |
| 10 Appledore Grove | £ 137,950 | 0.06 KM |
| 17 Appledore Grove | £ 107,000 | 0.06 KM |
| 16 Appledore Grove | £ 127,000 | 0.06 KM |