Hi-Tor, Grimsby Road, Louth LN11 0ED
By Masons Sales
£ 365,000
Reviews
4 out of 5 stars
Masons Sales says ..
Offers over £365,000. Positioned in a high elevated position with fine views above Grimsby Road and access over a long flight of steps or over a sloping driveway to a parking area and garage at the rear, this much improved, detached bungalow has a superb contemporary interior. Spacious rear ...
Property Oracle says ..
The property presents itself well. The location is enhanced by its proximity to good schools. The images indicate a high standard of condition and an extensive, well-maintained garden. Further information on the property’s size would allow for a more precise assessment of its value.
Therefore, we give this property 9 / 10. *Disclaimer: This is our option and does constitute a recommendation or financial advice. Do your own research. *
- Price
- 0
- Condition
- 10
- Location
- 8
- Land
- 10
- Bedrooms
- 3
- Bathrooms
- 1
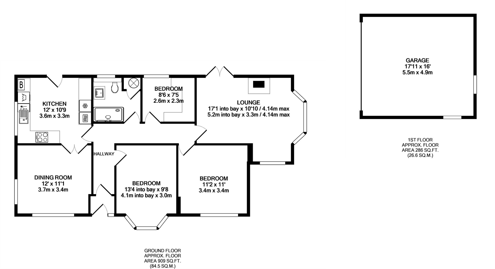
- Sqft (est)
- 909.00
The heatmap indicates the level of crime in the area. The color of the heatmap indicates the crime severity and recency.
Metrics Year-on-Year
- Average area value
- 277,216.00 £Increased by 5.33 %
- Est sale value
- 289,062.00 £Decreased by 3.05 %
- Average area rental value
- 940.00 £/moIncreased by 21.29 %
- Est letting value
- 909.00 £/mo
- Est rental Yield
- 4.07 %Increased by 15.30 %
- Crime Rate
- 0.00 %
Agent Activity
Masons Sales created the listing.
Nearby Schools
| Name | Type | Ofsted | Distance |
|---|---|---|---|
| King Edward Vi Grammar School | Academy Converter | 0.71 KM | |
| Greenwich House School | Other Independent School | Good | 1.00 KM |
| Louth Kidgate Primary Academy | Academy Converter | Outstanding | 1.14 KM |
| St Michael'S Church Of England School, Louth | Voluntary Controlled School | Good | 1.70 KM |
| Louth Academy | Academy Sponsor Led | 1.76 KM |
Images
Nearby Streets
| Name | Average Price | Average Sqft | Distance |
|---|---|---|---|
| Mount Olivet | £ 0 | 0 | 0.00 KM |
| St Mary's Lane | £ 500,000 | 0 | 0.00 KM |
| Russell Danby Drive | £ 0 | 0 | 0.00 KM |
| Westgate Place | £ 0 | 0 | 0.00 KM |
| Goodwood Close | £ 0 | 0 | 0.00 KM |
Nearby Listings
| Address | Price | Type | Score | Distance |
|---|---|---|---|---|
| Hi-Tor, Grimsby Road, Louth LN11 0ED | £ 365,000 | BUY | 9 / 10 | 0.00 KM |
| Grimsby Road, Louth LN11 0ED | £ 550,000 | BUY | 7 / 10 | 0.11 KM |
| Grimsby Road, Louth, LN11 | £ 125,000 | BUY | Unknown | 0.14 KM |
| Grimsby Road, Louth, LN11 | £ 125,000 | BUY | 4 / 10 | 0.14 KM |
| 3 Grimsby Road, Louth, LN11 0ED | £ 425,000 | BUY | Unknown | 0.16 KM |
Nearby Properties
| Address | Price | Distance |
|---|---|---|
| 6 Woodvale Rise | £ 380,000 | 0.11 KM |
| 10 Grimsby Road | £ 382,500 | 0.14 KM |
| 12 Grimsby Road | £ 117,500 | 0.14 KM |
| 36 Grimsby Road | £ 114,000 | 0.14 KM |
| 28 Grimsby Road | £ 120,000 | 0.14 KM |