Centurion Square, Skeldergate, York
By Ashtons Estate Agents
£ 275,000
Reviews
3 out of 5 stars
Ashtons Estate Agents says ..
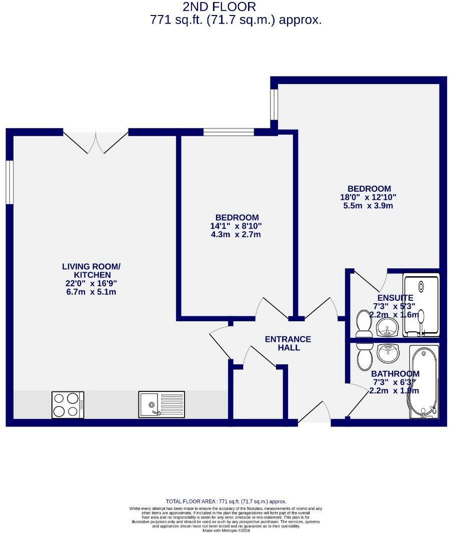
A very spacious two double bedroom, two bathroom second floor apartment located just off Skeldergate close to the heart of the city centre. The well presented accommodation briefly comprises; entrance hallway, large open plan living/ dining/ kitchen space with French doors which open on ...
Property Oracle says ..
This two-bedroom, two-bathroom apartment in York’s Centurion Square offers a convenient city-centre location with easy access to amenities and transport links. The apartment itself presents well in photographs, showcasing a modern kitchen and bathrooms. While the apartment lacks a private garden, residents benefit from communal green spaces. The property’s price aligns with comparable apartments in the immediate vicinity, making it a potentially attractive option for those seeking modern accommodation in a central York location. Further investigation into the specifics of the leasehold would be beneficial for potential buyers. The absence of information on the building’s age and any potential service charges should be addressed to provide a more comprehensive analysis.
Therefore, we give this property 6 / 10. *Disclaimer: This is our option and does constitute a recommendation or financial advice. Do your own research. *
- Price
- 7
- Condition
- 7
- Location
- 9
- Land
- 4
- Bedrooms
- 2
- Bathrooms
- 2
- Sqft (est)
- 771.77
The heatmap indicates the level of crime in the area. The color of the heatmap indicates the crime severity and recency.
Metrics Year-on-Year
- Average area value
- 542,496.00 £Increased by 34.28 %
- Est sale value
- 322,599.86 £Increased by 33.55 %
- Average area rental value
- 1,435.00 £/moIncreased by 6.30 %
- Est letting value
- 771.77 £/moUnchanged by 0.00 %
- Est rental Yield
- 3.17 %Decreased by 20.95 %
- Crime Rate
- 23.00 %Unchanged by 0.00 %
Agent Activity
Ashtons Estate Agents created the listing.
Nearby Schools
| Name | Type | Ofsted | Distance |
|---|---|---|---|
| Scarcroft Primary School | Academy Converter | 0.62 KM | |
| Bootham School | Other Independent School | 0.92 KM | |
| Millthorpe School | Academy Converter | Good | 0.99 KM |
| York St John University | Higher Education Institutions | 1.16 KM | |
| St Wilfrid'S Catholic Primary School - A Catholic Voluntary Academy | Academy Converter | 1.24 KM |
Images
Nearby Streets
| Name | Average Price | Average Sqft | Distance |
|---|---|---|---|
| Victoria Cloisters | £ 251,667 | 0 | 0.00 KM |
| Bishops Court | £ 0 | 0 | 0.00 KM |
| Ouse Bridge | £ 0 | 0 | 0.00 KM |
| Trinity Court | £ 282,500 | 0 | 0.00 KM |
| King's Staith | £ 1,000,000 | 0 | 0.00 KM |
Nearby Transport
| Name | NLC | TLC | Distance |
|---|---|---|---|
| York | 8263 | YRK | 0.84 KM |
| Poppleton | 8254 | POP | 7.28 KM |
Nearby Listings
| Address | Price | Type | Score | Distance |
|---|---|---|---|---|
| Centurion Square, Skeldergate, York | £ 275,000 | BUY | 6 / 10 | 0.00 KM |
| Centurion Square, Skeldergate, York | £ 290,000 | BUY | 7 / 10 | 0.00 KM |
| Fetter Lane, York, North Yorkshire, YO1 | £ 225,000 | BUY | 7 / 10 | 0.04 KM |
| Fetter Lane, York, North Yorkshire, YO1 | £ 260,000 | BUY | Unknown | 0.05 KM |
| Centurion Square, Skeldergate, York, YO1 | £ 205,000 | BUY | 7 / 10 | 0.05 KM |
Nearby Properties
| Address | Price | Distance |
|---|---|---|
| 120 Centurion Square | £ 235,000 | 0.03 KM |
| 103 Centurion Square | £ 270,000 | 0.03 KM |
| 19 Bishophill Senior | £ 735,000 | 0.05 KM |
| 31 Bishophill Senior | £ 285,000 | 0.05 KM |
| 11 Bishops Court | £ 292,500 | 0.05 KM |