Copenhagen Road, Gillingham, Kent, ME7
By Robinson Michael & Jackson
£ 175,000
Reviews
2 out of 5 stars
Robinson Michael & Jackson says ..
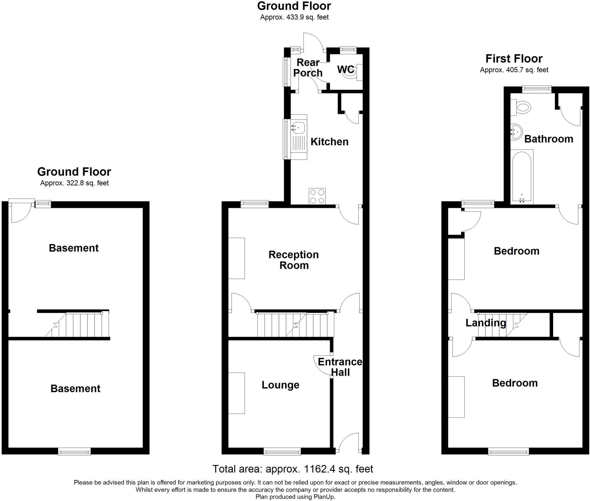
Robinson Michael & Jackson are delighted to present this sizeable 2-bedroom property on Copenhagen Road, Gillingham, offering 1,162.4 sq ft of space and an exceptional opportunity for anyone looking for a FULL renovation project. The home benefits from a double-chambered cellar, pa...
Property Oracle says ..
This is a two-bedroom terraced house in Gillingham, Kent. The property is in need of extensive renovation, but it has a good-sized garden and is located close to local amenities, including a primary school and train station. The listing price of £175,000 is below the average for the area, reflecting the condition of the property.
Therefore, we give this property 5 / 10. *Disclaimer: This is our option and does constitute a recommendation or financial advice. Do your own research. *
- Price
- 8
- Condition
- 2
- Location
- 6
- Land
- 6
- Bedrooms
- 2
- Bathrooms
- 1
The heatmap indicates the level of crime in the area. The color of the heatmap indicates the crime severity and recency.
Metrics Year-on-Year
- Average area value
- 253,389.00 £Increased by 1.64 %
- Average area rental value
- 981.00 £/moDecreased by 6.12 %
- Est rental Yield
- 4.65 %Decreased by 7.55 %
- Crime Rate
- 5.00 %Unchanged by 0.00 %
Agent Activity
Robinson Michael & Jackson created the listing.
Nearby Schools
| Name | Type | Ofsted | Distance |
|---|---|---|---|
| Napier Community Primary And Nursery Academy | Academy Sponsor Led | Good | 0.48 KM |
| Oasis Academy Skinner Street | Academy Sponsor Led | Good | 0.64 KM |
| Byron Primary School | Academy Sponsor Led | Requires improvement | 0.66 KM |
| Hospital And Medical Tuition Service | Miscellaneous | 0.82 KM | |
| Brompton Academy | Academy Sponsor Led | Good | 0.89 KM |
Images
Nearby Streets
| Name | Average Price | Average Sqft | Distance |
|---|---|---|---|
| Balmoral Gardens | £ 0 | 0 | 0.00 KM |
| Sappers Walk | £ 0 | 0 | 0.00 KM |
| Balmoral Road | £ 0 | 0 | 0.00 KM |
| Kimberley Road | £ 0 | 0 | 0.00 KM |
| Pretoria Road | £ 230,000 | 0 | 0.00 KM |
Nearby Transport
| Name | NLC | TLC | Distance |
|---|---|---|---|
| Gillingham (Kent) | 5169 | GLM | 0.45 KM |
| Chatham | 5199 | CTM | 2.96 KM |
| Rochester | 5203 | RTR | 4.15 KM |
| Strood (Kent) | 5191 | SOO | 5.47 KM |
| Rainham (Kent) | 5177 | RAI | 7.28 KM |
Nearby Listings
| Address | Price | Type | Score | Distance |
|---|---|---|---|---|
| Copenhagen Road, Gillingham, Kent, ME7 | £ 175,000 | BUY | 5 / 10 | 0.00 KM |
| Copenhagen Road, Gillingham, Kent, ME7 | £ 230,000 | BUY | 6 / 10 | 0.05 KM |
| Gillingham Road, Gillingham, Kent | £ 300,000 | BUY | 5 / 10 | 0.09 KM |
| Gillingham Road, Gillingham, Kent, ME7 | £ 260,000 | BUY | 5 / 10 | 0.10 KM |
| 55 Gillingham Road, Gillingham, Kent ME7 4RZ | £ 190,000 | BUY | 5 / 10 | 0.10 KM |
Nearby Properties
| Address | Price | Distance |
|---|---|---|
| 93 Copenhagen Road | £ 140,000 | 0.04 KM |
| 79 Copenhagen Road | £ 120,000 | 0.04 KM |
| 95 Copenhagen Road | £ 108,000 | 0.04 KM |
| 86 Copenhagen Road | £ 250,000 | 0.04 KM |
| 94 Copenhagen Road | £ 300,000 | 0.04 KM |