Bradleys says ..
Discover this generously proportioned first-floor apartment, occupying the entire level of a charming building in a sought-after, tucked-away position just moments from the town centre. Combining modern comforts with classic features, this property offers the perfect blend of style and convenience.
Property Oracle says ..
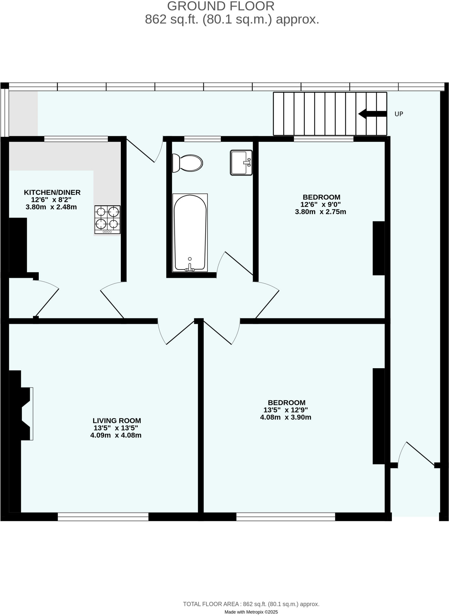
The property is located in Newtown, Sidmouth, Devon. It is a two bedroom terraced house with one bathroom. The property benefits from a small balcony and appears to be in good condition, although some minor renovations may be needed. The location is good, with several schools within a reasonable distance including Sidmouth Church of England Primary School (Good Ofsted rating) and Sidmouth College (Good Ofsted rating). The property is listed at £185,000. While there is no information on the property’s square footage, comparable properties in the area range from £155,000 to £265,000. Given the condition, location, and lack of garden, the price seems reasonable.
Therefore, we give this property 6 / 10. *Disclaimer: This is our option and does constitute a recommendation or financial advice. Do your own research. *
- Price
- 7
- Condition
- 7
- Location
- 8
- Land
- 3
- Bedrooms
- 2
- Bathrooms
- 1
- Lot (est)
- 862.00
The heatmap indicates the level of crime in the area. The color of the heatmap indicates the crime severity and recency.
Metrics Year-on-Year
- Average area value
- 369,988.00 £Decreased by 30.48 %
- Average area rental value
- 1,400.00 £/moIncreased by 12.27 %
- Est rental Yield
- 4.54 %Increased by 61.57 %
- Crime Rate
- 18.00 %Unchanged by 0.00 %
Agent Activity
Bradleys created the listing.
Nearby Schools
| Name | Type | Ofsted | Distance |
|---|---|---|---|
| Sidmouth Church Of England (Va) Primary School | Academy Converter | Good | 1.45 KM |
| St John'S School | Other Independent School | 1.45 KM | |
| Sidmouth College | Community School | Good | 1.75 KM |
| Sidmouth Children'S Centre | Children's Centre | 2.00 KM | |
| Sidbury Church Of England Primary School | Academy Converter | Good | 4.54 KM |
Images
Nearby Streets
| Name | Average Price | Average Sqft | Distance |
|---|---|---|---|
| Milford Road | £ 575,000 | 0 | 0.00 KM |
| Milford Road | £ 950,000 | 0 | 0.00 KM |
| Riverside Road | £ 305,000 | 0 | 0.00 KM |
| The Grove | £ 430,000 | 0 | 0.00 KM |
| Amyatt's Terrace | £ 0 | 0 | 0.00 KM |
Nearby Listings
| Address | Price | Type | Score | Distance |
|---|---|---|---|---|
| Newtown, Sidmouth, Devon | £ 325,000 | BUY | Unknown | 0.00 KM |
| Newtown, Sidmouth, Devon | £ 185,000 | BUY | 6 / 10 | 0.00 KM |
| Newtown, Sidmouth, Devon, EX10 | £ 265,000 | BUY | 5 / 10 | 0.02 KM |
| Newtown, Sidmouth, Devon, EX10 | £ 260,000 | BUY | 6 / 10 | 0.03 KM |
| Salcombe Road, Sidmouth, Devon | £ 100,000 | BUY | 5 / 10 | 0.03 KM |
Nearby Properties
| Address | Price | Distance |
|---|---|---|
| 14 Newtown | £ 190,000 | 0.03 KM |
| 10 Newtown | £ 247,500 | 0.03 KM |
| 16 Newtown | £ 226,000 | 0.03 KM |
| 60 Newtown | £ 200,000 | 0.05 KM |
| 58 Newtown | £ 330,000 | 0.05 KM |