Aberlash, Ammanford
WE

Aberlash, Ammanford

By West Wales Properties

£ 625,000

Reviews

3 out of 5 stars

West Wales Properties says ..

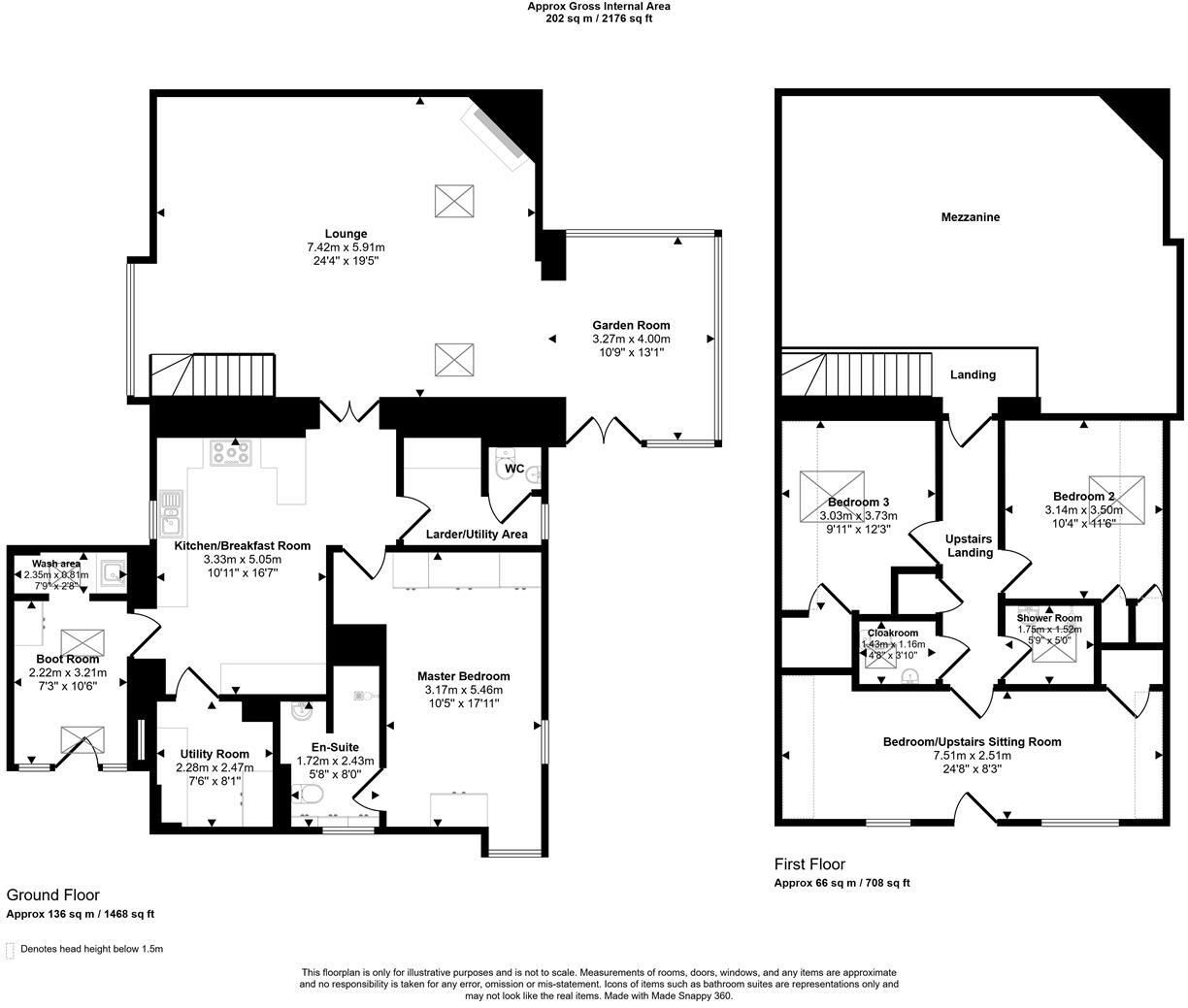
Eco-Friendly Barn Conversion with River Frontage and Approximately One Acre of Grounds Located down a private drive and set within approximately one acre of grounds, this four-bedroom detached barn conversion has been designed to support an outdoor-oriented lifestyle, incorporating eco-c...

Property Oracle says ..

This is a four-bedroom barn conversion located in Llandybie, Ammanford. The property is in good condition and has been recently renovated. It has a large garden with a number of features, including a patio, a shed, a greenhouse, and a pergola. The property is located close to schools and transportation, making it ideal for families and commuters. The property is listed for £625,000, which is above the average price for the area, but the size, condition, and features of the property may justify the higher price. The property retains some of its original period features, such as exposed beams and stone walls, but has been modernised to a high standard.

Therefore, we give this property 7 / 10. *Disclaimer: This is our option and does constitute a recommendation or financial advice. Do your own research. *

Price
6
Condition
8
Location
7
Land
9
Bedrooms
4
Bathrooms
3
Sqft (est)
1,652.05

The heatmap indicates the level of crime in the area. The color of the heatmap indicates the crime severity and recency.

Metrics Year-on-Year

Average area value
310,998.00 £
Decreased by 1.08 %
from 314,389.00 £
Est sale value
551,784.70 £
Increased by 16.78 %
from 472,486.30 £
Average area rental value
1,363.00 £/mo
Increased by 13.58 %
from 1,200.00 £/mo
Est letting value
1,652.05 £/mo
Unchanged by 0.00 %
from 1,652.05 £/mo
Est rental Yield
5.26 %
Increased by 14.85 %
from 4.58 %
Crime Rate
0.00 %
from 0.00 %

Agent Activity

  • West Wales Properties created the listing.

Nearby Schools

NameTypeOfstedDistance
Ysgol Gynradd ParcyrhunWelsh Establishment1.76 KM
Ysgol Dyffryn AmanWelsh Establishment1.84 KM
Ysgol Gymraeg RhydamanWelsh Establishment1.96 KM
Ysgol Feithrin RhydamanWelsh Establishment1.96 KM
Ysgol Gynradd BlaenauWelsh Establishment2.43 KM

Images

WhatsApp Image 2025-09-29 at 11.28.10 (3).jpg WhatsApp Image 2025-09-29 at 11.28.10 (6).jpg WhatsApp Image 2025-09-29 at 11.28.09 (3).jpg WhatsApp Image 2025-09-29 at 11.28.10 (9).jpg WhatsApp Image 2025-09-29 at 11.28.11 (2).jpg WhatsApp Image 2025-09-29 at 11.28.10 (5).jpg WhatsApp Image 2025-09-29 at 11.28.10 (1).jpg IMG_0310.jpg WhatsApp Image 2025-09-29 at 11.28.10 (4).jpg Harris, Aberlash, basin shower view.JPG IMG_4670.jpg WhatsApp Image 2025-09-29 at 11.28.07 (2).jpg WhatsApp Image 2025-09-29 at 11.28.08.jpg WhatsApp Image 2025-09-29 at 11.28.07.jpg WhatsApp Image 2025-09-29 at 11.28.09.jpg WhatsApp Image 2025-09-29 at 11.28.10 (8).jpg WhatsApp Image 2025-09-29 at 11.28.11.jpg WhatsApp Image 2025-09-29 at 11.28.11 (1).jpg WhatsApp Image 2025-09-29 at 11.28.10.jpg WhatsApp Image 2025-09-29 at 11.28.05 (1).jpg WhatsApp Image 2025-09-29 at 11.28.09 (2).jpg WhatsApp Image 2025-09-29 at 11.28.05 (2).jpg IMG_2071.jpg IMG_1770.jpg IMG_1767.jpg IMG_1766.jpg IMG_1214.jpg IMG_0784.jpg IMG_0749.jpg IMG_0489.jpg IMG_0188.jpg WhatsApp Image 2025-09-29 at 11.28.05.jpg WhatsApp Image 2025-09-29 at 11.28.06.jpg WhatsApp Image 2025-09-29 at 11.28.09 (1).jpg WhatsApp Image 2025-09-29 at 11.28.09 (4).jpg WhatsApp Image 2025-09-29 at 11.28.10 (7).jpg IMG_9351.jpg IMG_8380.jpg IMG_2634.jpg IMG_2443.jpg IMG_2199.jpg IMG_1768.jpg

Nearby Streets

NameAverage PriceAverage SqftDistance
Ffrwd-y-Felin £ 000.00 KM
Clos-yr-Afon £ 000.00 KM
Harold Street £ 142,47500.00 KM
Talbot Road £ 227,47500.00 KM
River Way £ 000.00 KM

Nearby Transport

NameNLCTLCDistance
Ammanford4236AMF0.87 KM
Llandybie4247LLI2.08 KM
Pantyffynnon4250PTF2.65 KM
Ffairfach4066FFA7.82 KM
Llandeilo4248LLL9.33 KM

Nearby Listings

AddressPriceTypeScoreDistance
Aberlash, Ammanford £ 625,000BUY7 / 100.00 KM
Aberlash Road, Ammanford, Carmarthenshire, SA18 £ 400,000BUY7 / 100.19 KM
Aberlash Road, Ammanford £ 385,000BUY7 / 100.32 KM
Aberlash Road, Ammanford £ 259,950BUY7 / 100.42 KM
Waunfarlais Road, Llandybie, Ammanford £ 485,000BUYUnknown0.56 KM

Nearby Properties

AddressPriceDistance
6 Ffrwd Y Felin £ 317,5000.08 KM
3 Ffrwd Y Felin £ 280,0000.09 KM
41 Aberlash Road £ 245,0000.19 KM
3 Aberlash Road £ 141,0000.21 KM
5 Aberlash Road £ 85,0000.21 KM