North Hill Road, Cirencester, Gloucestershire
By CBSlade
£ 435,000
Reviews
3 out of 5 stars
CBSlade says ..
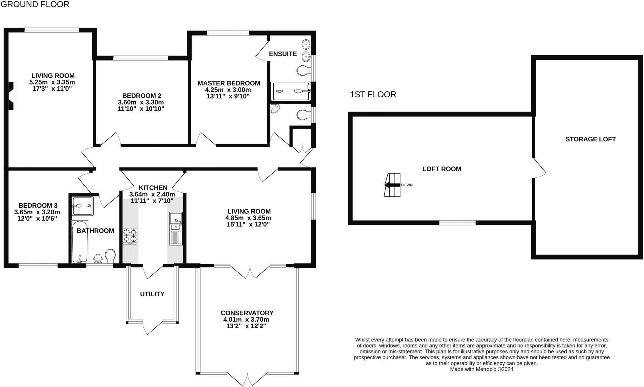
Substantially extended bungalow situated in a quiet spot towards the end of this no through road. It is currently arranged with three bedrooms, but could quite easily be four and also offers an additional loft room which has plenty of further potential if required. It sits on a desirable plot wit...
Property Oracle says ..
This three-bedroom, two-bathroom bungalow situated on North Hill Road in Cirencester, Gloucestershire, presents a compelling proposition for potential buyers. The property benefits from a sizeable garden, providing ample outdoor space. The interior photos reveal a home that is habitable but would benefit from modernisation to improve its overall appeal. The kitchen and bathrooms appear functional but dated. The flooring and decor throughout are consistent with a property of its age and would likely benefit from updating to match contemporary tastes. The inclusion of a conservatory adds an extra living space, ideal for relaxation or entertaining. The location is a considerable selling point, offering proximity to local schools, and relatively close access to Kemble Railway Station, suggesting ease of commuting. However, the information about additional amenities such as shopping facilities within walking distance is limited. Overall, the property is a solid, well-situated home that could prove to be a sound investment with some improvements.
Therefore, we give this property 6 / 10. *Disclaimer: This is our option and does constitute a recommendation or financial advice. Do your own research. *
- Price
- 7
- Condition
- 6
- Location
- 7
- Land
- 7
- Bedrooms
- 3
- Bathrooms
- 2
- Sqft (est)
- 1,752.04
The heatmap indicates the level of crime in the area. The color of the heatmap indicates the crime severity and recency.
Metrics Year-on-Year
- Average area value
- 460,000.00 £Decreased by 2.99 %
- Est sale value
- 369,680.44 £Decreased by 55.11 %
- Average area rental value
- 1,350.00 £/moDecreased by 16.51 %
- Est letting value
- 0.00 £/moDecreased by 100.00 %
- Est rental Yield
- 3.52 %Decreased by 13.94 %
- Crime Rate
- 5.00 %Unchanged by 0.00 %
Agent Activity
CBSlade created the listing.
Nearby Schools
| Name | Type | Ofsted | Distance |
|---|---|---|---|
| Siddington Church Of England Primary School | Academy Converter | 0.76 KM | |
| Cirencester Primary School | Community School | Good | 0.95 KM |
| Springboard Children'S Centre (Cirencester) | Children's Centre | 0.96 KM | |
| Paternoster School | Academy Special Sponsor Led | 1.27 KM | |
| Watermoor Church Of England Primary School | Voluntary Controlled School | Good | 1.43 KM |
Images
Nearby Streets
| Name | Average Price | Average Sqft | Distance |
|---|---|---|---|
| Elliott Road | £ 254,975 | 0 | 0.00 KM |
| Nursery Close | £ 230,000 | 0 | 0.00 KM |
| Southmead | £ 450,000 | 0 | 0.00 KM |
| Cricklade Road | £ 0 | 0 | 0.00 KM |
| Bridge Road | £ 135,000 | 0 | 0.00 KM |
Nearby Transport
| Name | NLC | TLC | Distance |
|---|---|---|---|
| Kemble | 3325 | KEM | 7.94 KM |
Nearby Listings
| Address | Price | Type | Score | Distance |
|---|---|---|---|---|
| North Hill Road, Cirencester, Gloucestershire | £ 435,000 | BUY | 6 / 10 | 0.00 KM |
| North Hill Road, Cirencester, Gloucestershire, GL7 | £ 375,000 | BUY | 6 / 10 | 0.03 KM |
| North Hill Road, Cirencester, Gloucestershire, GL7 | £ 350,000 | BUY | 8 / 10 | 0.08 KM |
| Cirencester | £ 545,000 | BUY | 6 / 10 | 0.10 KM |
| Siddington Road, Cirencester, Gloucestershire, GL7 1PF | £ 320,000 | BUY | Unknown | 0.14 KM |
Nearby Properties
| Address | Price | Distance |
|---|---|---|
| 26 North Hill Road | £ 255,000 | 0.06 KM |
| 12 North Hill Road | £ 267,500 | 0.06 KM |
| 45 North Hill Road | £ 175,000 | 0.06 KM |
| 19 North Hill Road | £ 250,000 | 0.06 KM |
| 25 North Hill Road | £ 216,000 | 0.06 KM |