All Saints Road, Creeting St. Mary, IP6
By Exquisite Home
£ 195,000
Reviews
2 out of 5 stars
Exquisite Home says ..
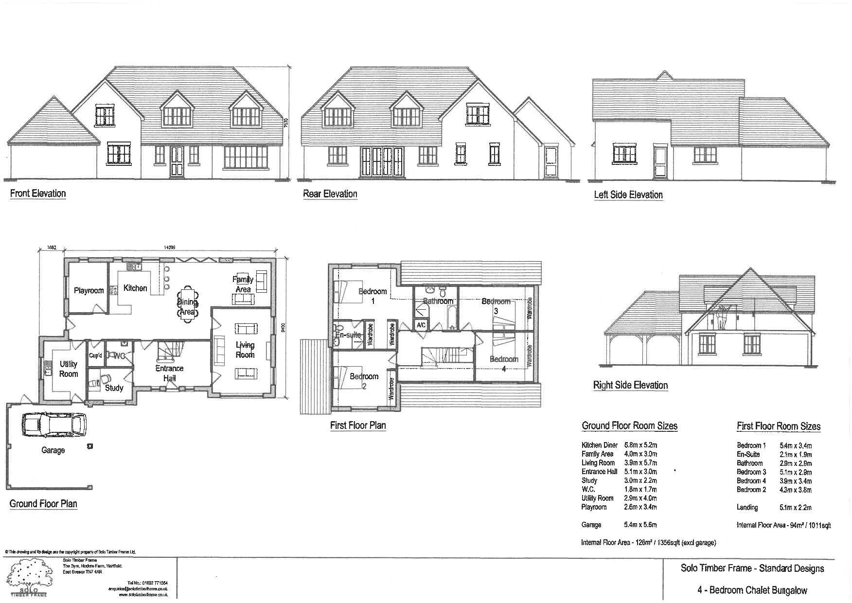
An exciting opportunity to acquire a building plot with full planning permission for the erection of a four bedroom detached property, located on the outskirts of this much sought after Suffolk village.
Property Oracle says ..
This is a plot of land in Creeting St. Mary with planning permission for a substantial detached house. The location offers a balance of rural living with reasonable access to schools and transport. The property is currently undeveloped, requiring complete construction. The asking price of £195,000 seems reasonable given the size of the plot and the approved plans, making it an attractive opportunity for a self-build project.
Therefore, we give this property 5 / 10. *Disclaimer: This is our option and does constitute a recommendation or financial advice. Do your own research. *
- Price
- 8
- Condition
- 1
- Location
- 5
- Land
- 7
- Bedrooms
- 0
- Bathrooms
- 0
- Sqft (est)
- 2,492.92
The heatmap indicates the level of crime in the area. The color of the heatmap indicates the crime severity and recency.
Metrics Year-on-Year
- Average area value
- 392,083.00 £Increased by 15.46 %
- Est sale value
- 882,493.68 £Increased by 43.32 %
- Average area rental value
- 1,056.00 £/moDecreased by 19.94 %
- Est letting value
- 0.00 £/mo
- Est rental Yield
- 3.23 %Decreased by 30.69 %
- Crime Rate
- 0.00 %
Agent Activity
Exquisite Home created the listing.
Nearby Schools
| Name | Type | Ofsted | Distance |
|---|---|---|---|
| Creeting St Mary Church Of England Voluntary Aided Primary School | Voluntary Aided School | Good | 2.44 KM |
| Stonham Aspal Church Of England Voluntary Aided Primary School | Voluntary Aided School | Good | 4.42 KM |
| Robins Children'S Centre | Children's Centre | 5.06 KM | |
| Bosmere Community Primary School | Academy Converter | 5.06 KM | |
| Freeman Community Primary School | Academy Converter | 6.45 KM |
Images
Nearby Streets
| Name | Average Price | Average Sqft | Distance |
|---|---|---|---|
| Dunche's Lane | £ 500,000 | 0 | 0.00 KM |
| The Lord's Highway | £ 0 | 0 | 0.00 KM |
| A140 | £ 0 | 0 | 0.00 KM |
Nearby Transport
| Name | NLC | TLC | Distance |
|---|---|---|---|
| Needham Market | 7354 | NMT | 4.20 KM |
| Stowmarket | 7355 | SMK | 9.43 KM |
Nearby Listings
| Address | Price | Type | Score | Distance |
|---|---|---|---|---|
| All Saints Road, Creeting St. Mary, IP6 | £ 195,000 | BUY | 5 / 10 | 0.00 KM |
| All Saints Road, Creeting St Mary, IP6 | £ 825,000 | BUY | 7 / 10 | 0.17 KM |
| Comice House, All Saints Road, IP6 8PJ | £ 950,000 | BUY | 6 / 10 | 0.32 KM |
| Creeting St. Mary, Ipswich, Suffolk | £ 210,000 | BUY | 6 / 10 | 0.32 KM |
| Creeting St. Mary, Ipswich | £ 750,000 | BUY | 6 / 10 | 0.75 KM |
Nearby Properties
| Address | Price | Distance |
|---|---|---|
| Lodge Cottage | £ 300,000 | 0.60 KM |
| Redlands | £ 650,000 | 0.83 KM |
| Thatched Cottage | £ 235,000 | 0.86 KM |
| Oak Cottage | £ 296,000 | 0.86 KM |
| 1 Creeting Bottoms | £ 207,500 | 0.90 KM |