Butts Hill, Totley, S17
SP

Butts Hill, Totley, S17

By Spencer The Estate Agent

£ 645,000

Reviews

3 out of 5 stars

Spencer The Estate Agent says ..

Beautifully positioned on Butts Hill, Totley, this delightful, period stone-built semi-detached cottage offers a perfect blend of characterful charm and modern living, surrounded by stunning views. With four spacious bedrooms and reception spaces that offer versatility, this property is ideal for...

Property Oracle says ..

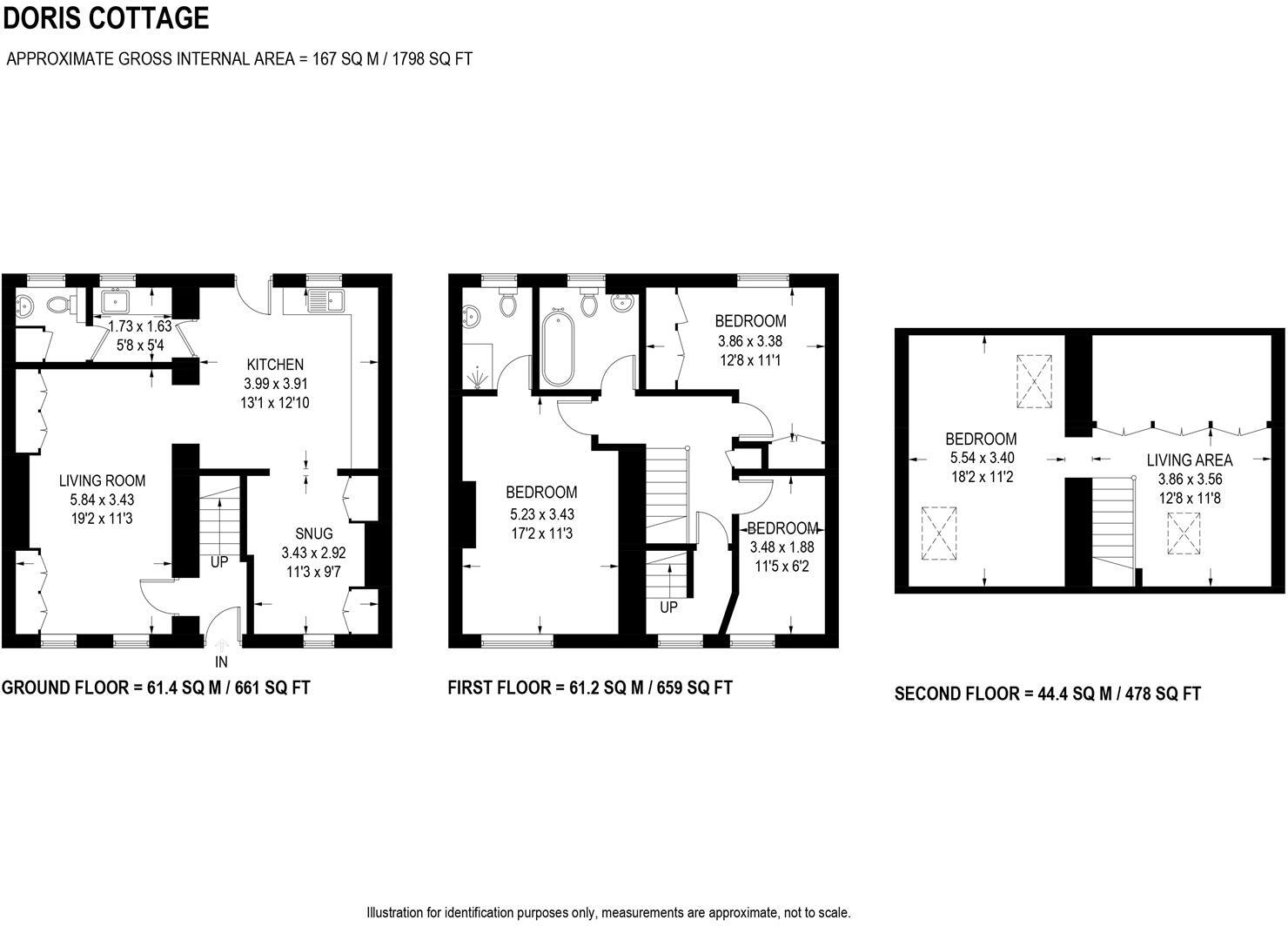
Doris Cottage presents a charming semi-detached home in the sought-after area of Totley, Sheffield. The property boasts four bedrooms and two bathrooms, making it suitable for families. Its location offers convenient access to highly-rated schools and transport links. The interior showcases a blend of traditional and modern features, with a well-equipped kitchen and tastefully decorated living spaces. The garden provides a pleasant outdoor area. While the price is above the local average, the property’s condition, location, and features justify the premium.

Therefore, we give this property 7 / 10. *Disclaimer: This is our option and does constitute a recommendation or financial advice. Do your own research. *

Price
7
Condition
8
Location
8
Land
7
Bedrooms
4
Bathrooms
2

The heatmap indicates the level of crime in the area. The color of the heatmap indicates the crime severity and recency.

Metrics Year-on-Year

Average area value
585,000.00 £
Increased by 7.33 %
from 545,052.00 £
Average area rental value
1,332.00 £/mo
Decreased by 8.26 %
from 1,452.00 £/mo
Est rental Yield
2.73 %
Decreased by 14.69 %
from 3.20 %
Crime Rate
20.00 %
Unchanged by 0.00 %
from 20.00 %

Agent Activity

  • Spencer The Estate Agent created the listing.

Nearby Schools

NameTypeOfstedDistance
Totley All Saints Church Of England Voluntary Aided Primary SchoolAcademy ConverterOutstanding0.15 KM
Totley Primary SchoolAcademy ConverterOutstanding0.30 KM
Totley Primary School And Children'S CentreChildren's Centre Linked Site0.63 KM
King Ecgbert SchoolAcademy ConverterOutstanding0.80 KM
Dore Primary SchoolCommunity SchoolOutstanding1.09 KM

Images

Old external.jpg DSC_6027.JPG DSC_5883.JPG DSC_5807.JPG DSC_6089.JPG IMG_6364_5_6_tonemapped copy.jpg DSC_5776.JPG DSC_5783.JPG DSC_5813.JPG DSC_5903.JPG DSC_5849.JPG DSC_5867.JPG DSC_5879.JPG DSC_5831.JPG DSC_6119.JPG DSC_5839.JPG DSC_5929.JPG DSC_5764.JPG DSC_5723.JPG DSC_5731.JPG DSC_5747.JPG DSC_5741.JPG DSC_5758.JPG DSC_5689.JPG DSC_5701.JPG DSC_5695.JPG DSC_5706.JPG DSC_5770.JPG DSC_5683.JPG DSC_5638.JPG DSC_5659.JPG DSC_5642.JPG DSC_5675.JPG DSC_5667.JPG oXbJrVG-X7ZtBmzasATmbtI_UJY.jpg DSC_6039.JPG 98-i7p00cYHySy5LK43qLH0E0Ec.jpg DSC_6054.JPG IMG_6367_8_9_tonemapped copy.jpg DSC_6064.JPG DSC_6124.JPG DSC_6111.JPG DSC_6079.JPG DSC_6102.JPG DSC_5921.jpg Doris View.jpg

Nearby Streets

NameAverage PriceAverage SqftDistance
Grove Avenue £ 670,00000.00 KM
Totley Grange Close £ 400,00000.00 KM
The Green £ 795,00000.00 KM
Lane Head Road £ 000.00 KM
Middlefield Close £ 625,00000.00 KM

Nearby Transport

NameNLCTLCDistance
Dore And Totley6690DOR3.19 KM
Dronfield6616DRO8.17 KM
Grindleford2825GRN9.46 KM

Nearby Listings

AddressPriceTypeScoreDistance
Butts Hill, Sheffield £ 1,335,000BUY8 / 100.00 KM
Butts Hill, Totley, S17 £ 645,000BUY7 / 100.00 KM
Shrewsbury Terrace, Butts Hill, Sheffield £ 315,000BUY7 / 100.04 KM
Hillfoot Road, Totley, Sheffield £ 750,000BUY8 / 100.10 KM
Grove Avenue, Totley, Sheffield £ 625,000BUY7 / 100.12 KM

Nearby Properties

AddressPriceDistance
Doris Cottage £ 170,0000.06 KM
Vera Cottage £ 169,9500.06 KM
4 Grove Avenue £ 187,5000.12 KM
2 Grove Avenue £ 295,0000.12 KM
1 Grove Avenue £ 580,0000.12 KM