Sears Property says ..
Situated with the modern style development of Jennett`s Park in Bracknell is this well presented two bedroom, two bathroom first floor apartment.
Property Oracle says ..
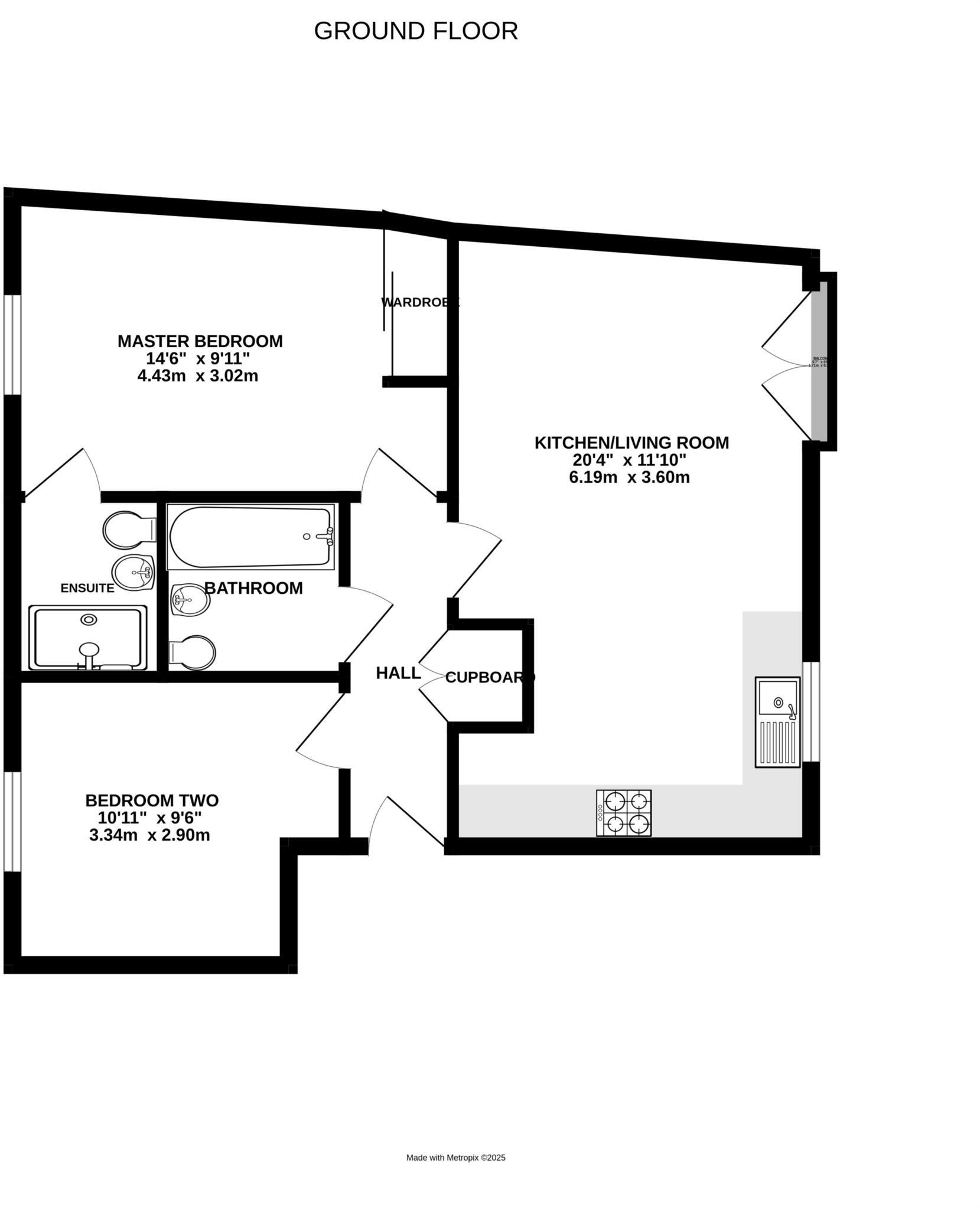
This property is a two bedroom, two bathroom flat located in Fulmar Crescent, Bracknell. The property is modern and well presented, with a contemporary kitchen and bathroom. The location is convenient, with nearby schools and transportation links. However, the property has a small plot size and the list price is slightly above the average price per square foot for the area. This may affect its overall value.
Therefore, we give this property 5 / 10. *Disclaimer: This is our option and does constitute a recommendation or financial advice. Do your own research. *
- Price
- 6
- Condition
- 9
- Location
- 7
- Land
- 1
- Bedrooms
- 2
- Bathrooms
- 2
- Sqft (est)
- 555.31
The heatmap indicates the level of crime in the area. The color of the heatmap indicates the crime severity and recency.
Metrics Year-on-Year
- Average area value
- 423,333.00 £Decreased by 1.00 %
- Est sale value
- 219,347.45 £Increased by 7.63 %
- Average area rental value
- 1,767.00 £/moDecreased by 10.30 %
- Est letting value
- 555.31 £/moUnchanged by 0.00 %
- Est rental Yield
- 5.01 %Decreased by 9.40 %
- Crime Rate
- 7.00 %Unchanged by 0.00 %
Agent Activity
Sears Property created the listing.
Nearby Schools
| Name | Type | Ofsted | Distance |
|---|---|---|---|
| Jennett'S Park Cofe Primary School | Academy Sponsor Led | 0.04 KM | |
| Easthampstead Park Community School | Community School | Good | 0.31 KM |
| Great Hollands Primary School | Academy Sponsor Led | 1.21 KM | |
| Wooden Hill Primary And Nursery School | Community School | Good | 1.34 KM |
| Oaks And Hollies Children'S Centre | Children's Centre | 1.68 KM |
Images
Nearby Streets
| Name | Average Price | Average Sqft | Distance |
|---|---|---|---|
| Redwing Place | £ 0 | 0 | 0.00 KM |
| Harrier Way cycle path (north) | £ 430,000 | 0 | 0.00 KM |
| Ringmead | £ 0 | 0 | 0.00 KM |
| Beaufort Park | £ 0 | 0 | 0.00 KM |
| Great Hollands Road | £ 340,000 | 0 | 0.00 KM |
Nearby Transport
| Name | NLC | TLC | Distance |
|---|---|---|---|
| Bracknell | 5693 | BCE | 3.72 KM |
| Crowthorne | 5628 | CRN | 5.54 KM |
| Sandhurst (Berks) | 5646 | SND | 6.49 KM |
| Martins Heron | 5692 | MAO | 6.53 KM |
| Wokingham | 5696 | WKM | 6.66 KM |
Nearby Listings
| Address | Price | Type | Score | Distance |
|---|---|---|---|---|
| Fulmar Crescent, Bracknell | £ 265,000 | BUY | 5 / 10 | 0.00 KM |
| Fulmar Crescent, Jennett`s Park | £ 210,000 | BUY | 6 / 10 | 0.00 KM |
| Fulmar Crescent, Jennett`s Park | £ 215,000 | BUY | 5 / 10 | 0.00 KM |
| Fulmar Crescent, Bracknell, Berkshire | £ 270,000 | BUY | 5 / 10 | 0.00 KM |
| Fulmar Crescent, Bracknell, Berkshire | £ 265,000 | BUY | 6 / 10 | 0.00 KM |
Nearby Properties
| Address | Price | Distance |
|---|---|---|
| 35 Fulmar Crescent | £ 263,000 | 0.01 KM |
| 28 Fulmar Crescent | £ 200,000 | 0.01 KM |
| 61 Fulmar Crescent | £ 393,000 | 0.01 KM |
| 2 Fulmar Crescent | £ 390,000 | 0.01 KM |
| 32 Fulmar Crescent | £ 240,000 | 0.01 KM |