Kings Crescent East, Chester, CH3 5TH
By Gallagher Roberts
£ 350,000
Reviews
3 out of 5 stars
Gallagher Roberts says ..
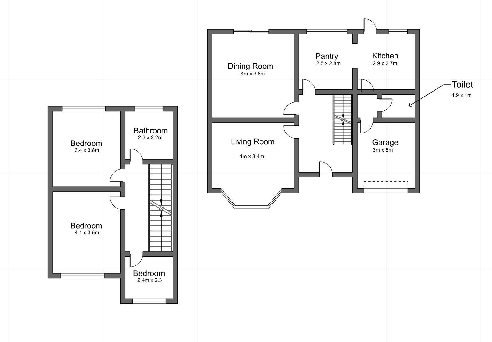
Location Location Location!! Gallagher Roberts are delighted to offer to the market this delightful three bedroom, three reception room spacious semi detached residence to the market. Located within the desirable location of Great Boughton which offers a plethora of amenities.
Property Oracle says ..
The property is a 3-bedroom house situated in Great Boughton, Chester. Great Boughton benefits from its proximity to Chester city centre, offering convenient access to amenities, shops, and transport links. The presence of several well-regarded schools within a short distance, such as Cherry Grove Primary School and The Bishops’ Blue Coat Church of England High School, is a significant positive for families. The nearby Chester train station provides access to wider regional rail networks. From the photographs, the property appears to be well-maintained and presented to a good standard. The interior shows evidence of recent modernisation, particularly in the kitchen and bathroom. While the provided images do not reveal any major structural issues, a full survey would be recommended to confirm the overall condition. The property includes a rear garden, although its size is not specified. The presence of a garden is a positive aspect, particularly for families or those seeking outdoor space. Considering the list price of £350,000, nearby comparable properties on Kings Crescent East range from £225,000 to £376,000. While the average price per square foot data for nearby streets is unavailable, the list price appears to be within the range of similar properties in the area, considering the property’s apparent condition and location. However, a more detailed comparison with properties of similar size and specification within Great Boughton would provide a more definitive assessment of value.
Therefore, we give this property 7 / 10. *Disclaimer: This is our option and does constitute a recommendation or financial advice. Do your own research. *
- Price
- 7
- Condition
- 8
- Location
- 9
- Land
- 6
- Bedrooms
- 3
- Bathrooms
- 1
- Sqft (est)
- 1,058.31
The heatmap indicates the level of crime in the area. The color of the heatmap indicates the crime severity and recency.
Metrics Year-on-Year
- Average area value
- 304,375.00 £Increased by 1.56 %
- Est sale value
- 472,006.26 £Increased by 34.74 %
- Average area rental value
- 874.00 £/moDecreased by 24.13 %
- Est letting value
- 1,058.31 £/moUnchanged by 0.00 %
- Est rental Yield
- 3.45 %Decreased by 25.16 %
- Crime Rate
- 15.00 %Unchanged by 0.00 %
Agent Activity
Gallagher Roberts created the listing.
Nearby Schools
| Name | Type | Ofsted | Distance |
|---|---|---|---|
| Cherry Grove Primary School | Community School | Good | 0.31 KM |
| Boughton Heath Academy | Academy Converter | 0.37 KM | |
| The Bishops' Blue Coat Church Of England High School | Academy Converter | Good | 0.51 KM |
| Dee Banks School | Community Special School | Good | 0.90 KM |
| Hoole Church Of England Primary School | Voluntary Controlled School | Good | 1.01 KM |
Images
Nearby Streets
| Name | Average Price | Average Sqft | Distance |
|---|---|---|---|
| Heather Court | £ 0 | 0 | 0.00 KM |
| Sandringham Avenue | £ 350,000 | 0 | 0.00 KM |
| Tollemarche Terrace | £ 285,000 | 0 | 0.00 KM |
| Bramble Close | £ 0 | 0 | 0.00 KM |
| Hilary Close | £ 415,000 | 0 | 0.00 KM |
Nearby Transport
| Name | NLC | TLC | Distance |
|---|---|---|---|
| Chester | 2412 | CTR | 1.86 KM |
| Bache | 2187 | BAC | 3.72 KM |
Nearby Listings
| Address | Price | Type | Score | Distance |
|---|---|---|---|---|
| Kings Crescent East, Great Boughton, Chester | £ 425,000 | BUY | 7 / 10 | 0.01 KM |
| Kings Crescent East, Great Boughton, Chester | £ 410,000 | BUY | Unknown | 0.01 KM |
| Kings Crescent East, Chester | £ 495,000 | BUY | 7 / 10 | 0.01 KM |
| Kings Crescent West, Chester | £ 330,000 | BUY | 8 / 10 | 0.05 KM |
| Kings Crescent West, Chester, CH3 | £ 325,000 | BUY | 7 / 10 | 0.05 KM |
Nearby Properties
| Address | Price | Distance |
|---|---|---|
| 4 Kings Crescent East | £ 225,000 | 0.01 KM |
| 1 Kings Crescent East | £ 330,000 | 0.01 KM |
| 5 Kings Crescent East | £ 253,800 | 0.01 KM |
| 12 Kings Crescent East | £ 475,000 | 0.01 KM |
| 13 Kings Crescent East | £ 245,000 | 0.01 KM |