Breakey & Co says ..
Located on Ormskirk Road in the popular area of Pemberton, this charming two-bedroom mid-terrace house offers a comfortable and practical living space, ideal for first-time buyers or those looking to downsize.
Property Oracle says ..
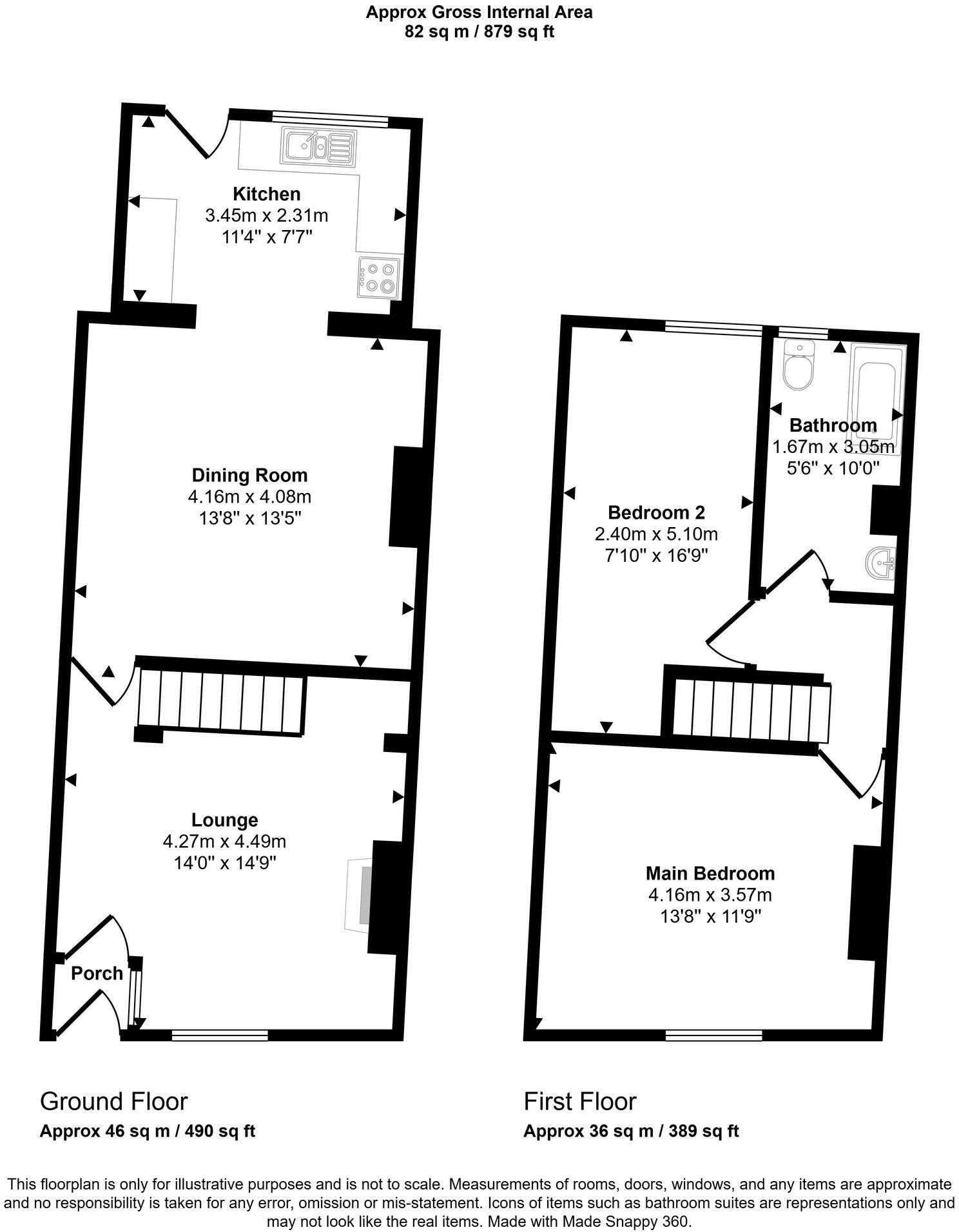
The property is a 2-bedroom terraced house located on Ormskirk Road in Wigan, Greater Manchester. The list price is £110,000. The property has 882.64 sqft of internal space and a small yard. The property appears to be in reasonably good condition, though some minor cosmetic updates might enhance its appeal. The kitchen and bathroom seem functional but could benefit from some modernisation. The flooring and walls appear to be in acceptable condition. One bedroom is largely unfurnished and contains numerous boxes, suggesting it may be currently used for storage. The property benefits from a small yard, providing some outdoor space. However, it is primarily paved and lacks extensive landscaping. Considering the average house price in the area is £144,205 and the average price per sqft is £161, the list price of £110,000 for this 882.64 sqft property appears to be below average. However, several comparable properties in the area are listed for similar or slightly higher prices. The lower price may be due to the relatively small plot size and the need for some modernisation. The lack of information on the property’s condition in the provided data makes it difficult to determine the precise value. The location is in Wigan, which offers access to various amenities and transportation links. The proximity to several train stations and schools is a positive aspect. However, without further details on the property’s specific location within Wigan and its proximity to local shops, parks and other amenities, a more precise assessment of the location score is not possible.
Therefore, we give this property 5 / 10. *Disclaimer: This is our option and does constitute a recommendation or financial advice. Do your own research. *
- Price
- 6
- Condition
- 7
- Location
- 0
- Land
- 3
- Bedrooms
- 2
- Bathrooms
- 1
- Sqft (est)
- 882.64
The heatmap indicates the level of crime in the area. The color of the heatmap indicates the crime severity and recency.
Metrics Year-on-Year
- Average area value
- 161,000.00 £Increased by 21.76 %
- Est sale value
- 179,175.92 £Increased by 46.04 %
- Average area rental value
- 820.00 £/moIncreased by 8.04 %
- Est letting value
- 882.64 £/mo
- Est rental Yield
- 6.11 %Decreased by 11.32 %
- Crime Rate
- 93.00 %Unchanged by 0.00 %
Agent Activity
Breakey & Co marked this listing as sold.
Breakey & Co created the listing.
Nearby Schools
| Name | Type | Ofsted | Distance |
|---|---|---|---|
| St Mark'S Cofe Primary School | Academy Sponsor Led | Requires improvement | 0.23 KM |
| Expanse Learning Wigan School | Other Independent Special School | Requires improvement | 0.59 KM |
| St James' Church Of England Primary School | Academy Converter | 0.74 KM | |
| St Jude'S Catholic Primary School Wigan | Voluntary Aided School | Requires improvement | 0.76 KM |
| Wigan Worsley Mesnes Community Primary School | Community School | Good | 1.35 KM |
Images
Nearby Streets
| Name | Average Price | Average Sqft | Distance |
|---|---|---|---|
| Alexandra Street | £ 0 | 0 | 0.00 KM |
| Mere Street | £ 125,000 | 0 | 0.00 KM |
| Wood Street | £ 0 | 0 | 0.00 KM |
| Harrison Street | £ 0 | 0 | 0.00 KM |
| St Mark's Avenue | £ 200,000 | 0 | 0.00 KM |
Nearby Transport
| Name | NLC | TLC | Distance |
|---|---|---|---|
| Pemberton | 2403 | PEM | 1.99 KM |
| Wigan North Western | 2363 | WGN | 2.40 KM |
| Wigan Wallgate | 2406 | WGW | 2.44 KM |
| Bryn | 2222 | BYN | 4.38 KM |
| Ince (Manchester) | 2236 | INC | 4.74 KM |
Nearby Listings
| Address | Price | Type | Score | Distance |
|---|---|---|---|---|
| Ormskirk Road, Wigan, WN5 | £ 110,000 | BUY | 5 / 10 | 0.00 KM |
| Ormskirk Road, Wigan, Greater Manchester, WN5 | £ 120,000 | BUY | 6 / 10 | 0.04 KM |
| Albert Street, Wigan, WN5 | £ 100,000 | BUY | 6 / 10 | 0.08 KM |
| Westminster Street, Newtown, Wigan, WN5 9BH | £ 95,000 | BUY | 6 / 10 | 0.12 KM |
| Alexandra Street, Wigan, WN5 | £ 125,000 | BUY | 6 / 10 | 0.13 KM |
Nearby Properties
| Address | Price | Distance |
|---|---|---|
| 92 Albert Street | £ 105,000 | 0.07 KM |
| 96 Albert Street | £ 80,000 | 0.07 KM |
| 80 Albert Street | £ 110,000 | 0.07 KM |
| 159 Ormskirk Road | £ 133,000 | 0.10 KM |
| 163 Ormskirk Road | £ 79,000 | 0.10 KM |