Alvis Avenue, Herne Bay, CT6 8AR
By David Clarke Estate Agents
£ 475,000
Reviews
3 out of 5 stars
David Clarke Estate Agents says ..
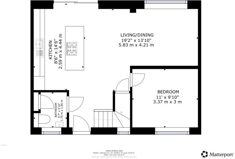
Modern 4-bed chalet bungalow in Studd Hill with open-plan living, ensuite, gardens, parking, and no chain. Close to beach, shops, and transport. Ideal family home or coastal retreat.
Property Oracle says ..
This is a 4-bedroom chalet in West Bay, Herne Bay. The property appears to be in good condition, with a modern interior and a well-maintained garden. The location is reasonably good, with nearby schools and transportation links. However, the price seems a little high compared to the average price in the area.
Therefore, we give this property 6 / 10. *Disclaimer: This is our option and does constitute a recommendation or financial advice. Do your own research. *
- Price
- 6
- Condition
- 8
- Location
- 6
- Land
- 7
- Bedrooms
- 4
- Bathrooms
- 2
The heatmap indicates the level of crime in the area. The color of the heatmap indicates the crime severity and recency.
Metrics Year-on-Year
- Average area value
- 277,995.00 £Increased by 12.95 %
- Average area rental value
- 1,080.00 £/moDecreased by 3.91 %
- Est rental Yield
- 4.66 %Decreased by 14.96 %
- Crime Rate
- 6.00 %Unchanged by 0.00 %
Agent Activity
David Clarke Estate Agents created the listing.
Nearby Schools
| Name | Type | Ofsted | Distance |
|---|---|---|---|
| Briary Children'S Centre | Children's Centre Linked Site | 1.73 KM | |
| Hampton Primary School | Academy Converter | Good | 1.94 KM |
| Briary Primary School | Academy Converter | 1.96 KM | |
| Herne Bay High School | Academy Converter | Good | 2.88 KM |
| Swalecliffe Children'S Centre | Children's Centre Linked Site | 3.16 KM |
Images
Nearby Streets
| Name | Average Price | Average Sqft | Distance |
|---|---|---|---|
| Seaview Holiday Park | £ 390,000 | 0 | 0.00 KM |
| Sussex Close Path | £ 300,000 | 0 | 0.00 KM |
| Dragonfly Drive | £ 0 | 0 | 0.00 KM |
| Hawthornden Street | £ 0 | 0 | 0.00 KM |
| Beaumont Street | £ 382,500 | 0 | 0.00 KM |
Nearby Transport
| Name | NLC | TLC | Distance |
|---|---|---|---|
| Chestfield And Swalecliffe | 5200 | CSW | 2.36 KM |
| Herne Bay | 5174 | HNB | 3.40 KM |
| Whitstable | 5196 | WHI | 6.04 KM |
| Sturry | 5029 | STU | 8.32 KM |
| Canterbury West | 5007 | CBW | 9.31 KM |
Nearby Listings
| Address | Price | Type | Score | Distance |
|---|---|---|---|---|
| Alvis Avenue, Herne Bay, CT6 8AR | £ 475,000 | BUY | 6 / 10 | 0.00 KM |
| Riley Avenue, Herne Bay, CT6 8AS | £ 550,000 | BUY | 7 / 10 | 0.02 KM |
| Riley Avenue, Herne Bay, Kent | £ 280,000 | BUY | 5 / 10 | 0.10 KM |
| Riley Avenue, Herne Bay | £ 625,000 | BUY | 7 / 10 | 0.10 KM |
| Riley Avenue, Herne Bay, CT6 8AT | £ 550,000 | BUY | 6 / 10 | 0.14 KM |
Nearby Properties
| Address | Price | Distance |
|---|---|---|
| 6 Riley Avenue | £ 165,000 | 0.07 KM |
| 1 Riley Avenue | £ 258,000 | 0.07 KM |
| 3 Riley Avenue | £ 485,000 | 0.07 KM |
| 13 Riley Avenue | £ 319,995 | 0.10 KM |
| 9 Riley Avenue | £ 155,000 | 0.10 KM |