Pampisford Road, Purley
LO

Pampisford Road, Purley

By Loft Estate Agents

£ 875,000

Reviews

3 out of 5 stars

Loft Estate Agents says ..

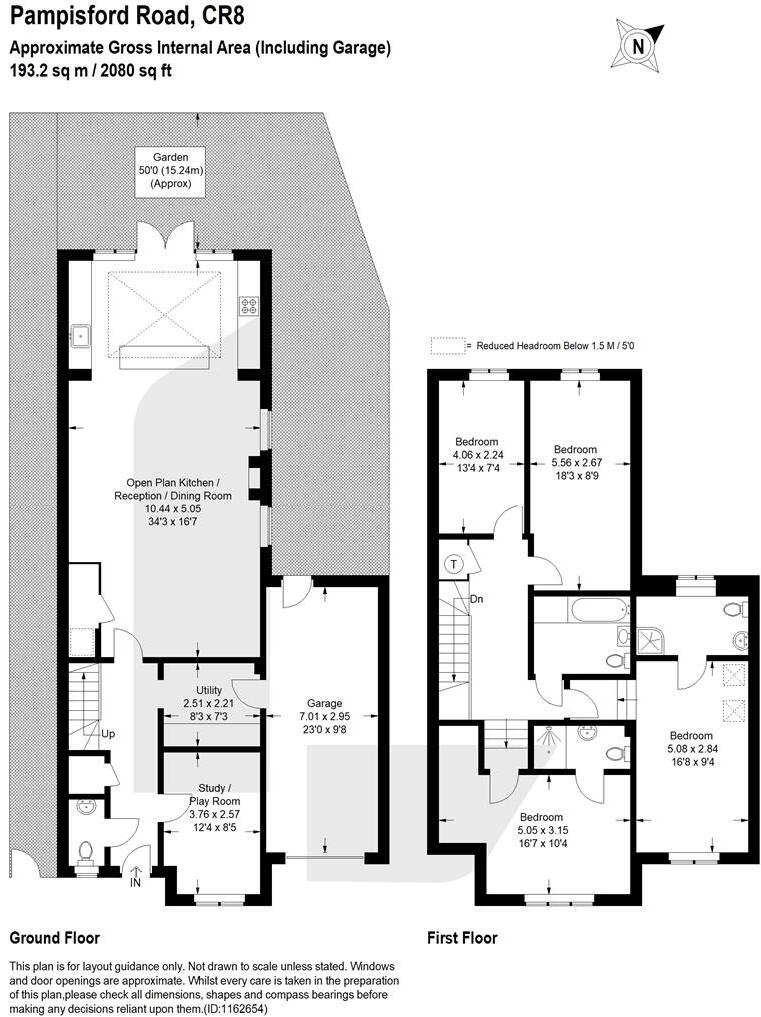
An absolutely superb detached home that has was constructed to the highest standard only four years ago! Spanning 2080 sq. ft., the accommodation on offer has everything for the whole family and more. Situated on Pampisford Road, a stones throw from Purley town centre with the train station and s...

Property Oracle says ..

This four-bedroom, three-bathroom detached house located on Pampisford Road in Purley, Croydon, presents a compelling proposition for families seeking a modern and conveniently situated home. The property is beautifully presented, boasting a contemporary design and high-quality finishes throughout. Images reveal a spacious open-plan living area, a stylish kitchen with modern appliances and ample storage, and four well-appointed bedrooms. The interior looks well-maintained and recently updated. The presence of a small garden and patio provide additional outdoor space. The location is particularly strong, with Purley train station within easy reach and multiple well-regarded primary schools located nearby. Whilst a definitive square footage price comparison with local properties is difficult due to inconsistent information provided, the list price appears competitive within the broader market context. This property’s combination of desirable features, excellent condition, and convenient location makes it an attractive option for buyers. However, potential buyers should conduct their own independent research and appraisal and ensure they satisfy themselves with any aspects before proceeding with a purchase.

Therefore, we give this property 7 / 10. *Disclaimer: This is our option and does constitute a recommendation or financial advice. Do your own research. *

Price
7
Condition
9
Location
8
Land
4
Bedrooms
4
Bathrooms
3
Sqft (est)
2,079.59

The heatmap indicates the level of crime in the area. The color of the heatmap indicates the crime severity and recency.

Metrics Year-on-Year

Average area value
350,411.00 £
Decreased by 30.71 %
from 505,689.00 £
Est sale value
684,185.11 £
Decreased by 20.91 %
from 865,109.44 £
Average area rental value
1,907.00 £/mo
Increased by 7.13 %
from 1,780.00 £/mo
Est letting value
2,079.59 £/mo
Unchanged by 0.00 %
from 2,079.59 £/mo
Est rental Yield
6.53 %
Increased by 54.74 %
from 4.22 %
Crime Rate
5.00 %
Unchanged by 0.00 %
from 5.00 %

Agent Activity

  • Loft Estate Agents created the listing.

Nearby Schools

NameTypeOfstedDistance
Christ Church Cofe Primary School (Purley)Voluntary Aided SchoolGood0.22 KM
Purley Nursery SchoolLocal Authority Nursery SchoolOutstanding0.42 KM
Cumnor House SchoolOther Independent School0.57 KM
Margaret Roper Catholic Primary SchoolVoluntary Aided SchoolGood0.96 KM
Thomas More Catholic SchoolVoluntary Aided SchoolGood0.96 KM

Images

Front Open Plan Kitchen/Reception/Dining Room Open Plan Kitchen/Reception/Dining Room Open Plan Kitchen/Reception/Dining Room Open Plan Kitchen/Reception/Dining Room Open Plan Kitchen/Reception/Dining Room Open Plan Kitchen/Reception/Dining Room Open Plan Kitchen/Reception/Dining Room Feature Study/Play Room Utility Bedroom 1 Bedroom 1 Bedroom 2 Bedroom 3 Bedroom 4 Family Bathroom En-suite Landing Rear Garden Rear Garden Outside Front Front With View

Nearby Streets

NameAverage PriceAverage SqftDistance
Christchurch Road £ 315,00000.00 KM
Warren Road £ 235,00000.00 KM
Overhill Road £ 000.00 KM
Purley Road £ 350,00000.00 KM
Joshua Close £ 000.00 KM

Nearby Transport

NameNLCTLCDistance
Purley5379PUR0.82 KM
Purley Oaks5430PUO1.43 KM
Riddlesdown5432RDD1.90 KM
Reedham (London)5431RHM1.99 KM
Sanderstead5433SNR2.02 KM

Nearby Listings

AddressPriceTypeScoreDistance
Pampisford Road, Purley £ 875,000BUY7 / 100.00 KM
Pampisford Road, Purley £ 800,000BUY7 / 100.04 KM
Wyvern Road, West Purley £ 735,000BUY6 / 100.05 KM
Pampisford Road, Purley £ 895,000BUY7 / 100.05 KM
Pampisford Road, Purley £ 865,000BUYUnknown0.07 KM

Nearby Properties

AddressPriceDistance
100 Pampisford Road £ 448,0000.09 KM
106 Pampisford Road £ 885,0000.09 KM
114 Pampisford Road £ 345,0000.09 KM
112 Pampisford Road £ 385,0000.09 KM
110 Pampisford Road £ 500,0000.09 KM