Wordsworth Street, Penrith
LA

Wordsworth Street, Penrith

By Lakes Estates

£ 795,000

Reviews

3 out of 5 stars

Lakes Estates says ..

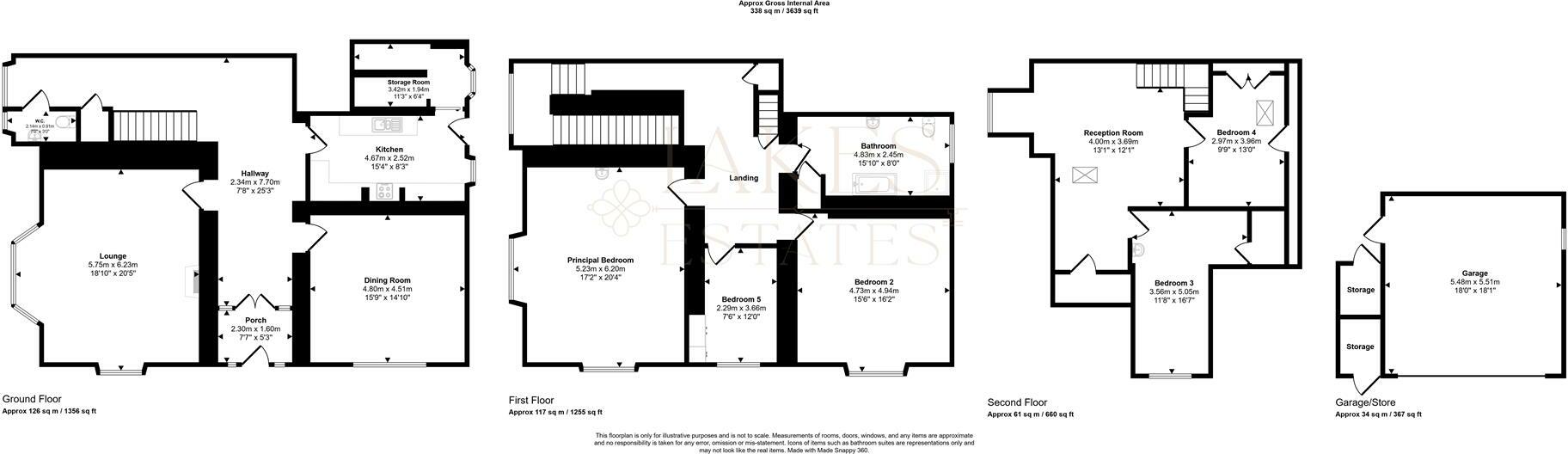
Constructed in 1880, this stunning Victorian residence boasts three grand storeys and offers sweeping, unobstructed views of the North Lakeland fells. Originally a single grand estate, the property was divided in the 1930s and is now set within spacious grounds, proudly positioned halfway up Word...

Property Oracle says ..

This is a substantial Victorian property located in Penrith, Cumbria, offering an impressive 3638.20 sqft of living space across multiple levels. The house showcases traditional architectural details, including bay windows, high ceilings, and ornate features, creating a sense of grandeur. The interior pictures depict various rooms including multiple generously sized bedrooms, expansive living areas, a well-equipped kitchen, and a bathroom. While showcasing a traditional aesthetic throughout, it could benefit from some modern updates to suit contemporary living preferences. The property benefits from the inclusion of extensive, attractive, well-maintained gardens. There is an additional detached garage. The location in Penrith North adds to its appeal, offering a balance between suburban tranquility and convenient access to amenities and transportation, including excellent primary schools within close proximity. While the price seems reasonable given the property’s size and location compared to other Wordsworth Street properties, a definitive assessment of its value relative to the market would depend on a more thorough analysis of the price per square foot data for comparable properties. Overall, this is a sizeable, attractive, and well-located property that would be appropriate for a family looking for a spacious home in a desirable location in the Lake District.

Therefore, we give this property 7 / 10. *Disclaimer: This is our option and does constitute a recommendation or financial advice. Do your own research. *

Price
7
Condition
7
Location
8
Land
7
Bedrooms
5
Bathrooms
1
Sqft (est)
3,638.20

The heatmap indicates the level of crime in the area. The color of the heatmap indicates the crime severity and recency.

Metrics Year-on-Year

Average area value
722,194.00 £
Increased by 1.02 %
from 714,889.00 £
Est sale value
1,702,677.60 £
Increased by 2.63 %
from 1,659,019.20 £
Average area rental value
2,810.00 £/mo
Decreased by 41.46 %
from 4,800.00 £/mo
Est letting value
3,638.20 £/mo
Decreased by 66.67 %
from 10,914.60 £/mo
Est rental Yield
4.67 %
Decreased by 42.06 %
from 8.06 %
Crime Rate
2.00 %
Unchanged by 0.00 %
from 2.00 %

Agent Activity

  • Lakes Estates created the listing.

Nearby Schools

NameTypeOfstedDistance
St Catherine'S Catholic Primary SchoolVoluntary Aided SchoolGood0.71 KM
Brunswick SchoolCommunity SchoolGood0.78 KM
Beaconside Cofe Primary SchoolVoluntary Aided SchoolGood0.86 KM
North Eden Surestart Children'S CentreChildren's Centre0.96 KM
Ullswater Community CollegeFoundation SchoolRequires improvement1.25 KM

Images

Dining Room Dining Room Lounge Lounge Melville House Dining Room Lounge Entrance Hall Kitchen Kitchen Kitchen Entrance Hall Principal Bedroom Principal Bedroom Bathroom Bedroom Two Bedroom Three Secondary Lounge Bedroom Four Bedroom Five Bedroom Five Secondary Lounge Secondary Lounge Garden May Garden mid May .jpeg Fell views Fell views Melville House Melville House Entrance Hall Landing Garden Garden Garden Garden Garden early May Garden Garden Garage and drive Patio Patio

Nearby Streets

NameAverage PriceAverage SqftDistance
Croft Terrace £ 580,00000.00 KM
Sandgate £ 000.00 KM
Queen Street £ 189,00000.00 KM
Devonshire Arcade £ 110,00000.00 KM
Pele Court £ 000.00 KM

Nearby Transport

NameNLCTLCDistance
Penrith (North Lakes)2102PNR1.34 KM
Langwathby2058LGW9.97 KM

Nearby Listings

AddressPriceTypeScoreDistance
Wordsworth Street, Penrith £ 795,000BUY7 / 100.00 KM
Wordsworth Street, Penrith, CA11 £ 280,000BUY6 / 100.10 KM
Croft Terrace, Penrith, CA11 £ 365,000BUY7 / 100.13 KM
Wordsworth Street, Penrith, CA11 £ 525,000BUY7 / 100.13 KM
Forest House, Wordsworth Street, Penrith £ 205,000BUY7 / 100.13 KM

Nearby Properties

AddressPriceDistance
Brackenber £ 270,0000.08 KM
Roseacre £ 370,0000.08 KM
Cedar Gable £ 345,0000.08 KM
Wordsworth Cottage £ 370,0000.08 KM
Hilltop £ 235,0000.08 KM