LA
11 Gemini Grove, ML1
By Lanarkshire Law Estate Agents Limited
£ 109,995
Reviews
3 out of 5 stars
Lanarkshire Law Estate Agents Limited says ..
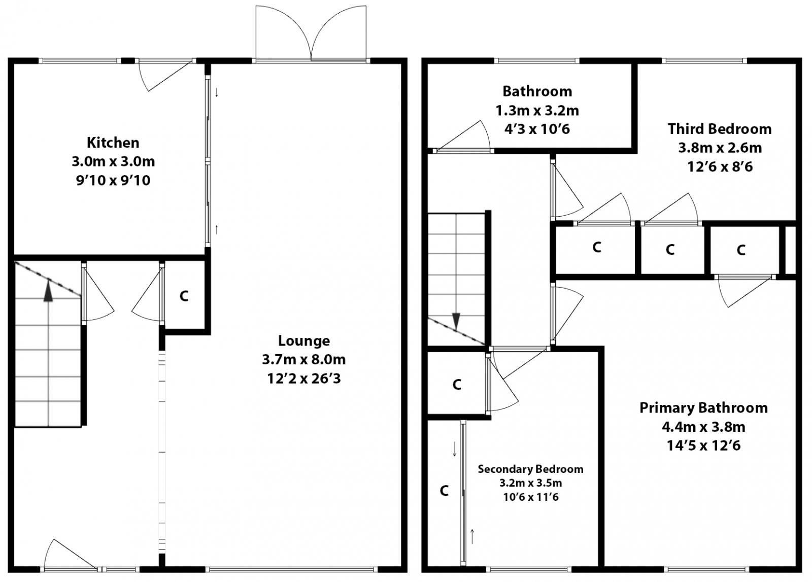
Lanarkshire Law Estate Agents are delighted to present to the market this attractive three-bedroom terraced home, set within the popular residential pocket of Gemini Grove, Holytown.
Property Oracle says ..
Therefore, we give this property 7 / 10. *Disclaimer: This is our option and does constitute a recommendation or financial advice. Do your own research. *
- Price
- 9
- Condition
- 7
- Location
- 6
- Land
- 6
- Bedrooms
- 3
- Bathrooms
- 0
- Sqft (est)
- 867.14
The heatmap indicates the level of crime in the area. The color of the heatmap indicates the crime severity and recency.
Metrics Year-on-Year
- Average area value
- 204,776.00 £Decreased by 22.85 %
- Est sale value
- 271,414.82 £Increased by 70.11 %
- Average area rental value
- 638.00 £/moDecreased by 23.32 %
- Est letting value
- 0.00 £/mo
- Est rental Yield
- 3.74 %Decreased by 0.53 %
- Crime Rate
- 0.00 %
from 265,442.00 £
from 159,553.76 £
from 832.00 £/mo
from 0.00 £/mo
from 3.76 %
from 0.00 %
Agent Activity
Lanarkshire Law Estate Agents Limited created the listing.
Images
Nearby Streets
| Name | Average Price | Average Sqft | Distance |
|---|---|---|---|
| Glen Drive | £ 82,500 | 0 | 0.00 KM |
| Deveron Road | £ 150,000 | 0 | 0.00 KM |
| Thornhill Gardens | £ 0 | 0 | 0.00 KM |
| Pine Grove | £ 0 | 0 | 0.00 KM |
| Rowallan Drive | £ 0 | 0 | 0.00 KM |
Nearby Transport
| Name | NLC | TLC | Distance |
|---|---|---|---|
| Holytown | 9738 | HLY | 1.31 KM |
| Carfin | 9877 | CRF | 1.69 KM |
| Motherwell | 9691 | MTH | 4.56 KM |
| Shieldmuir | 9552 | SDM | 4.81 KM |
| Airdrie | 9759 | ADR | 5.28 KM |
Nearby Listings
| Address | Price | Type | Score | Distance |
|---|---|---|---|---|
| 11 Gemini Grove, ML1 | £ 109,995 | BUY | 7 / 10 | 0.00 KM |
| Apollo Path, Motherwell, ML1 | £ 119,995 | BUY | 6 / 10 | 0.17 KM |
| Rowallan Drive, Motherwell | £ 300,000 | BUY | 7 / 10 | 0.28 KM |
| Rowallan Drive, Motherwell | £ 280,000 | BUY | Unknown | 0.29 KM |
| LILAC WAY, HOLYTOWN, MOTHERWELL | £ 69,995 | BUY | 7 / 10 | 0.33 KM |