7E Forrester Park Grove, Corstorphine, Edinburgh, EH12 9AL
Warners Solicitors logo

7E Forrester Park Grove, Corstorphine, Edinburgh, EH12 9AL

By Warners Solicitors

£ 160,000

Reviews

3 out of 5 stars

Warners Solicitors says ..

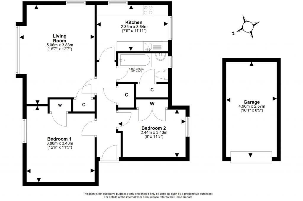
Beautifully presented, two-bedroom top floor flat with garage in the popular residential area of Corstorphine to the west of Edinburgh's city centre. This fully refurbished property will be of immense appeal to first time buyers, down sizers, and investors alike and is offered to the market in tr...

Property Oracle says ..

This is a two-bedroom flat in Corstorphine, Edinburgh. The property is in good condition and has a modern kitchen and bathroom. The property has a shared garden. The property is listed at £160,000, which is below the average price for the area. The property is located close to transportation links and schools.

Therefore, we give this property 7 / 10. *Disclaimer: This is our option and does constitute a recommendation or financial advice. Do your own research. *

Price
8
Condition
7
Location
7
Land
6
Bedrooms
2
Bathrooms
1
Sqft (est)
671.65

The heatmap indicates the level of crime in the area. The color of the heatmap indicates the crime severity and recency.

Metrics Year-on-Year

Average area value
308,599.00 £
Increased by 8.50 %
from 284,421.00 £
Est sale value
249,182.15 £
Increased by 28.37 %
from 194,106.85 £
Average area rental value
1,181.00 £/mo
Decreased by 6.12 %
from 1,258.00 £/mo
Est letting value
671.65 £/mo
Unchanged by 0.00 %
from 671.65 £/mo
Est rental Yield
4.59 %
Decreased by 13.56 %
from 5.31 %
Crime Rate
0.00 %
from 0.00 %

Agent Activity

  • Warners Solicitors created the listing.

Nearby Schools

NameTypeOfstedDistance
Merchiston Castle SchoolOffshore Schools3.93 KM
Cargilfield SchoolOffshore Schools4.57 KM

Images

Property Image 16 Property Image 10 Property Image 11 Property Image 15 Primary Property Image Property Image 2 Property Image 3 Property Image 4 Property Image 5 Property Image 6 Property Image 7 Property Image 8 Property Image 9 Property Image 12 Property Image 13 Property Image 14

Nearby Streets

NameAverage PriceAverage SqftDistance
Broomhouse Drive £ 000.00 KM
Broomhouse Gardens West £ 000.00 KM
Broomhouse Medway £ 000.00 KM
Broomhouse Wynd £ 000.00 KM
Broomhall Bank £ 290,00000.00 KM

Nearby Transport

NameNLCTLCDistance
South Gyle9318SGL1.91 KM
Wester Hailes9231WTA2.02 KM
Kingsknowe9217KGE2.47 KM
Edinburgh Park9395EDP2.82 KM
Edinburgh Gateway6545EGY4.26 KM

Nearby Listings

AddressPriceTypeScoreDistance
9d Forrester Park Grove, Edinburgh, EH12 9AL £ 130,000BUY5 / 100.00 KM
7E Forrester Park Grove, Corstorphine, Edinburgh, EH12 9AL £ 160,000BUY7 / 100.00 KM
Forrester Park Grove, Edinburgh, EH12 £ 180,000BUY5 / 100.01 KM
Forrester Park Grove, Edinburgh, Midlothian, EH12 £ 20,000BUY6 / 100.07 KM
Garage 5, Forrester Park Grove, EH12 9AL £ 20,000BUY4 / 100.15 KM