Stags says ..
Substantial stone farmhouse with fantastic far reaching views. AOC. EPC C
Property Oracle says ..
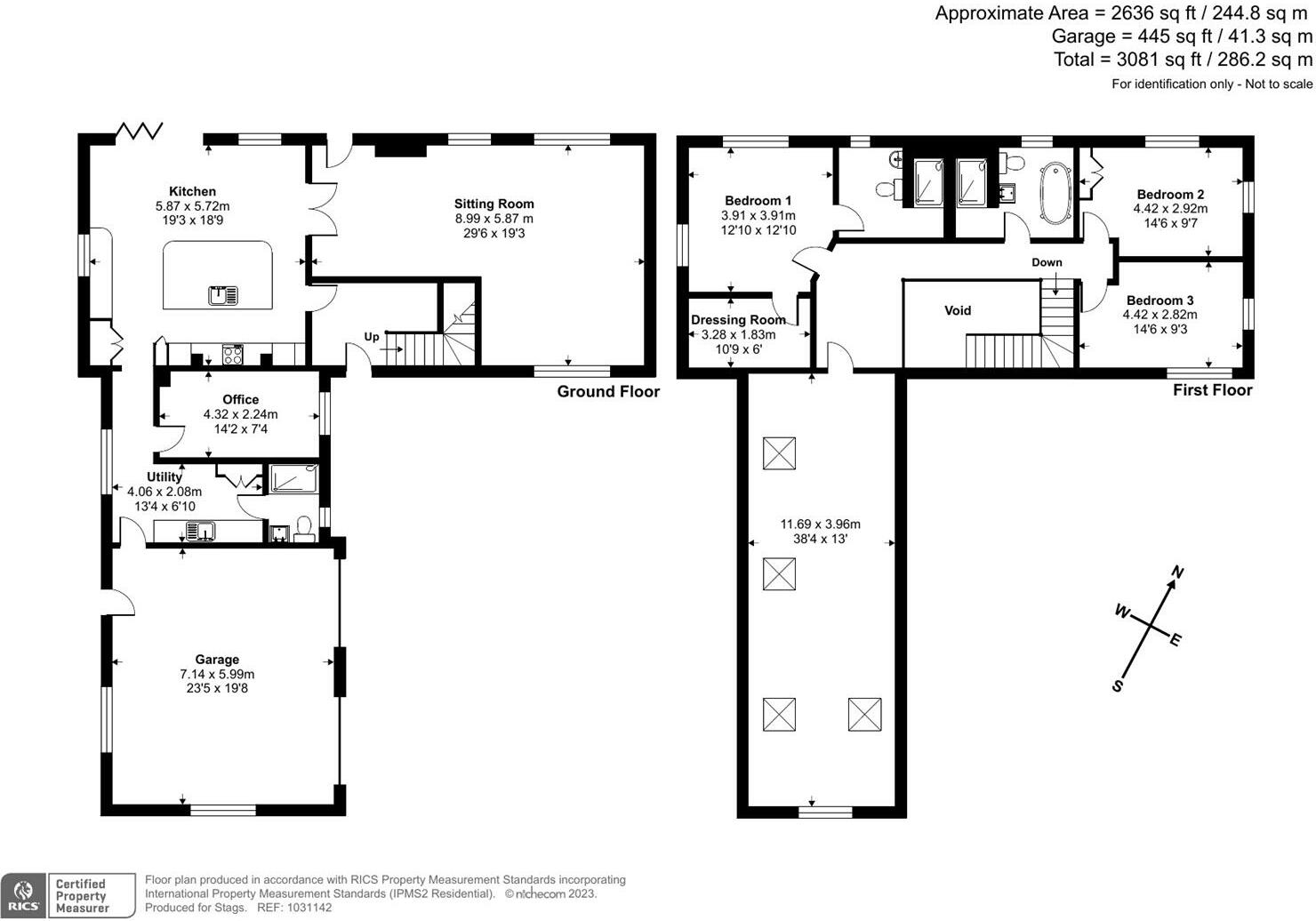
This property is a detached family home located in Plymtree, Cullompton, East Devon. It boasts 3 bedrooms and 2 bathrooms, and is situated on a sizable plot of land, as evidenced by the aerial photographs. The house appears to be in excellent condition, with modern fixtures and finishes throughout. The property benefits from a large garden with various features, including raised garden beds, a greenhouse, and a patio area. The location is rural, providing tranquility and open space, while still being within reasonable distance of local amenities and transportation links. Nearby schools offer good Ofsted ratings. The list price of £850,000 seems reasonable considering the size, condition, and features of the property, as well as the prices of comparable properties in the area. However, additional information on the average price per square foot would be needed to provide a more precise valuation.
Therefore, we give this property 8 / 10. *Disclaimer: This is our option and does constitute a recommendation or financial advice. Do your own research. *
- Price
- 7
- Condition
- 9
- Location
- 8
- Land
- 10
- Bedrooms
- 3
- Bathrooms
- 2
- Sqft (est)
- 2,012.74
The heatmap indicates the level of crime in the area. The color of the heatmap indicates the crime severity and recency.
Metrics Year-on-Year
- Average area value
- 622,500.00 £Decreased by 32.15 %
- Est sale value
- 708,484.48 £Decreased by 16.78 %
- Average area rental value
- 1,150.00 £/moDecreased by 16.79 %
- Est letting value
- 0.00 £/mo
- Est rental Yield
- 2.22 %Increased by 22.65 %
- Crime Rate
- 0.00 %
Agent Activity
Stags marked this listing as sold.
Stags created the listing.
Nearby Schools
| Name | Type | Ofsted | Distance |
|---|---|---|---|
| Plymtree Church Of England Primary School | Voluntary Controlled School | Good | 1.00 KM |
| K-Hq | Other Independent Special School | Good | 2.65 KM |
| Clyst Hydon Primary School | Foundation School | Requires improvement | 4.01 KM |
| Kentisbeare Church Of England Primary School | Voluntary Controlled School | Good | 4.87 KM |
| Payhembury Church Of England Primary School | Voluntary Controlled School | Good | 5.01 KM |
Images
Nearby Streets
| Name | Average Price | Average Sqft | Distance |
|---|---|---|---|
| Fordmoor Cottages | £ 0 | 0 | 0.00 KM |
| The Glebe | £ 1,850,000 | 0 | 0.00 KM |
Nearby Transport
| Name | NLC | TLC | Distance |
|---|---|---|---|
| Whimple | 5759 | WHM | 6.51 KM |
| Feniton | 5808 | FNT | 7.24 KM |
Nearby Listings
| Address | Price | Type | Score | Distance |
|---|---|---|---|---|
| Plymtree, Cullompton | £ 850,000 | BUY | 8 / 10 | 0.00 KM |
| Plymtree, Cullompton, Devon | £ 500,000 | BUY | 8 / 10 | 0.31 KM |
| Normans Green, Plymtree, EX15 | £ 400,000 | BUY | 7 / 10 | 0.44 KM |
| Sandersfield, Plymtree, Cullompton, EX15 | £ 310,000 | BUY | 7 / 10 | 0.44 KM |
| Woodbeer Gardens, Plymtree, EX15 | £ 450,000 | BUY | 7 / 10 | 0.88 KM |
Nearby Properties
| Address | Price | Distance |
|---|---|---|
| 9 Little Normans | £ 230,000 | 0.40 KM |
| 10 Little Normans | £ 225,000 | 0.40 KM |
| 2 Little Normans | £ 180,000 | 0.40 KM |
| 5 Sandersfield | £ 295,000 | 0.42 KM |
| 12 Sandersfield | £ 277,500 | 0.42 KM |