YO
Katherine Close, Churchdown, Gloucester, GL3
By Yopa
£ 250,000
Reviews
3 out of 5 stars
Yopa says ..
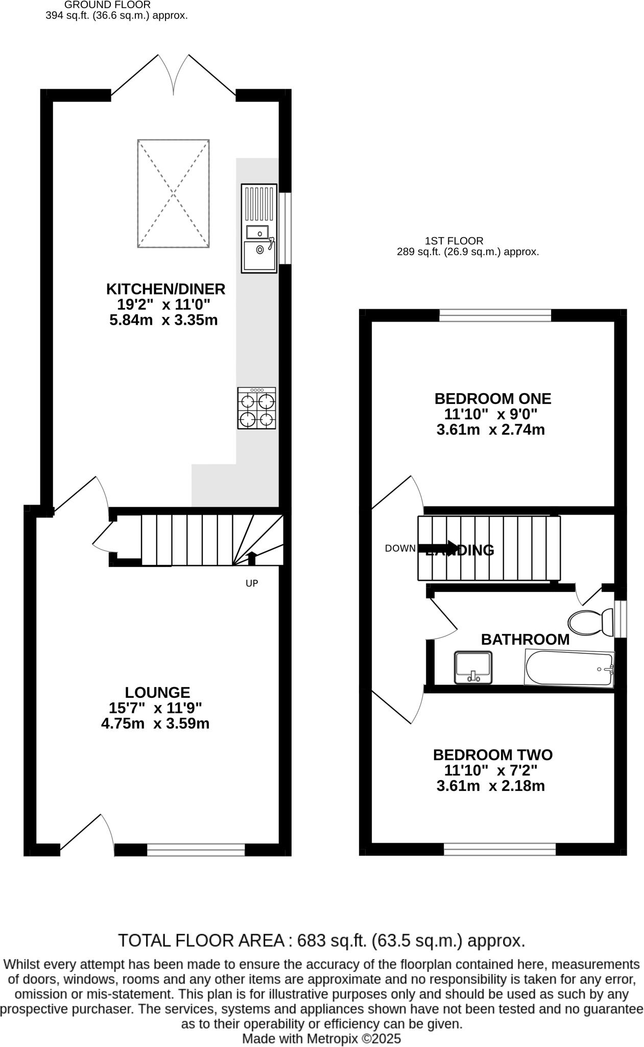
A superb extended and much improved 2 double bedroom end terrace house, perfect for a first time buyer, situated within a quiet cul de sac location on this sought after residential development. **VIEWING HIGHLY RECOMMENDED**
Property Oracle says ..
Therefore, we give this property 7 / 10. *Disclaimer: This is our option and does constitute a recommendation or financial advice. Do your own research. *
- Price
- 6
- Condition
- 9
- Location
- 7
- Land
- 7
- Bedrooms
- 2
- Bathrooms
- 1
- Sqft (est)
- 626.00
The heatmap indicates the level of crime in the area. The color of the heatmap indicates the crime severity and recency.
Metrics Year-on-Year
- Average area value
- 247,857.00 £Increased by 20.94 %
- Est sale value
- 178,410.00 £Increased by 22.84 %
- Average area rental value
- 1,019.00 £/moIncreased by 16.72 %
- Est letting value
- 626.00 £/mo
- Est rental Yield
- 4.93 %Decreased by 3.52 %
- Crime Rate
- 7.00 %Unchanged by 0.00 %
from 204,936.00 £
from 145,232.00 £
from 873.00 £/mo
from 0.00 £/mo
from 5.11 %
from 7.00 %
Agent Activity
Yopa created the listing.
Nearby Schools
| Name | Type | Ofsted | Distance |
|---|---|---|---|
| St Mary'S Catholic Primary School | Academy Converter | 0.93 KM | |
| Jigsaw Children'S Centre | Children's Centre | 1.26 KM | |
| Innsworth Infant School | Community School | Good | 1.37 KM |
| Churchdown Parton Manor Infant School | Community School | Good | 1.70 KM |
| Churchdown Parton Manor Junior School | Community School | Good | 1.70 KM |
Images
Nearby Streets
| Name | Average Price | Average Sqft | Distance |
|---|---|---|---|
| Trafalgar Drive | £ 0 | 0 | 0.00 KM |
| Fairways Drive | £ 725,000 | 0 | 0.00 KM |
| Essex Close | £ 280,000 | 0 | 0.00 KM |
| Compton Close | £ 400,000 | 0 | 0.00 KM |
| Drake Close | £ 315,000 | 0 | 0.00 KM |
Nearby Transport
| Name | NLC | TLC | Distance |
|---|---|---|---|
| Gloucester | 4760 | GCR | 5.98 KM |
Nearby Listings
| Address | Price | Type | Score | Distance |
|---|---|---|---|---|
| Katherine Close, Churchdown, Gloucester, GL3 | £ 250,000 | BUY | 7 / 10 | 0.00 KM |
| Katherine Close, Churchdown, Gloucester | £ 135,000 | BUY | 5 / 10 | 0.06 KM |
| Katherine Close, Churchdown, Gloucester | £ 195,000 | BUY | 5 / 10 | 0.06 KM |
| Katherine Close, Churchdown | £ 265,000 | BUY | 7 / 10 | 0.07 KM |
| Katherine Close, Churchdown | £ 300,000 | BUY | 6 / 10 | 0.08 KM |
Nearby Properties
| Address | Price | Distance |
|---|---|---|
| 1 Katherine Close | £ 200,000 | 0.03 KM |
| 10 Katherine Close | £ 125,000 | 0.03 KM |
| 54 Katherine Close | £ 152,000 | 0.03 KM |
| 55 Katherine Close | £ 239,950 | 0.03 KM |
| 8 Katherine Close | £ 256,100 | 0.03 KM |