Glebe Road, Beith
By Oakhouse Premier Sales & Lets
£ 250,000
Reviews
3 out of 5 stars
Oakhouse Premier Sales & Lets says ..
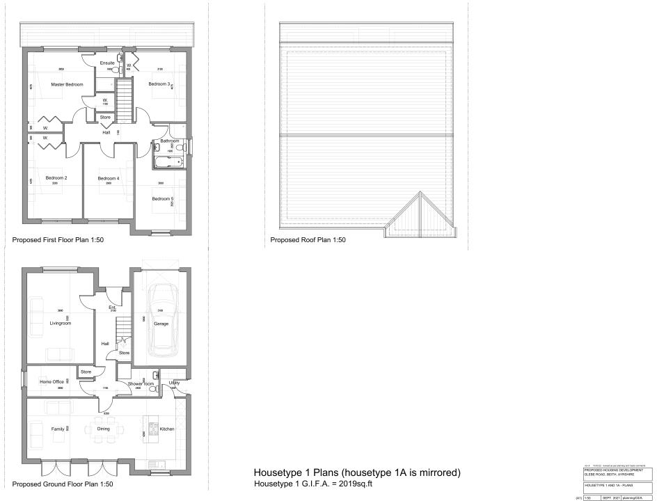
Introducing an exceptional opportunity to invest in a large plot of land situated in the sought-after Glebe Road, Beith KA15. This prime location boasts planning permission for an impressive development comprising of 5x 5 Bedroom Detached Villas and 4x 3 Bedroom Detached Villas.
Property Oracle says ..
This is a plot of land for sale with planning permission for multiple houses. The listing is through Oakhouse Premier Sales & Lets, located on Glebe Road, Beith.
The average price per square foot in this area is £384. The listing price is £250,000.
The location is served by two train stations within 5km, Lochwinnoch and Glengarnock.
Based on the images, the properties will be modern builds.
Therefore, we give this property 7 / 10. *Disclaimer: This is our option and does constitute a recommendation or financial advice. Do your own research. *
- Price
- 8
- Condition
- 10
- Location
- 6
- Land
- 7
- Bedrooms
- 3
- Bathrooms
- 0
- Sqft (est)
- 14,061.00
The heatmap indicates the level of crime in the area. The color of the heatmap indicates the crime severity and recency.
Metrics Year-on-Year
- Average area value
- 327,363.00 £Increased by 26.97 %
- Est sale value
- 5,399,424.00 £Increased by 70.67 %
- Average area rental value
- 1,112.00 £/moIncreased by 23.69 %
- Est letting value
- 14,061.00 £/mo
- Est rental Yield
- 4.08 %Decreased by 2.39 %
- Crime Rate
- 0.00 %
Agent Activity
Oakhouse Premier Sales & Lets created the listing.
Images
Nearby Streets
| Name | Average Price | Average Sqft | Distance |
|---|---|---|---|
| De Morville Place | £ 240,000 | 0 | 0.00 KM |
| Academy Brae | £ 0 | 0 | 0.00 KM |
| Scholars Wynd | £ 95,000 | 0 | 0.00 KM |
| Strand | £ 0 | 0 | 0.00 KM |
| Cross | £ 65,000 | 0 | 0.00 KM |
Nearby Transport
| Name | NLC | TLC | Distance |
|---|---|---|---|
| Lochwinnoch | 9655 | LHW | 4.77 KM |
| Glengarnock | 9503 | GLG | 4.82 KM |
| Dalry | 9483 | DLY | 9.88 KM |
Nearby Listings
| Address | Price | Type | Score | Distance |
|---|---|---|---|---|
| Glebe Road, Beith | £ 250,000 | BUY | 7 / 10 | 0.00 KM |
| 11 Glebe Court, Beith | £ 130,000 | BUY | Unknown | 0.06 KM |
| 7 De Morville Place, Beith | £ 259,995 | BUY | 7 / 10 | 0.15 KM |
| 40A Glebe Road, Beith | £ 240,000 | BUY | Unknown | 0.17 KM |
| 6 De Morville Place, Beith | £ 200,000 | BUY | 7 / 10 | 0.19 KM |