HE
Maes Y Ceffyl, Neath, SA11 5PJ
By Herbert R Thomas
£ 215,000
Herbert R Thomas says ..
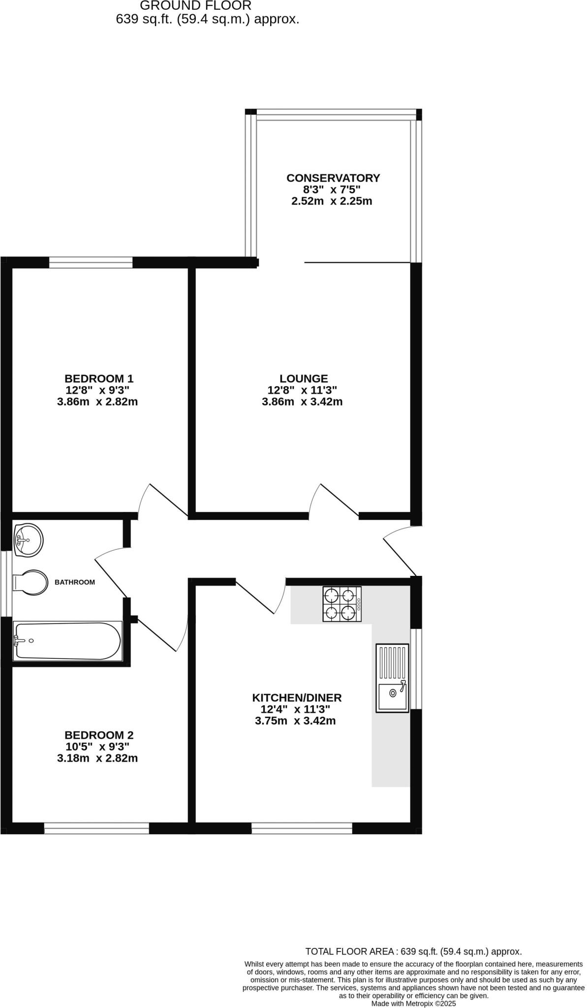
On entering via the UPVC front door, you are welcomed into a carpeted hallway giving access to all rooms. The spacious lounge is set to the rear of the property and features fitted carpets along with UPVC sliding doors leading into a bright and airy conservatory. The conservatory, with its wra...
- Bedrooms
- 2
- Bathrooms
- 1
- Sqft (est)
- 554.87
The heatmap indicates the level of crime in the area. The color of the heatmap indicates the crime severity and recency.
Metrics Year-on-Year
- Average area value
- 406,364.00 £Increased by 51.98 %
- Est sale value
- 182,552.23 £Increased by 29.02 %
- Average area rental value
- 1,294.00 £/moIncreased by 17.32 %
- Est letting value
- 554.87 £/moUnchanged by 0.00 %
- Est rental Yield
- 3.82 %Decreased by 22.83 %
- Crime Rate
- 18.00 %Unchanged by 0.00 %
from 267,381.00 £
from 141,491.85 £
from 1,103.00 £/mo
from 554.87 £/mo
from 4.95 %
from 18.00 %
Agent Activity
Herbert R Thomas created the listing.
Nearby Schools
| Name | Type | Ofsted | Distance |
|---|---|---|---|
| Blaengwrach Primary School | Welsh Establishment | 0.49 KM | |
| Cwmnedd Primary School | Welsh Establishment | 2.83 KM | |
| Ygg Cwm Nedd | Welsh Establishment | 2.91 KM | |
| Maesmarchog Community Primary School | Welsh Establishment | 5.05 KM | |
| Ynysfach Primary School | Welsh Establishment | 6.10 KM |
Images
Nearby Streets
| Name | Average Price | Average Sqft | Distance |
|---|---|---|---|
| Maes-Y-Ceffyl | £ 229,950 | 0 | 0.00 KM |
| Heol-Wenallt | £ 130,000 | 0 | 0.00 KM |
| Heol-Y-Graig | £ 325,000 | 0 | 0.00 KM |
| Church Crescent | £ 0 | 0 | 0.00 KM |
| Ger-Y-Nant | £ 130,000 | 0 | 0.00 KM |
Nearby Listings
| Address | Price | Type | Score | Distance |
|---|---|---|---|---|
| Maes Y Ceffyl, Neath, SA11 5PJ | £ 215,000 | BUY | Unknown | 0.00 KM |
| Maes Y Ceffyl, Cwmgwrach, Neath. SA11 5PJ | £ 229,995 | BUY | 7 / 10 | 0.00 KM |
| Heol Nedd, Cwmgwrach, Neath, Neath Port Talbot. SA11 5PL | £ 160,000 | BUY | 6 / 10 | 0.21 KM |
| Cefn Gelli, Cwmgwrach, SA11 | £ 140,000 | BUY | 7 / 10 | 0.26 KM |
| Heol Wenallt, Cwmgwrach, Neath, West Glamorgan, SA11 5PT | £ 100,000 | BUY | Unknown | 0.28 KM |
Nearby Properties
| Address | Price | Distance |
|---|---|---|
| 4 Cedar Street | £ 114,000 | 0.19 KM |
| 6 Cedar Street | £ 106,000 | 0.19 KM |
| 7 Cedar Street | £ 90,600 | 0.19 KM |
| 34 Cefn Gelli | £ 75,000 | 0.25 KM |
| 16 Cefn Gelli | £ 149,995 | 0.25 KM |