Sandringham Road, LONDON E8
By Felicity J Lord
£ 525,000
Reviews
4 out of 5 stars
Felicity J Lord says ..
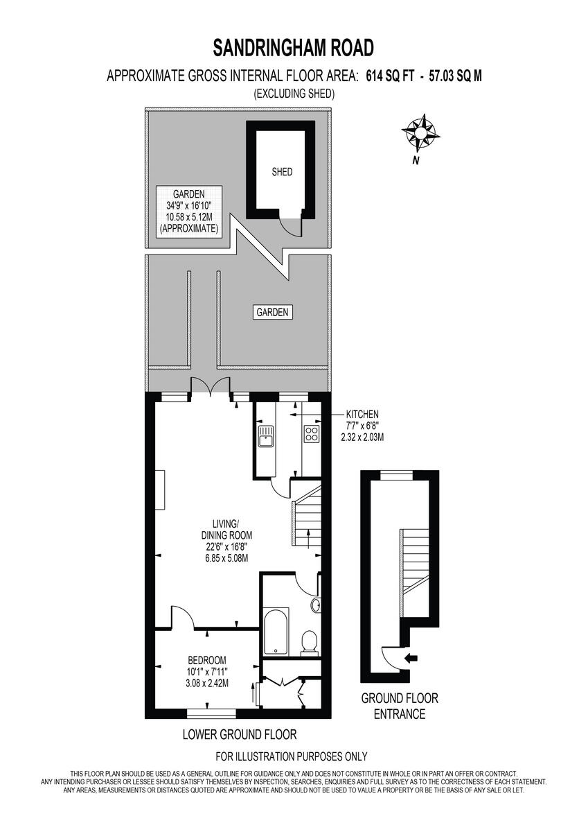
A stylish and imposing one bedroom garden flat set within a charming conversion boasting approx. 614sqft positioned on the border of Hackney Central and Dalston
Property Oracle says ..
This one bedroom apartment is located on Sandringham Road in Hackney Central, East London. The property benefits from a private garden, and is within easy reach of several transport links and well-regarded schools. The apartment itself is presented in good condition and has been recently modernised. The asking price of £525,000 is slightly below the average price for the area, but this is likely due to the smaller size of the property compared to the average. Overall, this property represents good value for money in a desirable location.
Therefore, we give this property 8 / 10. *Disclaimer: This is our option and does constitute a recommendation or financial advice. Do your own research. *
- Price
- 8
- Condition
- 9
- Location
- 9
- Land
- 7
- Bedrooms
- 1
- Bathrooms
- 1
- Sqft (est)
- 613.87
The heatmap indicates the level of crime in the area. The color of the heatmap indicates the crime severity and recency.
Metrics Year-on-Year
- Average area value
- 440,000.00 £Decreased by 31.24 %
- Est sale value
- 468,382.81 £Increased by 0.26 %
- Average area rental value
- 2,681.00 £/moIncreased by 3.51 %
- Est letting value
- 2,455.48 £/moIncreased by 33.33 %
- Est rental Yield
- 7.31 %Increased by 50.41 %
- Crime Rate
- 4.00 %Unchanged by 0.00 %
Agent Activity
Felicity J Lord created the listing.
Nearby Schools
| Name | Type | Ofsted | Distance |
|---|---|---|---|
| Brook Satellite Children'S Centre | Children's Centre Linked Site | 0.21 KM | |
| Mossbourne Parkside Academy | Academy Converter | Good | 0.21 KM |
| Mossbourne Community Academy | Academy Sponsor Led | Outstanding | 0.34 KM |
| Stormont House School | Community Special School | Outstanding | 0.57 KM |
| The Boxing Academy Ap Free School | Free Schools Alternative Provision | Outstanding | 0.76 KM |
Images
Nearby Streets
| Name | Average Price | Average Sqft | Distance |
|---|---|---|---|
| Blakeney Close | £ 0 | 0 | 0.00 KM |
| Foxley Close | £ 0 | 0 | 0.00 KM |
| Spurstowe Road | £ 0 | 0 | 0.00 KM |
| Bridge Mews | £ 625,000 | 0 | 0.00 KM |
| Lansdowne Drive | £ 0 | 0 | 0.00 KM |
Nearby Transport
| Name | NLC | TLC | Distance |
|---|---|---|---|
| Hackney Downs | 6867 | HAC | 0.37 KM |
| Hackney Central | 6977 | HKC | 0.93 KM |
| Rectory Road | 6967 | REC | 1.06 KM |
| London Fields | 6966 | LOF | 1.20 KM |
| Dalston Junction | 1443 | DLJ | 1.31 KM |
Nearby Listings
| Address | Price | Type | Score | Distance |
|---|---|---|---|---|
| Sandringham Road, LONDON E8 | £ 525,000 | BUY | 8 / 10 | 0.00 KM |
| Flat A, 13 Sigdon Road, Hackney, London, E8 | £ 380,000 | BUY | 6 / 10 | 0.07 KM |
| Wayland Avenue, London, E8 | £ 1,100,000 | BUY | 5 / 10 | 0.08 KM |
| Anton Street, E8 | £ 1,200,000 | BUY | 7 / 10 | 0.09 KM |
| Anton Street, E8 | £ 1,150,000 | BUY | 7 / 10 | 0.09 KM |
Nearby Properties
| Address | Price | Distance |
|---|---|---|
| 152 Sandringham Road | £ 554,000 | 0.06 KM |
| 165 Sandringham Road | £ 160,000 | 0.06 KM |
| 146 Sandringham Road | £ 60,000 | 0.06 KM |
| 5a Wayland Avenue | £ 370,000 | 0.10 KM |
| 15 Wayland Avenue | £ 248,950 | 0.10 KM |