Naylor Powell says ..
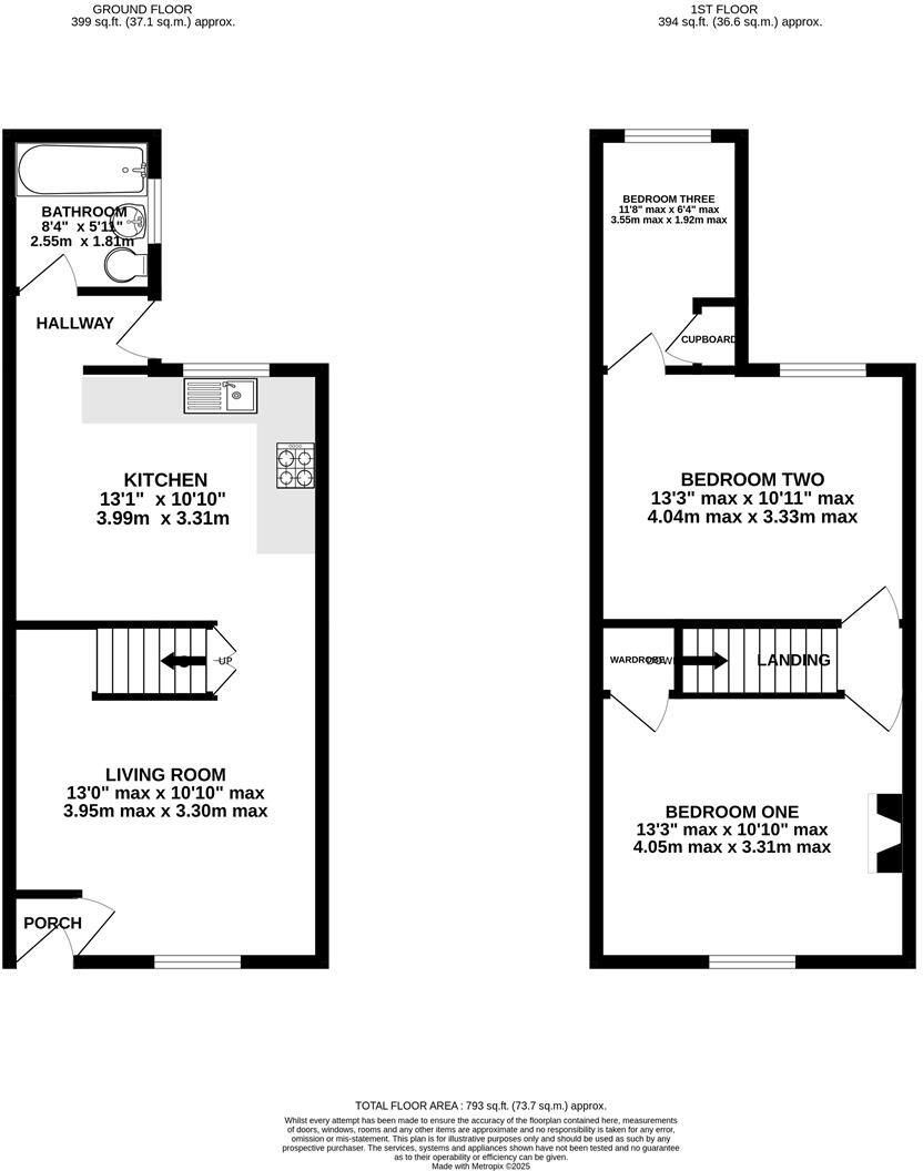
Offered to the market with no onward chain is this immaculately presented two / three bedroom mid-terrace property situated within walking distance to the Historic Gloucester Docks. Refurbished throughout by the present owner, the property offers a private and enclosed rear garden and is ideal fo...
Property Oracle says ..
Therefore, we give this property 7 / 10. *Disclaimer: This is our option and does constitute a recommendation or financial advice. Do your own research. *
- Price
- 7
- Condition
- 8
- Location
- 7
- Land
- 7
- Bedrooms
- 3
- Bathrooms
- 1
- Sqft (est)
- 688.25
The heatmap indicates the level of crime in the area. The color of the heatmap indicates the crime severity and recency.
Metrics Year-on-Year
- Average area value
- 345,000.00 £Increased by 40.18 %
- Est sale value
- 335,177.75 £Increased by 90.23 %
- Average area rental value
- 950.00 £/moIncreased by 0.64 %
- Est letting value
- 688.25 £/mo
- Est rental Yield
- 3.30 %Decreased by 28.26 %
- Crime Rate
- 3.00 %Unchanged by 0.00 %
from 246,107.00 £
from 176,192.00 £
from 944.00 £/mo
from 0.00 £/mo
from 4.60 %
from 3.00 %
Agent Activity
Naylor Powell created the listing.
Nearby Schools
| Name | Type | Ofsted | Distance |
|---|---|---|---|
| St Paul'S Church Of England Primary School | Voluntary Controlled School | Good | 0.39 KM |
| Linden Primary School | Community School | Good | 0.60 KM |
| The Lighthouse | Children's Centre | 0.68 KM | |
| Calton Primary School | Community School | Good | 1.20 KM |
| Ribston Hall High School | Academy Converter | Good | 1.32 KM |
Images
Nearby Streets
| Name | Average Price | Average Sqft | Distance |
|---|---|---|---|
| Alma Terrace | £ 180,000 | 0 | 0.00 KM |
| Saint Ann Way | £ 0 | 0 | 0.00 KM |
| Somerset Place | £ 0 | 0 | 0.00 KM |
| High Orchard Street | £ 280,000 | 0 | 0.00 KM |
| Park End Road | £ 1,100,000 | 0 | 0.00 KM |
Nearby Transport
| Name | NLC | TLC | Distance |
|---|---|---|---|
| Gloucester | 4760 | GCR | 1.84 KM |
Nearby Listings
| Address | Price | Type | Score | Distance |
|---|---|---|---|---|
| Robinhood Street, Gloucester | £ 205,000 | BUY | 7 / 10 | 0.00 KM |
| Robinhood Street, Gloucester | £ 160,000 | BUY | 5 / 10 | 0.02 KM |
| Robinhood Street, Gloucester | £ 145,000 | BUY | 6 / 10 | 0.03 KM |
| Bristol Road, Gloucester, GL1 | £ 205,000 | BUY | Unknown | 0.13 KM |
| Robinhood Street, Gloucester, Gloucestershire, GL1 | £ 210,000 | BUY | Unknown | 0.14 KM |
Nearby Properties
| Address | Price | Distance |
|---|---|---|
| 69 Robinhood Street | £ 110,000 | 0.04 KM |
| 23 Robinhood Street | £ 140,000 | 0.04 KM |
| 13 Robinhood Street | £ 148,000 | 0.04 KM |
| 25 Robinhood Street | £ 111,000 | 0.04 KM |
| 29 Robinhood Street | £ 92,500 | 0.04 KM |