Adamton Road, Prestwick, KA9
By Hoppers Estate Agency
£ 265,000
Reviews
3 out of 5 stars
Hoppers Estate Agency says ..
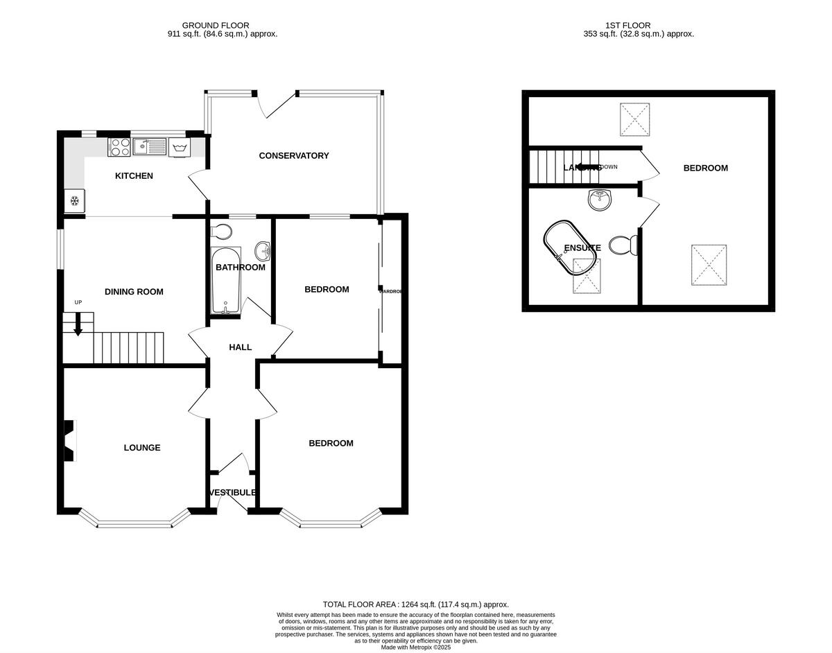
Well presented 3 bedroom detached bungalow in a sought after location - with lounge, dining room, kitchen, 3 double bedrooms and 2 bathrooms, Off street parking with garage and enclosed rear garden. Early viewings advised
Property Oracle says ..
This property is a 3 bedroom detached bungalow situated in Prestwick, South Ayrshire. The property benefits from a good size garden, and is conveniently located near Prestwick Town train station and Prestwick International Airport. The interior is presented in good order and benefits from a recently fitted kitchen. While the property is slightly smaller than the average for the area, the asking price appears reasonable when compared to similar properties in the local area.
Therefore, we give this property 7 / 10. *Disclaimer: This is our option and does constitute a recommendation or financial advice. Do your own research. *
- Price
- 7
- Condition
- 8
- Location
- 8
- Land
- 7
- Bedrooms
- 3
- Bathrooms
- 2
- Sqft (est)
- 1,264.00
The heatmap indicates the level of crime in the area. The color of the heatmap indicates the crime severity and recency.
Metrics Year-on-Year
- Average area value
- 591,667.00 £Increased by 9.11 %
- Est sale value
- 364,032.00 £Decreased by 44.40 %
- Average area rental value
- 2,375.00 £/moIncreased by 124.69 %
- Est letting value
- 1,264.00 £/moUnchanged by 0.00 %
- Est rental Yield
- 4.82 %Increased by 105.98 %
- Crime Rate
- 0.00 %
Agent Activity
Hoppers Estate Agency created the listing.
Images
Nearby Streets
| Name | Average Price | Average Sqft | Distance |
|---|---|---|---|
| Westbourne Avenue | £ 275,000 | 0 | 0.00 KM |
| Briarhill Court | £ 135,000 | 0 | 0.00 KM |
| Ferguson Avenue | £ 0 | 0 | 0.00 KM |
| Highfield Avenue | £ 285,000 | 0 | 0.00 KM |
| Aitkenbrae Drive | £ 215,000 | 0 | 0.00 KM |
Nearby Transport
| Name | NLC | TLC | Distance |
|---|---|---|---|
| Prestwick Town | 9543 | PTW | 1.61 KM |
| Prestwick International Airport | 9544 | PRA | 1.95 KM |
| Newton-On-Ayr | 9571 | NOA | 3.70 KM |
| Ayr | 9463 | AYR | 5.08 KM |
| Troon | 9562 | TRN | 7.84 KM |
Nearby Listings
| Address | Price | Type | Score | Distance |
|---|---|---|---|---|
| Adamton Road, Prestwick, KA9 | £ 265,000 | BUY | 7 / 10 | 0.00 KM |
| 6 Ferguson Avenue, Prestwick, KA9 1BN | £ 200,000 | BUY | 7 / 10 | 0.13 KM |
| Briarhill Court, Prestwick | £ 120,000 | BUY | 6 / 10 | 0.18 KM |
| Briarhill Road, Prestwick, KA9 | £ 335,000 | BUY | 7 / 10 | 0.21 KM |
| 89 Briarhill Road, Prestwick, KA9 1HZ | £ 260,000 | BUY | 7 / 10 | 0.25 KM |