Elvetham Road, Fleet, GU51
By McCarthy Holden
£ 1,700,000
Reviews
3 out of 5 stars
McCarthy Holden says ..
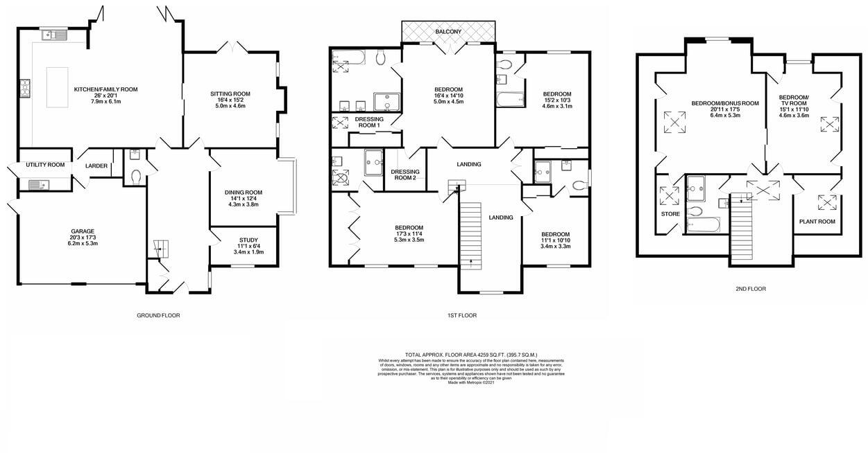
Constructed 7 years ago to a high specification, this spacious family home offers accommodation in excess of 4,000 sq ft. The property is situated in a prime position within the Blue Triangle where Fleet high street and Fleet main line train station are within a short distance.
Property Oracle says ..
This property, located on Elvetham Road in Fleet, Hampshire, presents a compelling proposition for a family seeking a luxurious and well-located home. The six-bedroom, five-bathroom layout offers ample space, complemented by a modern and stylish interior design evident in the provided photographs. The finishes and fittings are high-quality and the property appears to be in excellent condition, likely recently renovated or a new build. The proximity to Fleet train station is highly convenient for commuters, and the presence of nearby outstanding schools adds to its family-friendliness. The garden, while not exceptionally spacious based on the image, appears well-maintained and offers a private outdoor space. While the listed price of £1,700,000 reflects a higher price point, the property’s high-end features and prime location appear to justify this within the context of the nearby higher-priced comparable properties. The lack of precise plot size is noteworthy, as it could impact the final valuation. More detailed information regarding comparable property sales in terms of square footage and land size would assist in a more thorough market value analysis. Overall, it is a well-presented property positioned in a highly sought-after area.
Therefore, we give this property 7 / 10. *Disclaimer: This is our option and does constitute a recommendation or financial advice. Do your own research. *
- Price
- 7
- Condition
- 9
- Location
- 8
- Land
- 6
- Bedrooms
- 6
- Bathrooms
- 5
- Sqft (est)
- 4,259.28
The heatmap indicates the level of crime in the area. The color of the heatmap indicates the crime severity and recency.
Metrics Year-on-Year
- Average area value
- 587,286.00 £Decreased by 26.45 %
- Est sale value
- 2,875,014.00 £Increased by 72.63 %
- Average area rental value
- 1,582.00 £/moDecreased by 10.97 %
- Est letting value
- 4,259.28 £/mo
- Est rental Yield
- 3.23 %Increased by 20.97 %
- Crime Rate
- 4.00 %Unchanged by 0.00 %
Agent Activity
McCarthy Holden created the listing.
Nearby Schools
| Name | Type | Ofsted | Distance |
|---|---|---|---|
| Turners Wood, Fleet Fireflies And Wild Rose Children'S Centre | Children's Centre | 1.11 KM | |
| Elvetham Heath Primary School | Community School | Outstanding | 1.11 KM |
| Fleet Fireflies Children'S Centre | Children's Centre Linked Site | 1.12 KM | |
| Heatherside Junior School | Community School | Outstanding | 1.63 KM |
| Heatherside Infant School | Community School | Outstanding | 1.63 KM |
Images
Nearby Streets
| Name | Average Price | Average Sqft | Distance |
|---|---|---|---|
| Church Road | £ 1,200,000 | 0 | 0.00 KM |
| Beaumont Court | £ 0 | 0 | 0.00 KM |
| Sunnyside | £ 1,597,500 | 0 | 0.00 KM |
| Greenwood Manor | £ 0 | 0 | 0.00 KM |
| Church Grove | £ 0 | 0 | 0.00 KM |
Nearby Transport
| Name | NLC | TLC | Distance |
|---|---|---|---|
| Fleet | 5522 | FLE | 1.79 KM |
| Winchfield | 5528 | WNF | 6.66 KM |
| Sandhurst (Berks) | 5646 | SND | 7.99 KM |
| Blackwater | 5625 | BAW | 9.10 KM |
| Crowthorne | 5628 | CRN | 9.20 KM |
Nearby Listings
| Address | Price | Type | Score | Distance |
|---|---|---|---|---|
| Elvetham Road, Fleet, GU51 | £ 1,700,000 | BUY | 7 / 10 | 0.00 KM |
| Elvetham Road, Fleet, GU51 | £ 1,250,000 | BUY | 7 / 10 | 0.02 KM |
| Elvetham Road, Fleet, Hampshire, GU51 | £ 400,000 | BUY | Unknown | 0.04 KM |
| Elvetham Road, Fleet, Hampshire, GU51 | £ 450,000 | BUY | 5 / 10 | 0.05 KM |
| Elvetham Road, Fleet | £ 425,000 | BUY | 6 / 10 | 0.05 KM |
Nearby Properties
| Address | Price | Distance |
|---|---|---|
| 22 Elvetham Road | £ 375,000 | 0.04 KM |
| 28a Elvetham Road | £ 460,000 | 0.04 KM |
| 28 Elvetham Road | £ 98,000 | 0.04 KM |
| 26 Elvetham Road | £ 335,000 | 0.04 KM |
| 30a Elvetham Road | £ 325,000 | 0.04 KM |