Arnold & Phillips says ..
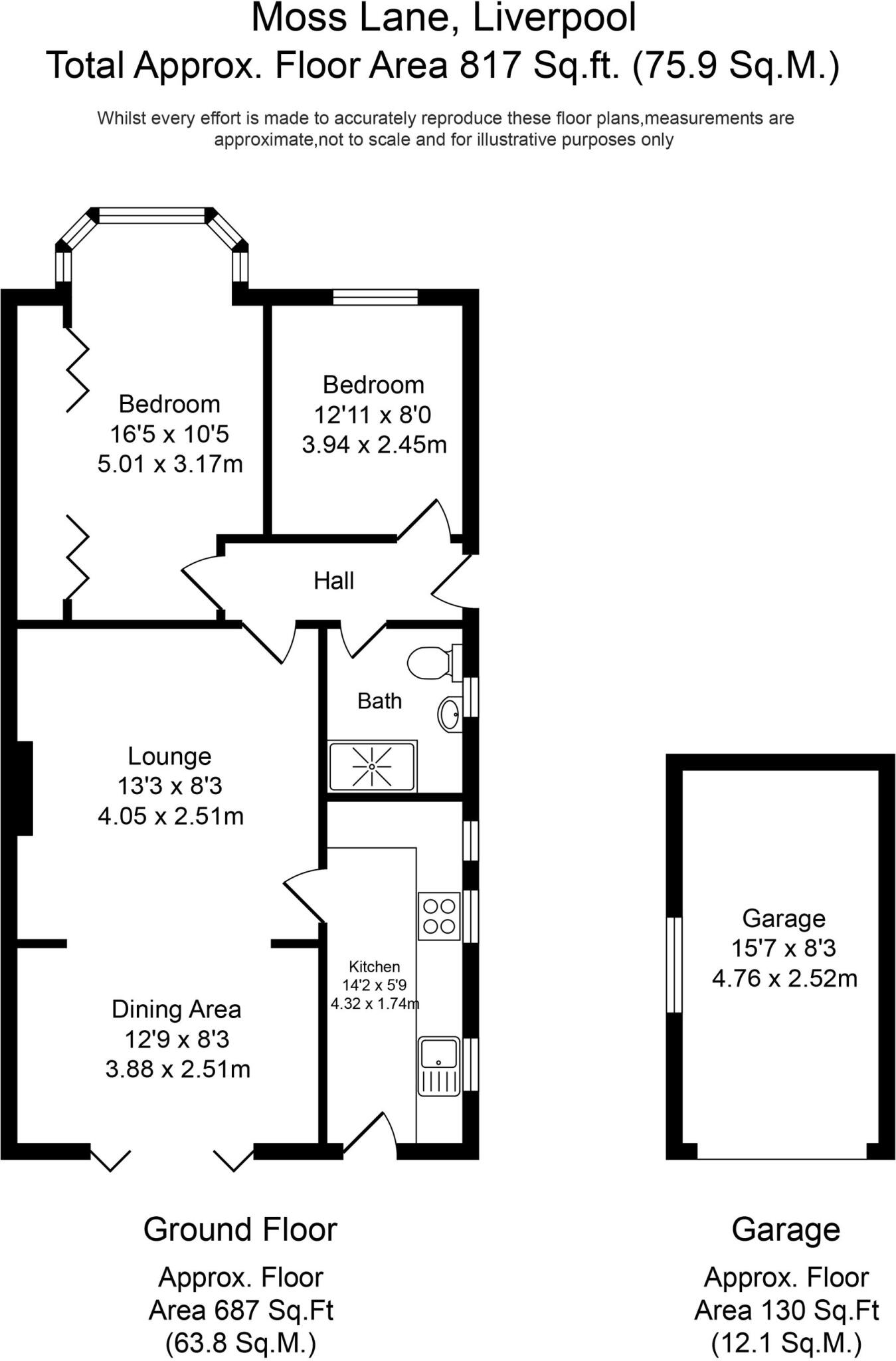
Arnold & Phillips are delighted to offer this well-positioned two-bedroom semi-detached true bungalow along the ever-popular Moss Lane in Maghull, Liverpool. Sitting within a convenient distance of nearby shops, cafes and essential amenities, this is a property that lends itself well to those...
Property Oracle says ..
This is a two-bedroom semi-detached bungalow located on Moss Lane in Maghull. The property benefits from its proximity to local schools and transportation links. The interior is in generally good condition, with a modern kitchen and bathroom. The garden, however, requires significant attention. The asking price of £250,000 seems reasonable given the location and condition of the property, although it is slightly above the average price per square foot for the area. The property is conveniently located close to Northway Primary School and within walking distance of Maghull North and Maghull train stations. Overall, this property presents a good opportunity for potential buyers looking for a well-located and maintained home with some scope for improvement in the garden.
Therefore, we give this property 6 / 10. *Disclaimer: This is our option and does constitute a recommendation or financial advice. Do your own research. *
- Price
- 7
- Condition
- 7
- Location
- 7
- Land
- 5
- Bedrooms
- 2
- Bathrooms
- 1
- Sqft (est)
- 703.19
The heatmap indicates the level of crime in the area. The color of the heatmap indicates the crime severity and recency.
Metrics Year-on-Year
- Average area value
- 257,222.00 £Decreased by 8.17 %
- Est sale value
- 174,391.12 £Increased by 16.43 %
- Average area rental value
- 1,100.00 £/moIncreased by 7.32 %
- Est letting value
- 703.19 £/mo
- Est rental Yield
- 5.13 %Increased by 16.86 %
- Crime Rate
- 5.00 %Unchanged by 0.00 %
Agent Activity
Arnold & Phillips created the listing.
Nearby Schools
| Name | Type | Ofsted | Distance |
|---|---|---|---|
| Northway Primary School | Community School | Good | 0.32 KM |
| St Thomas Church Of England Primary School, Lydiate | Academy Converter | 0.89 KM | |
| Deyes High School | Academy Converter | Good | 0.99 KM |
| St Andrews Church Of England Primary School, Maghull | Academy Converter | 1.03 KM | |
| Maricourt Catholic High School | Voluntary Aided School | Requires improvement | 1.36 KM |
Images
Nearby Streets
| Name | Average Price | Average Sqft | Distance |
|---|---|---|---|
| Langdale Drive | £ 315,000 | 0 | 0.00 KM |
| Laburnum Grove | £ 0 | 0 | 0.00 KM |
| Fir Cotes | £ 0 | 0 | 0.00 KM |
| Kelkbeck Close | £ 0 | 0 | 0.00 KM |
| Twyford Close | £ 0 | 0 | 0.00 KM |
Nearby Transport
| Name | NLC | TLC | Distance |
|---|---|---|---|
| Maghull North | 6576 | MNS | 1.28 KM |
| Maghull | 2155 | MAG | 1.38 KM |
| Old Roan | 2258 | ORN | 4.08 KM |
| Town Green | 2283 | TWN | 4.12 KM |
| Kirkby (Merseyside) | 2124 | KIR | 4.90 KM |
Nearby Listings
| Address | Price | Type | Score | Distance |
|---|---|---|---|---|
| Moss Lane, Maghull, L31 | £ 250,000 | BUY | 6 / 10 | 0.00 KM |
| Langdale Drive, Maghull | £ 325,000 | BUY | Unknown | 0.15 KM |
| Langdale Drive, Liverpool, Merseyside, L31 | £ 350,000 | BUY | 6 / 10 | 0.16 KM |
| Dodds Lane, Maghull | £ 240,000 | BUY | 6 / 10 | 0.16 KM |
| Keswick Close, Maghull | £ 350,000 | BUY | 7 / 10 | 0.16 KM |
Nearby Properties
| Address | Price | Distance |
|---|---|---|
| 21 Moss Lane | £ 114,000 | 0.02 KM |
| 35 Moss Lane | £ 184,950 | 0.02 KM |
| 31 Moss Lane | £ 145,000 | 0.02 KM |
| 49 Moss Lane | £ 168,000 | 0.02 KM |
| 51 Moss Lane | £ 220,000 | 0.02 KM |