SH
Forbes Drive, Glasgow, G40 2LF
By Shanta Residential
£ 130,000
Reviews
3 out of 5 stars
Shanta Residential says ..
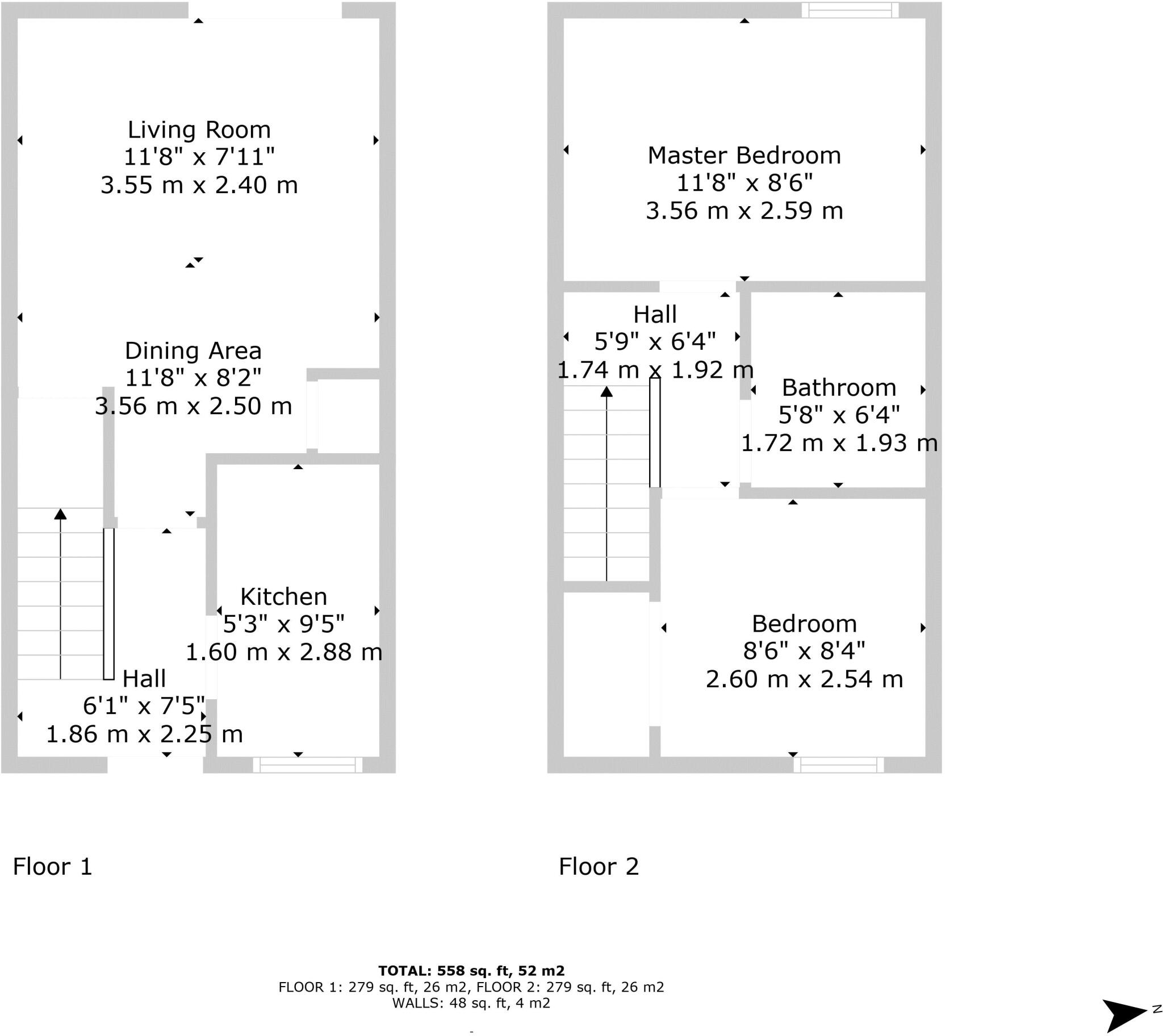
Shanta Residential are proud to present this great two bedroom, terrace house situated within walking distance of Glasgow's City Centre. On entering the property you are welcomed into the hallway which leads to the kitchen which offers excellent storage and preparation space. The kitchen is wel...
Property Oracle says ..
Therefore, we give this property 6 / 10. *Disclaimer: This is our option and does constitute a recommendation or financial advice. Do your own research. *
- Price
- 7
- Condition
- 6
- Location
- 7
- Land
- 7
- Bedrooms
- 2
- Bathrooms
- 1
The heatmap indicates the level of crime in the area. The color of the heatmap indicates the crime severity and recency.
Metrics Year-on-Year
- Average area value
- 123,750.00 £Decreased by 21.57 %
- Average area rental value
- 1,007.00 £/moDecreased by 12.36 %
- Est rental Yield
- 9.76 %Increased by 11.67 %
- Crime Rate
- 0.00 %
from 157,776.00 £
from 1,149.00 £/mo
from 8.74 %
from 0.00 %
Agent Activity
Shanta Residential created the listing.
Images
Nearby Streets
| Name | Average Price | Average Sqft | Distance |
|---|---|---|---|
| Millroad Gardens | £ 85,000 | 0 | 0.00 KM |
| Orr Street | £ 0 | 0 | 0.00 KM |
| Forbes Drive | £ 103,750 | 0 | 0.00 KM |
| Abercromby Drive | £ 79,950 | 0 | 0.00 KM |
| Bellgrove Street | £ 126,667 | 0 | 0.00 KM |
Nearby Transport
| Name | NLC | TLC | Distance |
|---|---|---|---|
| Bellgrove | 9895 | BLG | 0.49 KM |
| Bridgeton | 9789 | BDG | 0.52 KM |
| High Street (Glasgow) | 9909 | HST | 1.57 KM |
| Dalmarnock | 9790 | DAK | 1.65 KM |
| Duke Street | 9906 | DST | 1.68 KM |
Nearby Listings
| Address | Price | Type | Score | Distance |
|---|---|---|---|---|
| Forbes Drive, Glasgow, G40 2LF | £ 130,000 | BUY | 6 / 10 | 0.00 KM |
| 4 Forbes Drive, Glasgow, G40 2LF | £ 95,000 | BUY | 5 / 10 | 0.01 KM |
| Flat 0/2, 5 Abercromby Drive, Glasgow, G40 2HW | £ 84,999 | BUY | 6 / 10 | 0.17 KM |
| Abercromby Street, Glasgow | £ 180,000 | BUY | 6 / 10 | 0.19 KM |
| Abercromby Street, Glasgow, G40 | £ 165,000 | BUY | 6 / 10 | 0.20 KM |