Bryan & Keegan says ..
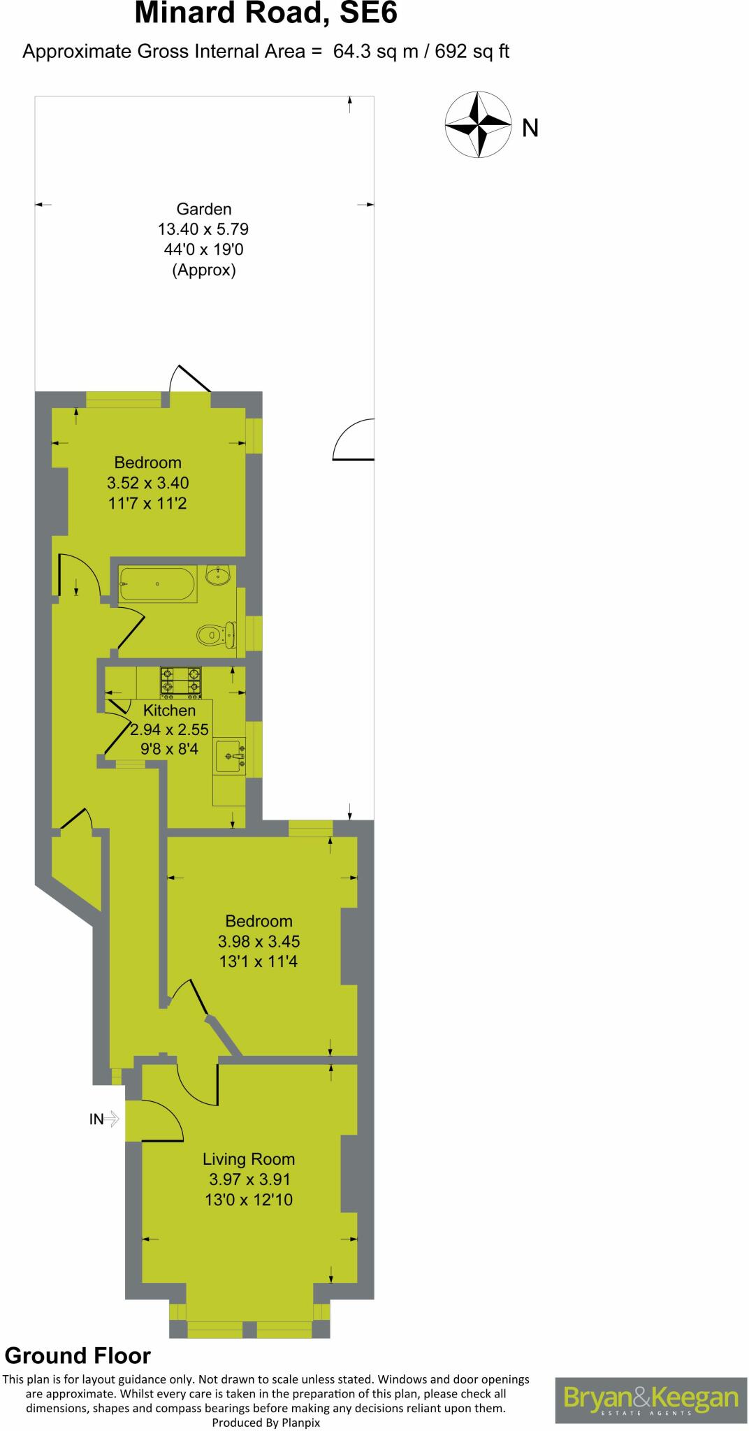
Ground floor flat | Period conversion | Two double bedrooms | Direct access to private rear garden | Large reception room | Access to off-road parking | EPC rating D
Property Oracle says ..
This two-bedroom property situated on Minard Road in Lewisham, London (SE6 1NS), presents a compelling blend of convenience and charm. The location offers excellent access to transport links via Hither Green station, enhancing its accessibility to central London. Moreover, the proximity to well-regarded schools, including a nearby school rated ‘Good’ by Ofsted, further strengthens its appeal to families.
The internal images reveal a thoughtfully maintained interior, exhibiting a recent upgrade in the kitchen and bathroom. The light and airy rooms, accentuated by wood flooring and tasteful decor, create a welcoming atmosphere. The presence of a private garden, albeit not extensive, adds to the property’s overall desirability.
The overall condition appears to be good, with modern amenities blended seamlessly into a period property. While minor improvements could be undertaken to further enhance its aesthetic appeal, the property presents a move-in ready condition.
The price of £425,000 requires careful evaluation given the limited price-per-square-foot data in the provided information. However, in consideration of its location, condition and the presence of a garden, the price point appears competitive within the surrounding market, especially in comparison with other recently sold properties in the area which exhibited higher price tags. Further investigation into comparable sold prices in the area and a precise measurement of square footage will better inform a conclusive pricing assessment. Ultimately, this property could be a worthwhile purchase for those seeking a well-located and adequately sized home in South East London.
Therefore, we give this property 6 / 10. *Disclaimer: This is our option and does constitute a recommendation or financial advice. Do your own research. *
- Price
- 7
- Condition
- 6
- Location
- 7
- Land
- 4
- Bedrooms
- 2
- Bathrooms
- 0
- Sqft (est)
- 692.12
The heatmap indicates the level of crime in the area. The color of the heatmap indicates the crime severity and recency.
Metrics Year-on-Year
- Average area value
- 474,750.00 £Increased by 4.39 %
- Est sale value
- 441,572.56 £Increased by 19.25 %
- Average area rental value
- 2,030.00 £/moIncreased by 10.33 %
- Est letting value
- 1,384.24 £/moUnchanged by 0.00 %
- Est rental Yield
- 5.13 %Increased by 5.77 %
- Crime Rate
- 4.00 %Unchanged by 0.00 %
Agent Activity
Bryan & Keegan marked this listing as sold.
Bryan & Keegan created the listing.
Nearby Schools
| Name | Type | Ofsted | Distance |
|---|---|---|---|
| The Young Women'S Hub | Other Independent Special School | Requires improvement | 0.28 KM |
| Sandhurst Primary School | Community School | Good | 0.29 KM |
| Brindishe Green School | Community School | Outstanding | 0.82 KM |
| Brindishe Manor School | Community School | Outstanding | 0.86 KM |
| Torridon Primary School | Community School | Outstanding | 1.03 KM |
Images
Nearby Streets
| Name | Average Price | Average Sqft | Distance |
|---|---|---|---|
| Broadfield Road | £ 0 | 0 | 0.00 KM |
| St. Mildred's Road | £ 0 | 0 | 0.00 KM |
| Oakley Drive | £ 0 | 0 | 0.00 KM |
| Arlington Close | £ 0 | 0 | 0.00 KM |
| Excalibur Drive | £ 380,000 | 0 | 0.00 KM |
Nearby Transport
| Name | NLC | TLC | Distance |
|---|---|---|---|
| Hither Green | 5107 | HGR | 0.73 KM |
| Lee | 5110 | LEE | 1.56 KM |
| Ladywell | 5057 | LAD | 2.42 KM |
| Blackheath | 5095 | BKH | 2.46 KM |
| Bellingham | 5062 | BGM | 2.56 KM |
Nearby Listings
| Address | Price | Type | Score | Distance |
|---|---|---|---|---|
| Minard Road, London, SE6 | £ 425,000 | BUY | 6 / 10 | 0.00 KM |
| Brownhill Road, London | £ 250,000 | BUY | Unknown | 0.08 KM |
| Brownhill Road, London | £ 250,000 | BUY | 8 / 10 | 0.08 KM |
| Ardgowan Road, Hither Green, London, SE6 | £ 1,100,000 | BUY | 7 / 10 | 0.10 KM |
| Brownhill Road, London, SE6 | £ 350,000 | BUY | Unknown | 0.11 KM |
Nearby Properties
| Address | Price | Distance |
|---|---|---|
| 15 Minard Road | £ 945,000 | 0.05 KM |
| 3c Minard Road | £ 175,000 | 0.05 KM |
| 4 Minard Road | £ 885,000 | 0.05 KM |
| 3a Minard Road | £ 240,000 | 0.05 KM |
| 12a Minard Road | £ 400,000 | 0.07 KM |