London Road, Bridgeton, Glasgow
By MQ Estate Agents and Lettings
£ 70,000
Reviews
2 out of 5 stars
MQ Estate Agents and Lettings says ..
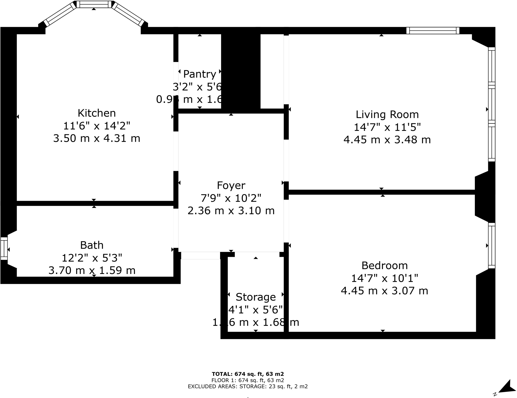
Located on the outskirts of Glasgow city centre, this beautifully presented one-bedroom traditional tenement flat in Bridgeton is in true walk-in condition. Offering a blend of classic charm and modern convenience, this home is ideal for first-time buyers, professionals, or those seeking a well-c...
Property Oracle says ..
The property is a well-presented 1-bedroom apartment in a convenient location. The recent renovations to the kitchen and bathroom are a positive feature. However, the lack of outdoor space and the relatively low price compared to similar properties in the area warrant further investigation.
Therefore, we give this property 5 / 10. *Disclaimer: This is our option and does constitute a recommendation or financial advice. Do your own research. *
- Price
- 6
- Condition
- 8
- Location
- 7
- Land
- 1
- Bedrooms
- 1
- Bathrooms
- 1
- Sqft (est)
- 678.13
The heatmap indicates the level of crime in the area. The color of the heatmap indicates the crime severity and recency.
Metrics Year-on-Year
- Average area value
- 123,750.00 £Decreased by 21.57 %
- Est sale value
- 136,982.26 £Increased by 14.12 %
- Average area rental value
- 1,007.00 £/moDecreased by 12.36 %
- Est letting value
- 678.13 £/moUnchanged by 0.00 %
- Est rental Yield
- 9.76 %Increased by 11.67 %
- Crime Rate
- 122.00 %Unchanged by 0.00 %
Agent Activity
MQ Estate Agents and Lettings marked this listing as sold.
MQ Estate Agents and Lettings created the listing.
Images
Nearby Streets
| Name | Average Price | Average Sqft | Distance |
|---|---|---|---|
| Kerr Drive | £ 0 | 0 | 0.00 KM |
| Kerr Street | £ 140,000 | 0 | 0.00 KM |
| Megan Street | £ 0 | 0 | 0.00 KM |
| Orr Street | £ 0 | 0 | 0.00 KM |
| Abercromby Street | £ 0 | 0 | 0.00 KM |
Nearby Transport
| Name | NLC | TLC | Distance |
|---|---|---|---|
| Bridgeton | 9789 | BDG | 0.16 KM |
| Bellgrove | 9895 | BLG | 0.86 KM |
| Dalmarnock | 9790 | DAK | 1.35 KM |
| High Street (Glasgow) | 9909 | HST | 1.79 KM |
| Duke Street | 9906 | DST | 1.87 KM |
Nearby Listings
| Address | Price | Type | Score | Distance |
|---|---|---|---|---|
| London Road, Bridgeton, Glasgow | £ 70,000 | BUY | 5 / 10 | 0.00 KM |
| 175D James Street, Flat 2/2, Bridgeton, Glasgow, G40 1BT | £ 75,000 | BUY | 6 / 10 | 0.10 KM |
| Kerr Street, Glasgow, Glasgow City, G40 | £ 160,000 | BUY | 7 / 10 | 0.13 KM |
| London Road, Bridgeton | £ 85,000 | BUY | 5 / 10 | 0.16 KM |
| 23, Main Street, Glasgow, G401QA | £ 55,000 | BUY | 6 / 10 | 0.18 KM |