Cox Green Road, Bolton, BL7
William Thomas Estate Agency logo

Cox Green Road, Bolton, BL7

By William Thomas Estate Agency

£ 265,000

Reviews

2 out of 5 stars

William Thomas Estate Agency says ..

Welcome to 74 Cox Green Road… If you are looking for a truly unique, deceptively spacious property with the opportunity for you to modernise and put your own stamp on, then this one might be for you! A detached, two-bedroom property in an elevated position on Cox Green Road in Bromley Cross. E...

Property Oracle says ..

This property is located in Bromley Cross, Bolton, which benefits from being close to local amenities and transport links. The property itself is a two-bedroom, one-bathroom house with a small garden. Based on the photos, the property appears to be in need of some modernisation and updating, particularly the interior decor and kitchen. The list price of £265,000 is below the average price for the area (£357,713), however, the average price per sqft is £273.00 and this property is smaller than average. Considering the condition and the relatively small plot size, the price may be reasonable for a buyer looking for a project.

Therefore, we give this property 5 / 10. *Disclaimer: This is our option and does constitute a recommendation or financial advice. Do your own research. *

Price
6
Condition
5
Location
7
Land
3
Bedrooms
2
Bathrooms
1
Sqft (est)
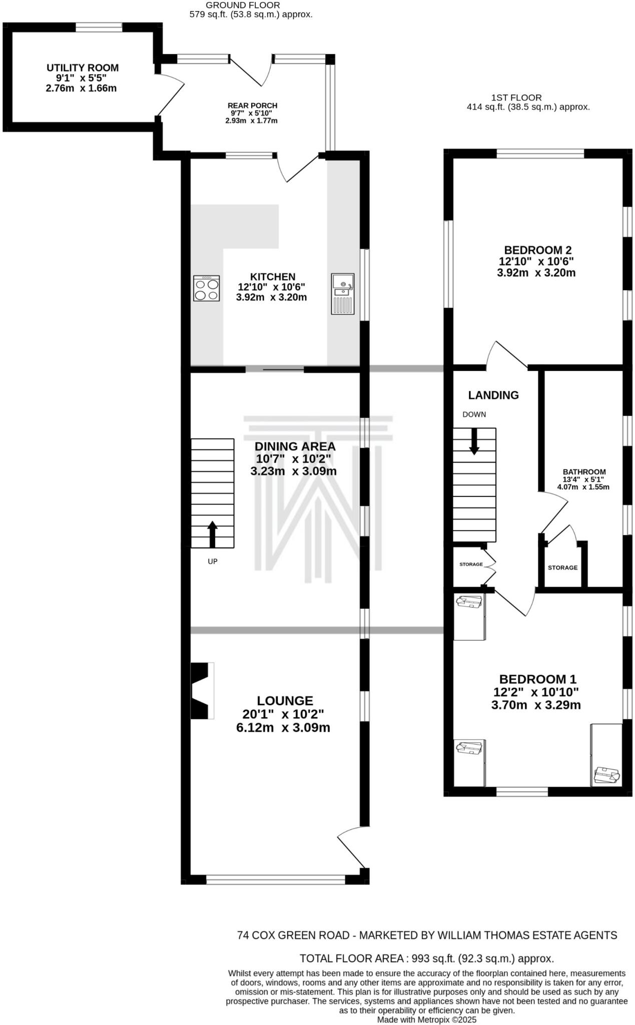
993.51

The heatmap indicates the level of crime in the area. The color of the heatmap indicates the crime severity and recency.

Metrics Year-on-Year

Average area value
301,279.00 £
Decreased by 4.72 %
from 316,206.00 £
Est sale value
244,403.46 £
Decreased by 15.17 %
from 288,117.90 £
Average area rental value
988.00 £/mo
Decreased by 5.73 %
from 1,048.00 £/mo
Est letting value
0.00 £/mo
from 0.00 £/mo
Est rental Yield
3.94 %
Decreased by 1.01 %
from 3.98 %
Crime Rate
0.00 %
from 0.00 %

Agent Activity

  • William Thomas Estate Agency created the listing.

Nearby Schools

NameTypeOfstedDistance
St John The Evangelist Rc Primary School, Bromley Cross, BoltonVoluntary Aided SchoolGood0.64 KM
Eagley Infant SchoolAcademy ConverterGood1.06 KM
Bromley Cross Start Well Link SiteChildren's Centre Linked Site1.08 KM
Walmsley Cofe Primary SchoolVoluntary Aided SchoolOutstanding1.13 KM
The Oaks Primary SchoolCommunity SchoolOutstanding1.45 KM

Images

Photograph 3 Photograph 6 Photograph 7 Photograph 8 Photograph 9 Photograph 12 Photograph 16 Photograph 15 Photograph 13 Photograph 14 Photograph 23 Photograph 24 Photograph 18 Photograph 19 Photograph 20 Photograph 21 Photograph 22 Photograph 10 Photograph 11 Photograph 25 Photograph 26 Photograph 5 Photograph 4 Photograph 2 Photograph 24 Photograph 25

Nearby Streets

NameAverage PriceAverage SqftDistance
Back Cox Green Road North £ 000.00 KM
Back Dunscar Square £ 000.00 KM
Elm Grove £ 325,00000.00 KM
The Grange £ 185,00000.00 KM
The Gardens £ 345,00000.00 KM

Nearby Transport

NameNLCTLCDistance
Bromley Cross (Lancs)2697BMC2.10 KM
Hall-I'-Th'-Wood2572HID3.25 KM
Entwistle2747ENT3.98 KM
Bolton2599BON5.41 KM
Moses Gate2606MSS7.98 KM

Nearby Listings

AddressPriceTypeScoreDistance
Cox Green Road, Bolton, BL7 £ 265,000BUY5 / 100.00 KM
Upper Mead, Bromley Cross, Bolton, BL7 £ 425,000BUY8 / 100.06 KM
Rock Terrace, Smith Lane, Egerton, Bolton, BL7 £ 875,000BUY5 / 100.06 KM
Cox Green Road, BOLTON, Lancashire, BL7 £ 180,000BUY6 / 100.08 KM
Cox Green Road, Egerton, BL7 9HF £ 275,000BUYUnknown0.13 KM

Nearby Properties

AddressPriceDistance
6 Upper Mead £ 174,5000.06 KM
12 Upper Mead £ 89,0000.06 KM
2 Upper Mead £ 197,0000.06 KM
1 Upper Mead £ 234,7770.06 KM
26 Upper Mead £ 350,0000.06 KM