Martin Allsuch says ..
Martin Allsuch & Co are pleased to present this superb 3 bedroom semi detached house for sale in Borehamwood
Property Oracle says ..
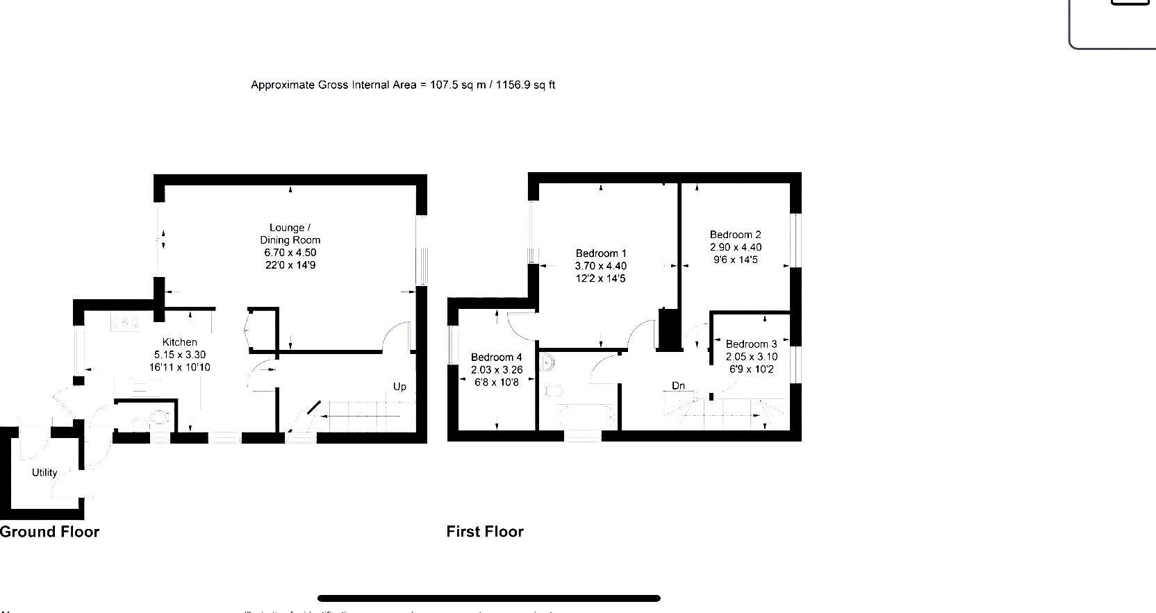
This is a three-bedroom semi-detached house on Hillside Avenue in Borehamwood. The property benefits from a modern kitchen, a garden, and proximity to local schools. While the bathroom could use updating, the house appears to be in generally good condition. The property includes a laundry room which is a plus. The price is in line with the average for the area.
Therefore, we give this property 6 / 10. *Disclaimer: This is our option and does constitute a recommendation or financial advice. Do your own research. *
- Price
- 7
- Condition
- 7
- Location
- 7
- Land
- 6
- Bedrooms
- 3
- Bathrooms
- 1
The heatmap indicates the level of crime in the area. The color of the heatmap indicates the crime severity and recency.
Metrics Year-on-Year
- Average area value
- 597,414.00 £Decreased by 22.57 %
- Average area rental value
- 1,488.00 £/moDecreased by 19.96 %
- Est rental Yield
- 2.99 %Increased by 3.46 %
- Crime Rate
- 0.00 %
Agent Activity
Martin Allsuch created the listing.
Nearby Schools
| Name | Type | Ofsted | Distance |
|---|---|---|---|
| Monksmead School | Community School | Good | 0.14 KM |
| Yavneh Primary School | Free Schools | Outstanding | 0.15 KM |
| Yavneh College | Academy Converter | 0.32 KM | |
| H5 Borehamwood Link Family Centre | Children's Centre | 0.47 KM | |
| Summerswood Primary School | Community School | Good | 0.62 KM |
Images
Nearby Streets
| Name | Average Price | Average Sqft | Distance |
|---|---|---|---|
| Baker Court | £ 0 | 0 | 0.00 KM |
| Meadow Road | £ 0 | 0 | 0.00 KM |
| Gregson Close | £ 0 | 0 | 0.00 KM |
| St Paul's Close | £ 0 | 0 | 0.00 KM |
| Carrington Close | £ 0 | 0 | 0.00 KM |
Nearby Transport
| Name | NLC | TLC | Distance |
|---|---|---|---|
| Elstree And Borehamwood | 1542 | ELS | 1.61 KM |
| Mill Hill Broadway | 1527 | MIL | 5.07 KM |
| Radlett | 1546 | RDT | 6.58 KM |
| Hendon | 1522 | HEN | 8.93 KM |
| Potters Bar | 6022 | PBR | 9.31 KM |
Nearby Listings
| Address | Price | Type | Score | Distance |
|---|---|---|---|---|
| Hillside Avenue, Borehamwood | £ 599,950 | BUY | 6 / 10 | 0.00 KM |
| Bullhead Road, Borehamwood, Hertfordshire, WD6 | £ 325,000 | BUY | 6 / 10 | 0.26 KM |
| Bullhead Road, Borehamwood, Hertfordshire, WD6 | £ 350,000 | BUY | 7 / 10 | 0.27 KM |
| Bullhead Road, Borehamwood | £ 635,000 | BUY | 7 / 10 | 0.28 KM |
| Bullhead Road, Borehamwood | £ 675,000 | BUY | 7 / 10 | 0.28 KM |
Nearby Properties
| Address | Price | Distance |
|---|---|---|
| 87 Hillside Avenue | £ 140,000 | 0.01 KM |
| 143 Hillside Avenue | £ 478,000 | 0.01 KM |
| 91 Hillside Avenue | £ 544,500 | 0.01 KM |
| 113 Hillside Avenue | £ 180,000 | 0.01 KM |
| 103 Hillside Avenue | £ 500,000 | 0.01 KM |