Barnard Marcus says ..
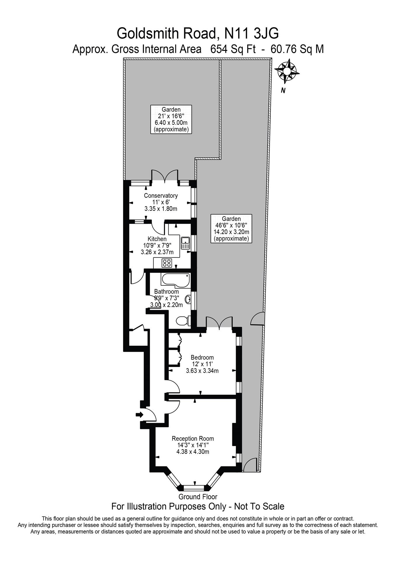
A charming period one-bedroom ground floor maisonette with private garden and conservatory, situated on Goldsmith Road in Friern Barnet.
Property Oracle says ..
This is a one-bedroom flat on Goldsmith Road, London. The property is in generally good condition, with a well-maintained bathroom and kitchen. It also benefits from a garden. The asking price of £375,000 seems reasonable when compared to the average price in the area. The property is located in Friern Barnet, a suburban area in London. It’s within reasonable distance to local schools and transportation, offering a blend of residential comfort and accessibility to city amenities.
Therefore, we give this property 6 / 10. *Disclaimer: This is our option and does constitute a recommendation or financial advice. Do your own research. *
- Price
- 7
- Condition
- 7
- Location
- 7
- Land
- 6
- Bedrooms
- 1
- Bathrooms
- 1
- Sqft (est)
- 660.10
The heatmap indicates the level of crime in the area. The color of the heatmap indicates the crime severity and recency.
Metrics Year-on-Year
- Average area value
- 646,249.00 £Increased by 10.12 %
- Est sale value
- 585,508.70 £Increased by 66.42 %
- Average area rental value
- 2,289.00 £/moIncreased by 2.55 %
- Est letting value
- 1,980.30 £/moIncreased by 50.00 %
- Est rental Yield
- 4.25 %Decreased by 6.80 %
- Crime Rate
- 8.00 %Unchanged by 0.00 %
Agent Activity
Barnard Marcus created the listing.
Nearby Schools
| Name | Type | Ofsted | Distance |
|---|---|---|---|
| Friern Barnet School | Community School | Good | 0.26 KM |
| St John'S Cofe Junior Mixed And Infant School | Voluntary Aided School | Outstanding | 0.28 KM |
| Dwight School London | Other Independent School | 0.33 KM | |
| Holly Park Primary School | Community School | Good | 0.66 KM |
| The Compton School | Academy Converter | Outstanding | 0.91 KM |
Images
Nearby Streets
| Name | Average Price | Average Sqft | Distance |
|---|---|---|---|
| Leadbeaters Close | £ 0 | 0 | 0.00 KM |
| Queen's Parade Close | £ 0 | 0 | 0.00 KM |
| Scrublands Path | £ 0 | 0 | 0.00 KM |
| St Ninian's Court | £ 302,500 | 0 | 0.00 KM |
| Pinkham Way | £ 0 | 0 | 0.00 KM |
Nearby Transport
| Name | NLC | TLC | Distance |
|---|---|---|---|
| New Southgate | 6019 | NSG | 1.49 KM |
| Oakleigh Park | 6020 | OKL | 2.81 KM |
| Bowes Park | 6027 | BOP | 4.05 KM |
| New Barnet | 6018 | NBA | 4.22 KM |
| Alexandra Palace | 6025 | AAP | 4.41 KM |
Nearby Listings
| Address | Price | Type | Score | Distance |
|---|---|---|---|---|
| Goldsmith Road, London | £ 375,000 | BUY | 6 / 10 | 0.00 KM |
| Hartland Road, Friern Barnet, N11 | £ 275,000 | BUY | Unknown | 0.08 KM |
| 2 Hartland Road, London | £ 270,000 | BUY | 5 / 10 | 0.10 KM |
| 10 Ramsden Road, London, N11 3JE | £ 260,000 | BUY | 5 / 10 | 0.10 KM |
| Royal Drive, Friern Barnet, London, N11 | £ 850,000 | BUY | 6 / 10 | 0.12 KM |
Nearby Properties
| Address | Price | Distance |
|---|---|---|
| 51 Goldsmith Road | £ 208,000 | 0.00 KM |
| 33 Goldsmith Road | £ 313,250 | 0.00 KM |
| 33a Goldsmith Road | £ 183,000 | 0.00 KM |
| 61 Goldsmith Road | £ 380,000 | 0.00 KM |
| 31 Goldsmith Road | £ 560,000 | 0.00 KM |