Stapleford Close, Chingford E4
CO

Stapleford Close, Chingford E4

By Coultons

£ 400,000

Reviews

3 out of 5 stars

Coultons says ..

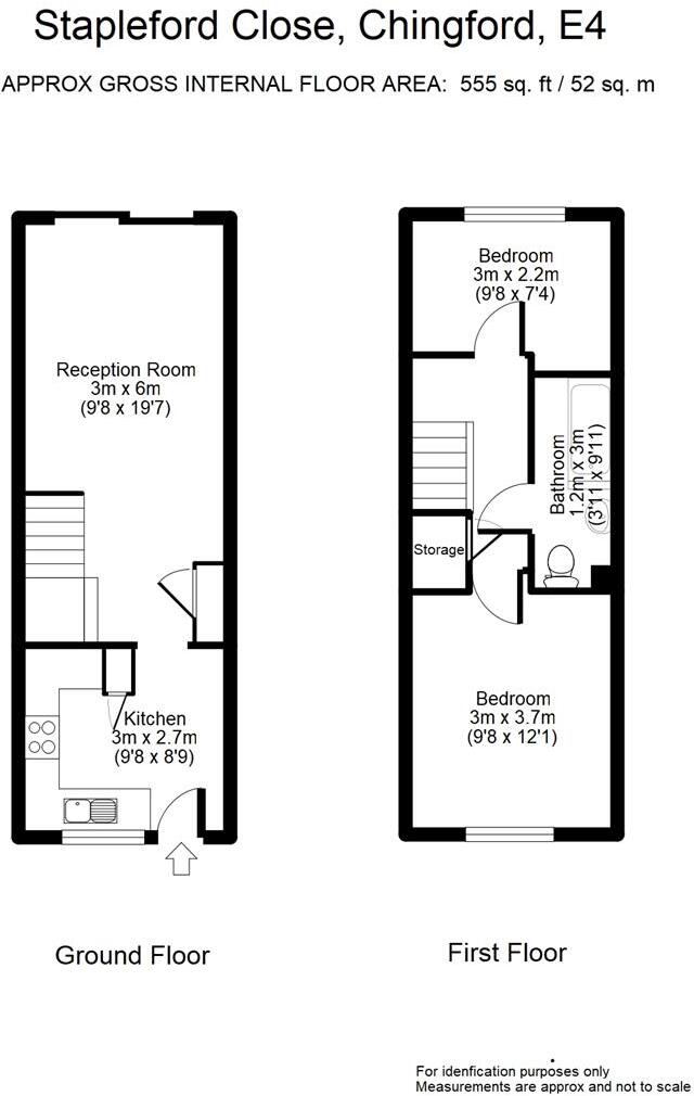
Offering for sale the very well maintained mid terraced house situated on a quiet residential close. The property benefits from two double bedrooms, a good sized living room, a contemporary fitted kitchen, a modern fitted bathroom, double glazing, gas central heating a private rear garden with an...

Property Oracle says ..

This property is a two bedroom terraced house located in Stapleford Close, Chingford, E4 6XS. The property benefits from being close to Larkswood and Highams Park stations providing easy access to London. There are also a number of local schools within a reasonable distance. The property itself appears to be in good condition and has been recently modernised with a modern fitted kitchen and bathroom. There is also a small garden to the rear of the property. The list price of £400,000 seems reasonable given the current market conditions and comparable properties in the area. However, it is worth noting that the average price per square foot in the area is significantly higher than this property, suggesting it may be slightly underpriced.

Therefore, we give this property 6 / 10. *Disclaimer: This is our option and does constitute a recommendation or financial advice. Do your own research. *

Price
7
Condition
8
Location
7
Land
4
Bedrooms
2
Bathrooms
1
Sqft (est)
559.72

The heatmap indicates the level of crime in the area. The color of the heatmap indicates the crime severity and recency.

Metrics Year-on-Year

Average area value
466,250.00 £
Decreased by 4.61 %
from 488,778.00 £
Est sale value
442,178.80 £
Increased by 30.36 %
from 339,190.32 £
Average area rental value
2,019.00 £/mo
Increased by 3.70 %
from 1,947.00 £/mo
Est letting value
1,679.16 £/mo
Increased by 50.00 %
from 1,119.44 £/mo
Est rental Yield
5.20 %
Increased by 8.79 %
from 4.78 %
Crime Rate
3.00 %
Unchanged by 0.00 %
from 3.00 %

Agent Activity

  • Coultons created the listing.

Nearby Schools

NameTypeOfstedDistance
Lime Academy LarkswoodAcademy ConverterGood0.78 KM
Longshaw Primary AcademyAcademy Sponsor Led1.00 KM
Parkside Children'S Centre (Prev:The Ridgeway Park Children Centre)Children's Centre Linked Site1.10 KM
Ainslie Wood Primary SchoolCommunity SchoolGood1.13 KM
Chingford Foundation SchoolAcademy ConverterRequires improvement1.14 KM

Images

DSC03816.jpg DSC03781.jpg DSC03780.jpg DSC03784.jpg DSC03787.jpg DSC03791.jpg DSC03796.jpg DSC03803.jpg DSC03812.jpg DSC03815.jpg DSC03799.jpg DSC03801.jpg DSC03808.jpg DSC03804.jpg DSC03793.jpg DSC03794.jpg DSC03795.jpg DSC03797.jpg DSC03785.jpg DSC03790.jpg DSC03782.jpg DSC03810.jpg DSC03813.jpg DSC03818.jpg

Nearby Streets

NameAverage PriceAverage SqftDistance
Grove Road £ 480,60000.00 KM
Heaton Close £ 385,00000.00 KM
Bushey Close £ 349,00000.00 KM
St John's Road £ 510,00000.00 KM
Celandine Court £ 323,66700.00 KM

Nearby Transport

NameNLCTLCDistance
Highams Park6919HIP1.41 KM
Chingford6914CHI2.22 KM
Wood Street6954WST3.73 KM
Ponders End6819PON4.13 KM
Walthamstow Central6953WHC4.43 KM

Nearby Listings

AddressPriceTypeScoreDistance
Stapleford Close, Chingford E4 £ 400,000BUY6 / 100.00 KM
Stapleford Close, London £ 285,000BUYUnknown0.05 KM
Stapleford Close, Chingford £ 450,000BUY6 / 100.06 KM
Stapleford Close, Chingford £ 250,000BUY5 / 100.06 KM
Stapleford Close, Chingford, London. E4 6XS £ 429,000BUY7 / 100.10 KM

Nearby Properties

AddressPriceDistance
4 Stapleford Close £ 300,0000.05 KM
32 Stapleford Close £ 162,5000.05 KM
27 Stapleford Close £ 167,0000.05 KM
11 Stapleford Close £ 212,0000.05 KM
30 Stapleford Close £ 170,0000.05 KM