Wrights Road, Bow
TH

Wrights Road, Bow

By The Stow Brothers

£ 399,999

Reviews

3 out of 5 stars

The Stow Brothers says ..

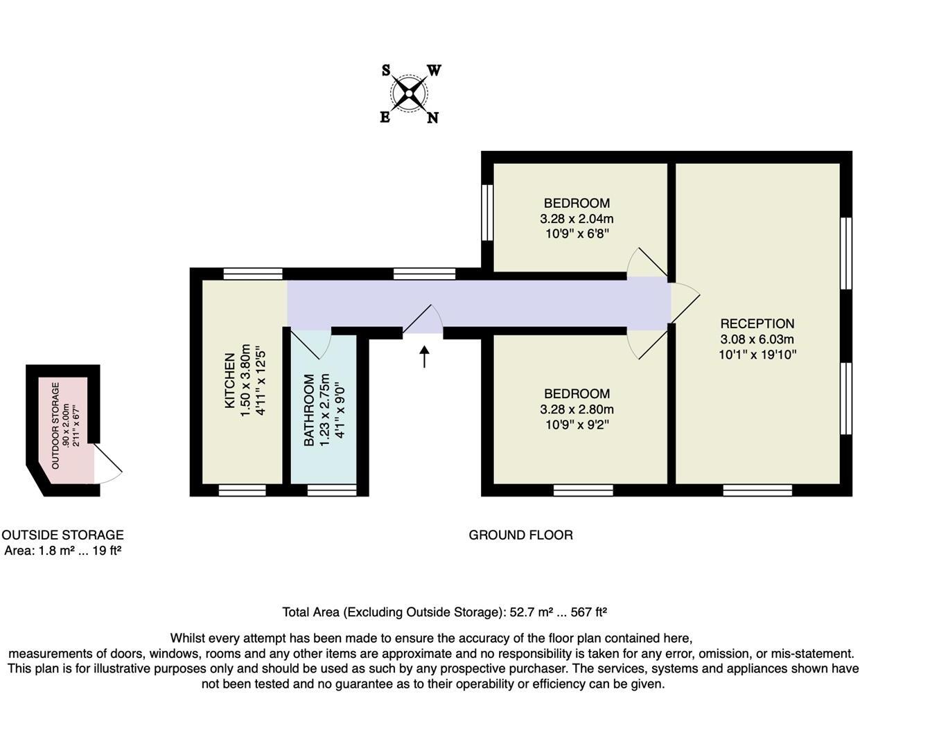
This two bedroom ground floor apartment offers a well-considered layout within a purpose-built setting. Spanning around 567 square feet, it presents a comfortable amount of space for modern living. Positioned just moments from Roman Road, you’ll find an excellent mix of shops, cafes, and amenitie...

Property Oracle says ..

This is a two-bedroom flat located in Bow East, London. The property is in reasonable condition and benefits from its proximity to local amenities, schools, and transportation links. The flat offers 567.26 sqft of living space. The kitchen and bathroom are functional but could benefit from modernisation. The property does not have a garden. The asking price of £399,999 appears reasonable given the location, condition, and size of the property, especially when compared to the average price in the area.

Therefore, we give this property 6 / 10. *Disclaimer: This is our option and does constitute a recommendation or financial advice. Do your own research. *

Price
7
Condition
7
Location
7
Land
3
Bedrooms
2
Bathrooms
1
Sqft (est)
567.26

The heatmap indicates the level of crime in the area. The color of the heatmap indicates the crime severity and recency.

Metrics Year-on-Year

Average area value
501,607.00 £
Increased by 8.54 %
from 462,133.00 £
Est sale value
423,175.96 £
Increased by 29.97 %
from 325,607.24 £
Average area rental value
2,290.00 £/mo
Decreased by 0.87 %
from 2,310.00 £/mo
Est letting value
1,701.78 £/mo
Increased by 50.00 %
from 1,134.52 £/mo
Est rental Yield
5.48 %
Decreased by 8.67 %
from 6.00 %
Crime Rate
8.00 %
Unchanged by 0.00 %
from 8.00 %

Agent Activity

  • The Stow Brothers created the listing.

Nearby Schools

NameTypeOfstedDistance
Old Ford Primary - A Paradigm AcademyAcademy Converter0.12 KM
Mulberry UtcUniversity Technical CollegeGood0.42 KM
Overland Children'S CentreChildren's Centre0.54 KM
Olga Primary SchoolCommunity SchoolGood0.66 KM
Olga Children'S CentreChildren's Centre Linked Site0.66 KM

Images

Wrights Road, E3 Wrights Road, E3 Wrights Road, E3 Wrights Road, E3 Wrights Road, E3 Wrights Road, E3 Wrights Road, E3 Wrights Road, E3 Wrights Road, E3 Wrights Road, E3 Wrights Road, E3 Wrights Road, E3 Wrights Road, E3 Wrights Road, E3 Wrights Road, E3 Wrights Road, E3 vic park 1.jpg vic park 2.jpg Vic park 3.jpg

Nearby Streets

NameAverage PriceAverage SqftDistance
Alma Terrace £ 000.00 KM
Ewart Place £ 280,00000.00 KM
Allen Road £ 000.00 KM
Ford Road £ 000.00 KM
Dane Place £ 000.00 KM

Nearby Transport

NameNLCTLCDistance
Hackney Wick6978HKW1.27 KM
Homerton6979HMN1.92 KM
Limehouse7491LHS2.56 KM
Stratford International7222SFA2.76 KM
Cambridge Heath6962CBH2.90 KM

Nearby Listings

AddressPriceTypeScoreDistance
Wrights Road, Bow £ 399,999BUY6 / 100.00 KM
McCullum Road, Bow, London, E3 5HZ £ 425,000BUYUnknown0.10 KM
Ranwell Close, Bow £ 325,000BUY5 / 100.10 KM
Roman Road, London £ 350,000BUY7 / 100.12 KM
Roman Road, Bow £ 550,000BUY6 / 100.14 KM

Nearby Properties

AddressPriceDistance
6 Wrights Road £ 500,0000.04 KM
School House £ 335,0000.04 KM
6a Wrights Road £ 58,0000.04 KM
66 Beale Road £ 179,0000.08 KM
71 Beale Road £ 485,0000.08 KM