ST
Europa Court, 46 Campden Road, SOUTH CROYDON, CR2
By Streets Ahead
£ 265,000
Reviews
3 out of 5 stars
Streets Ahead says ..
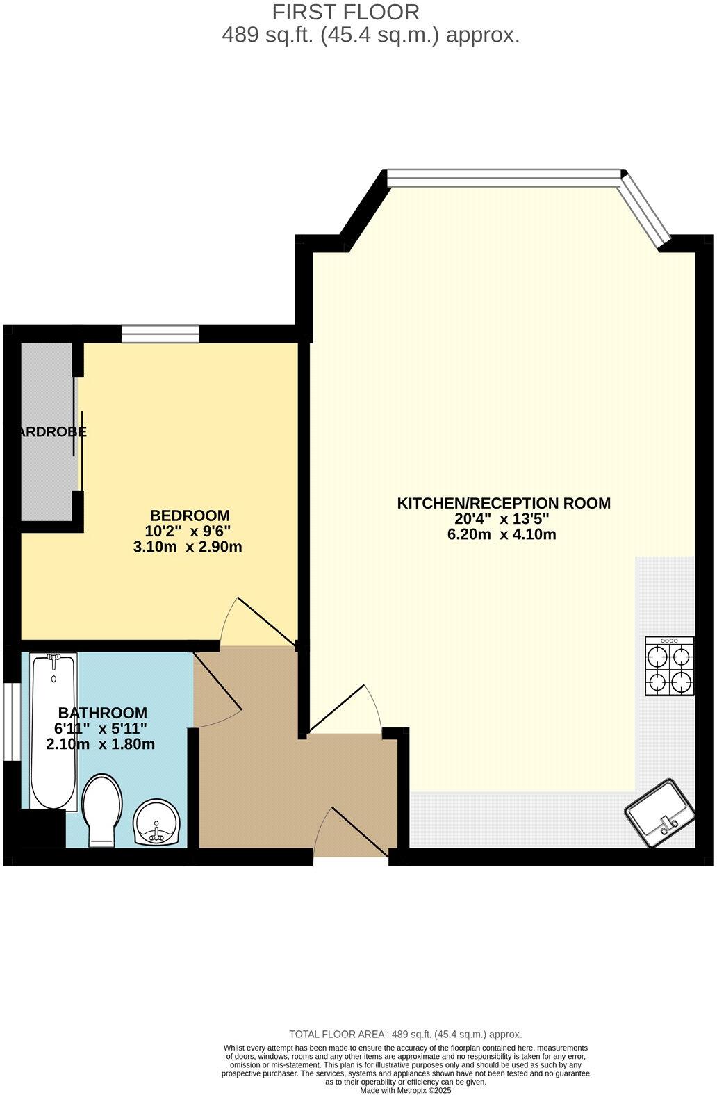
A beautifully presented one-bedroom first-floor apartment, forming part of a charming period building. The open-plan kitchen/living room features a wide bay window flooding the space with natural light. The property also benefits from communal gardens and parking. CALL US NOW!
Property Oracle says ..
Therefore, we give this property 7 / 10. *Disclaimer: This is our option and does constitute a recommendation or financial advice. Do your own research. *
- Price
- 8
- Condition
- 7
- Location
- 7
- Land
- 6
- Bedrooms
- 1
- Bathrooms
- 1
- Sqft (est)
- 489.00
The heatmap indicates the level of crime in the area. The color of the heatmap indicates the crime severity and recency.
Metrics Year-on-Year
- Average area value
- 428,077.00 £Increased by 11.32 %
- Est sale value
- 346,212.00 £Increased by 124.76 %
- Average area rental value
- 1,801.00 £/moIncreased by 9.82 %
- Est letting value
- 978.00 £/moIncreased by 100.00 %
- Est rental Yield
- 5.05 %Decreased by 1.37 %
- Crime Rate
- 1.00 %Unchanged by 0.00 %
from 384,549.00 £
from 154,035.00 £
from 1,640.00 £/mo
from 489.00 £/mo
from 5.12 %
from 1.00 %
Agent Activity
Streets Ahead created the listing.
Nearby Schools
| Name | Type | Ofsted | Distance |
|---|---|---|---|
| Rutherford School | Other Independent Special School | Good | 0.56 KM |
| Archbishop Tenison'S Cofe High School | Voluntary Aided School | Good | 0.73 KM |
| Cambridge Tutors College | Other Independent School | 0.86 KM | |
| St Peter'S Primary School | Academy Converter | Good | 0.90 KM |
| Elmhurst School For Boys | Other Independent School | 0.93 KM |
Images
Nearby Streets
| Name | Average Price | Average Sqft | Distance |
|---|---|---|---|
| Coombe Avenue | £ 0 | 0 | 0.00 KM |
| Hunters Way | £ 0 | 0 | 0.00 KM |
| Ballater Road | £ 780,000 | 0 | 0.00 KM |
| Siskin Court | £ 0 | 0 | 0.00 KM |
| Leafy Way | £ 325,000 | 0 | 0.00 KM |
Nearby Transport
| Name | NLC | TLC | Distance |
|---|---|---|---|
| South Croydon | 5410 | SCY | 1.03 KM |
| East Croydon | 5355 | ECR | 1.66 KM |
| Sanderstead | 5433 | SNR | 1.98 KM |
| Purley Oaks | 5430 | PUO | 2.43 KM |
| West Croydon | 5411 | WCY | 2.65 KM |
Nearby Listings
| Address | Price | Type | Score | Distance |
|---|---|---|---|---|
| Europa Court, 46 Campden Road, SOUTH CROYDON, CR2 | £ 265,000 | BUY | 7 / 10 | 0.00 KM |
| Campden Road,, South Croydon | £ 350,000 | BUY | Unknown | 0.05 KM |
| Campden Road, South Croydon | £ 350,000 | BUY | 8 / 10 | 0.05 KM |
| Campden Road, South Croydon, CR2 | £ 425,000 | BUY | Unknown | 0.09 KM |
| Campden Road, South Croydon | £ 700,000 | BUY | 6 / 10 | 0.12 KM |
Nearby Properties
| Address | Price | Distance |
|---|---|---|
| 106 Campden Road | £ 310,000 | 0.05 KM |
| 108 Campden Road | £ 180,000 | 0.05 KM |
| 80 Campden Road | £ 305,000 | 0.05 KM |
| 104 Campden Road | £ 162,000 | 0.05 KM |
| 74 Campden Road | £ 204,000 | 0.05 KM |