Waterloo Avenue, Fordbridge, Birmingham
By Prime Estates
£ 180,000
Reviews
3 out of 5 stars
Prime Estates says ..
* MID TERRACE HOUSE * THREE GENEROUS BEDROOMS * IDEAL FIRST TIME BUYER/INVESTOR PROPERTY * OPEN PLAN KITCHEN/DINING AREA * NO UPWARD CHAIN! * NON STANDARD CONSTRUCTION * ONLINE 360 TOUR AVAILABLE !! HAVE YOU BEEN SEARCHING FOR YOUR FIRST HOME OR FOR INVESTMENT PURPOSES? TAKE A CLOSE LOOK...
Property Oracle says ..
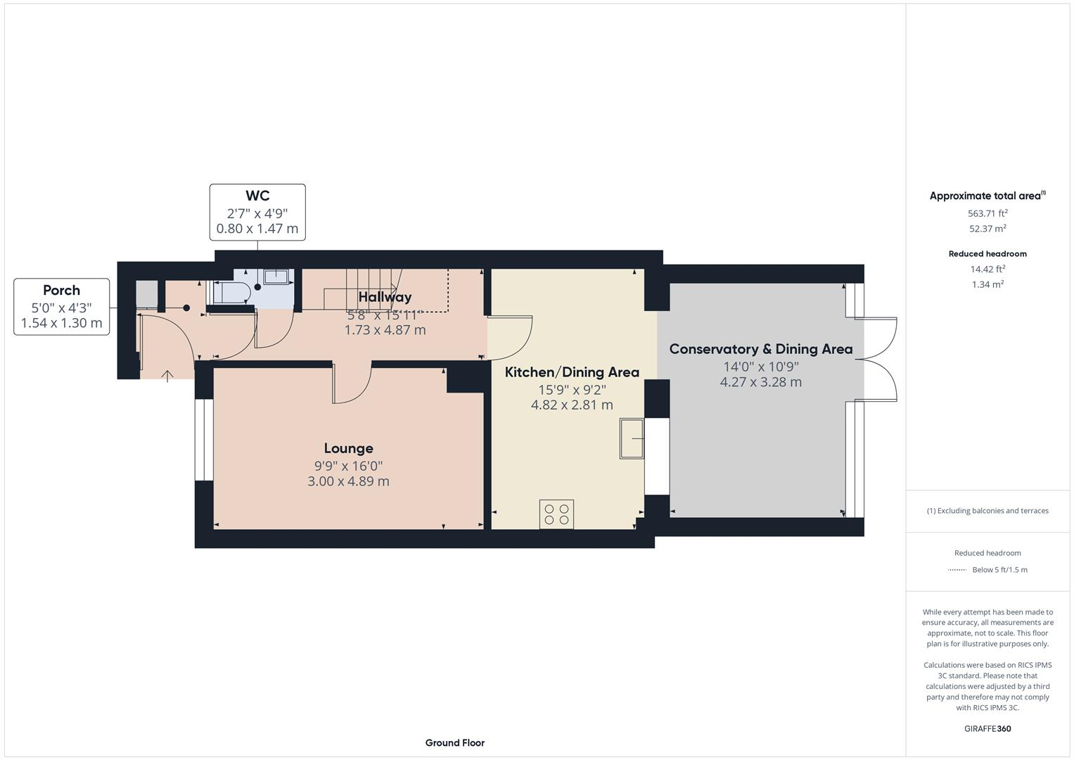
The property is located in Chelmsley Wood, Birmingham, and is a 3-bedroom house with 1 bathroom. The property has a small front garden and a larger, well-maintained rear garden with a patio and decking area, as well as a conservatory. Based on the photos, the property appears to be in good condition, with a modern kitchen and recently updated flooring. Some minor cosmetic work may be needed in a couple of the bedrooms but nothing major. The property is smaller than average for the area at 563.71 sqft compared to the average of 871 sqft. The list price is £180,000, which is slightly above the average price of £175,200 for the area. However, considering the good condition of the property and the inclusion of a garden, the price seems reasonable. The location is close to several schools and transportation links, making it convenient for families and commuters.
Therefore, we give this property 7 / 10. *Disclaimer: This is our option and does constitute a recommendation or financial advice. Do your own research. *
- Price
- 7
- Condition
- 8
- Location
- 7
- Land
- 7
- Bedrooms
- 3
- Bathrooms
- 1
- Sqft (est)
- 563.71
The heatmap indicates the level of crime in the area. The color of the heatmap indicates the crime severity and recency.
Metrics Year-on-Year
- Average area value
- 222,000.00 £Increased by 5.38 %
- Est sale value
- 112,742.00 £Decreased by 16.32 %
- Average area rental value
- 1,167.00 £/moIncreased by 0.69 %
- Est letting value
- 563.71 £/moUnchanged by 0.00 %
- Est rental Yield
- 6.31 %Decreased by 4.39 %
- Crime Rate
- 7.00 %Unchanged by 0.00 %
Agent Activity
Prime Estates created the listing.
Nearby Schools
| Name | Type | Ofsted | Distance |
|---|---|---|---|
| Wmg Academy For Young Engineers (Solihull) | University Technical College | Good | 0.66 KM |
| Chelmsley Wood Children'S Centre | Children's Centre | 1.00 KM | |
| Tudor Grange Academy Kingshurst | Academy Sponsor Led | 1.05 KM | |
| St Anthony'S Catholic Primary School | Academy Converter | 1.14 KM | |
| St Anne'S Catholic Primary School | Academy Converter | 1.17 KM |
Images
Nearby Streets
| Name | Average Price | Average Sqft | Distance |
|---|---|---|---|
| Tyne Close | £ 254,975 | 0 | 0.00 KM |
| Birmingham Road | £ 0 | 0 | 0.00 KM |
| Langton Close | £ 0 | 0 | 0.00 KM |
| Waugh Close | £ 0 | 0 | 0.00 KM |
| Sanda Croft | £ 230,000 | 0 | 0.00 KM |
Nearby Transport
| Name | NLC | TLC | Distance |
|---|---|---|---|
| Marston Green | 1034 | MGN | 2.90 KM |
| Water Orton | 1121 | WTO | 3.48 KM |
| Birmingham International | 1215 | BHI | 4.35 KM |
| Coleshill Parkway | 9882 | CEH | 4.71 KM |
| Lea Hall | 1133 | LEH | 5.23 KM |
Nearby Listings
| Address | Price | Type | Score | Distance |
|---|---|---|---|---|
| Waterloo Avenue, Fordbridge, Birmingham | £ 180,000 | BUY | 7 / 10 | 0.00 KM |
| Waterloo Avenue, Chelmsley Wood | £ 170,000 | BUY | 7 / 10 | 0.04 KM |
| Waterloo Avenue, Birmingham, West Midlands, B37 | £ 190,000 | BUY | 6 / 10 | 0.04 KM |
| Waterloo Avenue, Birmingham, West Midlands, B37 | £ 90,000 | BUY | 7 / 10 | 0.06 KM |
| Waterloo Avenue, Birmingham, West Midlands, B37 | £ 90,000 | BUY | 6 / 10 | 0.06 KM |
Nearby Properties
| Address | Price | Distance |
|---|---|---|
| 3a Waterloo Avenue | £ 125,000 | 0.04 KM |
| 37 Waterloo Avenue | £ 152,000 | 0.04 KM |
| 21 Waterloo Avenue | £ 72,950 | 0.04 KM |
| 61 Waterloo Avenue | £ 84,000 | 0.04 KM |
| 77 Waterloo Avenue | £ 105,000 | 0.04 KM |