BE
Myrtle Close, Gilden Park, Harlow, Essex, CM17
By Belvoir
£ 235,000
Reviews
3 out of 5 stars
Belvoir says ..
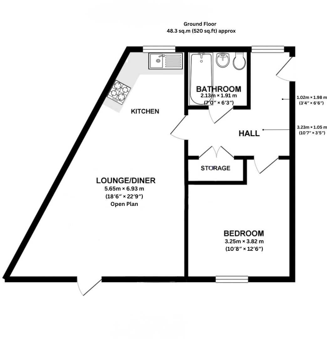
A well presented and spacious one bedroom ground floor apartment in the desirable Gilden Park development. Featuring a generous open plan layout, private balcony, modern finishes and allocated parking, this is an ideal home positioned to provide easy access to essential amenities & commuter routes!
Property Oracle says ..
Therefore, we give this property 6 / 10. *Disclaimer: This is our option and does constitute a recommendation or financial advice. Do your own research. *
- Price
- 9
- Condition
- 8
- Location
- 7
- Land
- 3
- Bedrooms
- 1
- Bathrooms
- 1
- Sqft (est)
- 635.39
The heatmap indicates the level of crime in the area. The color of the heatmap indicates the crime severity and recency.
Metrics Year-on-Year
- Average area value
- 582,075.00 £Increased by 36.93 %
- Est sale value
- 306,257.98 £Increased by 0.63 %
- Average area rental value
- 1,398.00 £/moDecreased by 18.86 %
- Est letting value
- 635.39 £/moUnchanged by 0.00 %
- Est rental Yield
- 2.88 %Decreased by 40.74 %
- Crime Rate
- 17.00 %Unchanged by 0.00 %
from 425,076.00 £
from 304,351.81 £
from 1,723.00 £/mo
from 635.39 £/mo
from 4.86 %
from 17.00 %
Agent Activity
Belvoir created the listing.
Nearby Schools
| Name | Type | Ofsted | Distance |
|---|---|---|---|
| Harlowbury Primary School | Academy Converter | 0.67 KM | |
| Churchgate Church Of England Voluntary Aided Primary School, Harlow | Voluntary Aided School | Good | 0.77 KM |
| St Nicholas School | Other Independent School | 0.86 KM | |
| Newhall Primary Academy | Free Schools | 1.62 KM | |
| Fawbert And Barnard'S Primary School | Academy Converter | 1.82 KM |
Images
Nearby Streets
| Name | Average Price | Average Sqft | Distance |
|---|---|---|---|
| Tawney Owl Lane | £ 300,000 | 0 | 0.00 KM |
| Sheering Drive | £ 0 | 0 | 0.00 KM |
| St Edmund's Way | £ 0 | 0 | 0.00 KM |
| Trefoil Lane | £ 0 | 0 | 0.00 KM |
| Spicers Lane | £ 0 | 0 | 0.00 KM |
Nearby Transport
| Name | NLC | TLC | Distance |
|---|---|---|---|
| Harlow Mill | 6804 | HWM | 1.87 KM |
| Sawbridgeworth | 6806 | SAW | 3.43 KM |
| Harlow Town | 6827 | HWN | 5.94 KM |
| Bishops Stortford | 6800 | BIS | 9.18 KM |
Nearby Listings
| Address | Price | Type | Score | Distance |
|---|---|---|---|---|
| Myrtle Close, Gilden Park, Harlow, Essex, CM17 | £ 164,500 | BUY | 6 / 10 | 0.00 KM |
| Myrtle Close, Gilden Park, Harlow, Essex, CM17 | £ 235,000 | BUY | 6 / 10 | 0.00 KM |
| Myrtle Close, Harlow, Essex, CM17 | £ 345,000 | BUY | 6 / 10 | 0.02 KM |
| Myrtle Close, Gilden Park, Old Harlow | £ 164,500 | BUY | Unknown | 0.06 KM |
| Myrtle Close, Gilden Park, Old Harlow | £ 235,000 | BUY | Unknown | 0.06 KM |
Nearby Properties
| Address | Price | Distance |
|---|---|---|
| 77 Sheering Road | £ 725,000 | 0.28 KM |
| 73 Sheering Road | £ 740,000 | 0.29 KM |
| 43 Sheering Road | £ 660,000 | 0.29 KM |
| 77a Sheering Road | £ 1,150,000 | 0.29 KM |
| 79 Sheering Road | £ 940,000 | 0.29 KM |