Traffic free spot with garage & parking
By Homeweb
£ 219,950
Reviews
2 out of 5 stars
Homeweb says ..
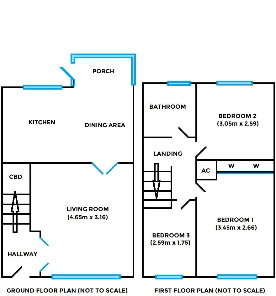
In this popular village within this nice cul de sac stands a 3 bed end staggered terraced house built in the 1970's and offered with gas central heating, Upvc double glazing, a garage with parking in front and all in good order.
Property Oracle says ..
This three-bedroom property in Lower Culm, Mid Devon, is listed at £219,950. The property features a small garden and a detached garage, providing some additional outdoor space. The interior displays a mixed presentation. The bathroom appears well-maintained, featuring modern fixtures. However, other rooms show signs of wear and require some cosmetic updates to improve aesthetics. The property offers three bedrooms. The kitchen is functional. There’s a lack of information on current comparable properties in the immediate neighbourhood. Transportation links rely on Tiverton Parkway station, approximately 3km away, which is a significant travel distance. The property is within reasonable distance to several schools with varying Ofsted ratings, providing choices for families. Overall, this property presents a mixed bag, with its current condition needing some attention. Whilst the asking price seems reasonably competitive, the absence of extensive local market data prevents conclusive analysis on its precise value in this specific area.
Therefore, we give this property 5 / 10. *Disclaimer: This is our option and does constitute a recommendation or financial advice. Do your own research. *
- Price
- 7
- Condition
- 5
- Location
- 6
- Land
- 3
- Bedrooms
- 3
- Bathrooms
- 0
- Sqft (est)
- 782.21
The heatmap indicates the level of crime in the area. The color of the heatmap indicates the crime severity and recency.
Metrics Year-on-Year
- Average area value
- 213,333.00 £Decreased by 45.90 %
- Est sale value
- 229,969.74 £Decreased by 19.01 %
- Average area rental value
- 960.00 £/moDecreased by 8.57 %
- Est letting value
- 782.21 £/mo
- Est rental Yield
- 5.40 %Increased by 68.75 %
- Crime Rate
- 54.00 %Unchanged by 0.00 %
Agent Activity
Homeweb created the listing.
Nearby Schools
| Name | Type | Ofsted | Distance |
|---|---|---|---|
| Willand School | Community School | Requires improvement | 0.35 KM |
| Sampford Peverell Church Of England Primary School | Academy Converter | Good | 3.44 KM |
| Uffculme School | Academy Converter | Outstanding | 4.44 KM |
| St Andrew'S Primary School | Academy Sponsor Led | Good | 4.78 KM |
| Culm Valley Children'S Centre | Children's Centre | 4.78 KM |
Images
Nearby Streets
| Name | Average Price | Average Sqft | Distance |
|---|---|---|---|
| Victoria Close | £ 392,475 | 0 | 0.00 KM |
| Blenheim Court | £ 625,000 | 0 | 0.00 KM |
| Cornflower Close | £ 0 | 0 | 0.00 KM |
| Worcester Crescent | £ 0 | 0 | 0.00 KM |
| Cherry Close | £ 0 | 0 | 0.00 KM |
Nearby Transport
| Name | NLC | TLC | Distance |
|---|---|---|---|
| Tiverton Parkway | 3474 | TVP | 2.97 KM |
Nearby Listings
| Address | Price | Type | Score | Distance |
|---|---|---|---|---|
| South View Close, Willand, Cullompton | £ 220,000 | BUY | 6 / 10 | 0.02 KM |
| South View Close, Willand, Cullompton, Devon, EX15 | £ 210,000 | BUY | 6 / 10 | 0.02 KM |
| South View Close, Willand, Cullompton | £ 230,000 | BUY | 7 / 10 | 0.02 KM |
| South View Close, Willand, Devon, EX15 2QP | £ 235,000 | BUY | 6 / 10 | 0.06 KM |
| South View Close, Willand, Devon, EX15 2QP | £ 225,000 | BUY | 6 / 10 | 0.09 KM |
Nearby Properties
| Address | Price | Distance |
|---|---|---|
| 27 South View Close | £ 232,500 | 0.02 KM |
| 4 South View Close | £ 155,000 | 0.02 KM |
| 5 South View Close | £ 124,950 | 0.02 KM |
| 8 South View Close | £ 135,000 | 0.02 KM |
| 22 South View Close | £ 215,000 | 0.02 KM |