Jack Charles says ..
Situated in the charming town of Tonbridge, this delightful Victorian terraced house presents a wonderful opportunity for those seeking a project to make their own. With two bedroom & two reception rooms, this property makes for an ideal home for families or professionals alike. The pro...
Property Oracle says ..
This 2-bedroom, 1-bathroom property located on Pembury Road in Tonbridge, Kent, presents a mixed bag. Its key strengths lie in its location. Being less than a kilometer from Tonbridge’s mainline station and close to several well-regarded schools makes it an attractive option for families and commuters seeking convenient access to transport and education. The proximity to the town centre adds to its appeal. The property itself appears to be in fair condition, though some areas, notably the kitchen and flooring, show signs of wear and could benefit from modernisation. The garden is small, but its presence is a positive. The list price of £325,000 requires further analysis given the lack of precise square footage information for comparable properties. While the price appears reasonable in context of the area, the need for some improvements should be factored into any potential buyer’s assessment. Overall, it’s a property that would likely appeal to first-time buyers or investors willing to undertake some refurbishment work to enhance its value and appeal.
Therefore, we give this property 5 / 10. *Disclaimer: This is our option and does constitute a recommendation or financial advice. Do your own research. *
- Price
- 7
- Condition
- 5
- Location
- 7
- Land
- 3
- Bedrooms
- 2
- Bathrooms
- 1
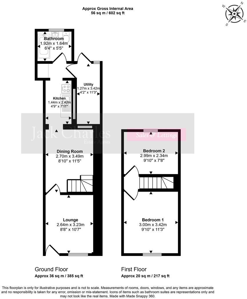
- Sqft (est)
- 602.00
The heatmap indicates the level of crime in the area. The color of the heatmap indicates the crime severity and recency.
Metrics Year-on-Year
- Average area value
- 432,250.00 £Decreased by 1.11 %
- Est sale value
- 619,458.00 £Increased by 80.84 %
- Average area rental value
- 1,183.00 £/moDecreased by 16.87 %
- Est letting value
- 1,204.00 £/moIncreased by 100.00 %
- Est rental Yield
- 3.28 %Decreased by 16.11 %
- Crime Rate
- 4.00 %Unchanged by 0.00 %
Agent Activity
Jack Charles created the listing.
Nearby Schools
| Name | Type | Ofsted | Distance |
|---|---|---|---|
| Tonbridge Grammar School | Academy Converter | Outstanding | 0.29 KM |
| Royal Rise Primary School | Academy Sponsor Led | Good | 0.71 KM |
| South Tonbridge Children'S Centre | Children's Centre | 0.71 KM | |
| Weald Of Kent Grammar School | Academy Converter | 0.81 KM | |
| Hillview School For Girls | Academy Converter | Good | 1.07 KM |
Images
Nearby Streets
| Name | Average Price | Average Sqft | Distance |
|---|---|---|---|
| Fairview Close | £ 0 | 0 | 0.00 KM |
| Pembury Road | £ 995,000 | 0 | 0.00 KM |
| High Street | £ 252,000 | 0 | 0.00 KM |
| MU31 | £ 0 | 0 | 0.00 KM |
| High Street | £ 260,500 | 0 | 0.00 KM |
Nearby Transport
| Name | NLC | TLC | Distance |
|---|---|---|---|
| Tonbridge | 5229 | TON | 0.58 KM |
| High Brooms | 5235 | HIB | 4.22 KM |
| Hildenborough | 5236 | HLB | 5.97 KM |
| Tunbridge Wells | 5230 | TBW | 6.46 KM |
| Leigh (Kent) | 5294 | LIH | 7.07 KM |
Nearby Listings
| Address | Price | Type | Score | Distance |
|---|---|---|---|---|
| Pembury Road, Tonbridge | £ 325,000 | BUY | 5 / 10 | 0.00 KM |
| Pembury Road, Tonbridge | £ 280,000 | BUY | Unknown | 0.01 KM |
| Parsons Place, Tonbridge, Kent, TN9 | £ 350,000 | BUY | 7 / 10 | 0.07 KM |
| Parsons Place, Tonbridge, Kent, TN9 | £ 225,000 | BUY | 5 / 10 | 0.07 KM |
| Parsons Place, Tonbridge, Kent | £ 250,000 | BUY | 6 / 10 | 0.08 KM |
Nearby Properties
| Address | Price | Distance |
|---|---|---|
| 75 Pembury Road | £ 413,800 | 0.03 KM |
| 79 Pembury Road | £ 285,000 | 0.03 KM |
| 71 Pembury Road | £ 425,000 | 0.03 KM |
| 77 Pembury Road | £ 312,500 | 0.04 KM |
| 81 Pembury Road | £ 275,000 | 0.04 KM |